Bright modern apartment with parking, balcony and easy rail access to the city.
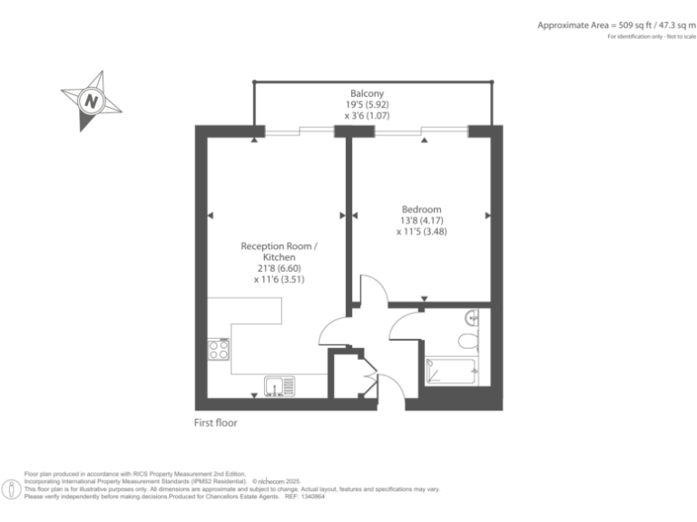
- Top (second) floor one-double-bedroom apartment, approx 510 sq ft
- Open-plan living/dining room with private balcony
- Fitted kitchen with integrated appliances
- Allocated off-street parking space included
- Communal rear garden and residents’ cycle store
- Long lease (around 240 years remaining)
- No lift — access via communal staircase to top floor
- Local area records above-average crime levels
Set on the second (top) floor of a contemporary purpose-built block, this one-double-bedroom flat offers about 510 sq ft of well-proportioned living space and comes to market chain free. The open-plan living/dining room and fitted kitchen benefit from large sliding doors that open onto a private balcony, bringing good natural light into the apartment. The bedroom includes a fitted wardrobe and also accesses the balcony. Integrated appliances and a modern bathroom complete the accommodation.
Outside there is an allocated off-street parking space to the front and a communal lawned garden with a residents’ cycle store to the rear. The development has a secure communal entrance with entryphone and a maintained communal hall. The long lease (around 240 years remaining) offers security for buyers and the council tax band is reported as low, supporting running-cost affordability.
Practical points to note: the flat is on the top floor and is reached by stairs from the communal landing — there is no mention of a lift. The local area has higher-than-average crime levels, which prospective buyers should consider alongside the property’s suburban location and convenient transport links. The property is well suited to a first-time buyer or professional seeking a low-maintenance apartment close to Oxford Parkway and local shops, with potential for modest cosmetic updates to personalise the space.
1 bedroom flat for sale in Botley, Oxford, OX2 — £275,000 • 1 bed • 1 bath • 535 ft²
2 bedroom flat for sale in Botley, Oxford, OX2 — £350,000 • 2 bed • 2 bath • 732 ft²
2 bedroom flat for sale in Botley, Oxford, OX2 — £325,000 • 2 bed • 1 bath • 519 ft²
2 bedroom flat for sale in Botley, Oxford, OX2 — £350,000 • 2 bed • 2 bath • 872 ft²
1 bedroom flat for sale in East Oxford, Oxford, OX4 — £235,000 • 1 bed • 1 bath • 430 ft²
1 bedroom apartment for sale in Davenant Road, Oxford, Oxfordshire, OX2 — £365,000 • 1 bed • 1 bath • 568 ft²


































































































