Well-connected, low-maintenance two-bedroom apartment ideal for first-time buyers.
Chain free first-floor apartment with panoramic Botley views
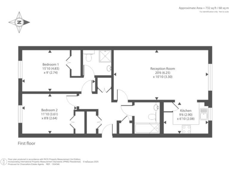
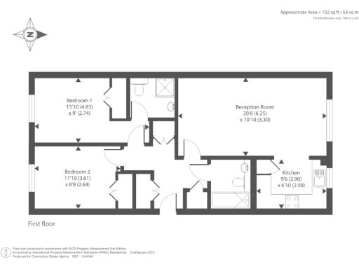
Approximately 732–750 sq ft of lateral accommodation
Two double bedrooms; principal bedroom with ensuite shower
Allocated off-street parking plus visitor spaces on hardstanding
Communal rear garden, not a private outdoor area
Leasehold with about 110 years remaining; charges apply
Double glazing installed before 2002 — some aging components
Excellent transport links; circa 1 mile to Oxford railway station
Bright, well-proportioned two-bedroom apartment set on the first floor of a purpose-built block in Botley. The lateral layout offers a spacious reception with distinct living and dining areas, a fitted kitchen and two double bedrooms, one with an ensuite. An allocated parking space and communal garden add practical outdoor and parking benefits without maintenance fuss.
This property is offered chain free and extends to around 732–750 sq ft, making it an accessible entry point to Oxford’s housing market. Transport links are excellent: Oxford station is about a mile away, and the A34 provides quick road access to the M4 and M40. Local shops, supermarkets and schools are within easy reach.
Note the apartment is leasehold with approximately 110 years remaining; service charges and ground rent will apply (details should be checked). Windows are double glazed but were installed before 2002, so some elements may be older. The garden is communal rather than private and the home sits on the first floor, requiring stair access.
Well suited to first-time buyers or investors seeking a low-maintenance two-bedroom flat in a very well-connected part of west Oxford. The modern construction means minimal immediate structural work, while the layout and size offer scope for light updating to personalise the space.
2 bedroom flat for sale in Botley, Oxford, OX2 — £325,000 • 2 bed • 1 bath • 519 ft²
2 bedroom flat for sale in Botley, Oxford, OX2 — £375,000 • 2 bed • 2 bath • 650 ft²
2 bedroom flat for sale in Botley, Oxford, OX2 — £350,000 • 2 bed • 2 bath • 872 ft²
1 bedroom flat for sale in Botley, Oxford, OX2 — £275,000 • 1 bed • 1 bath • 535 ft²
2 bedroom flat for sale in Botley, Oxford, OX2 — £260,000 • 2 bed • 1 bath • 533 ft²
1 bedroom flat for sale in Botley, Oxford, OX2 — £275,000 • 1 bed • 1 bath • 509 ft²






























































