Compact, long-lease flat with private garden and parking close to Oxford station.
One double bedroom with modern ensuite bathroom
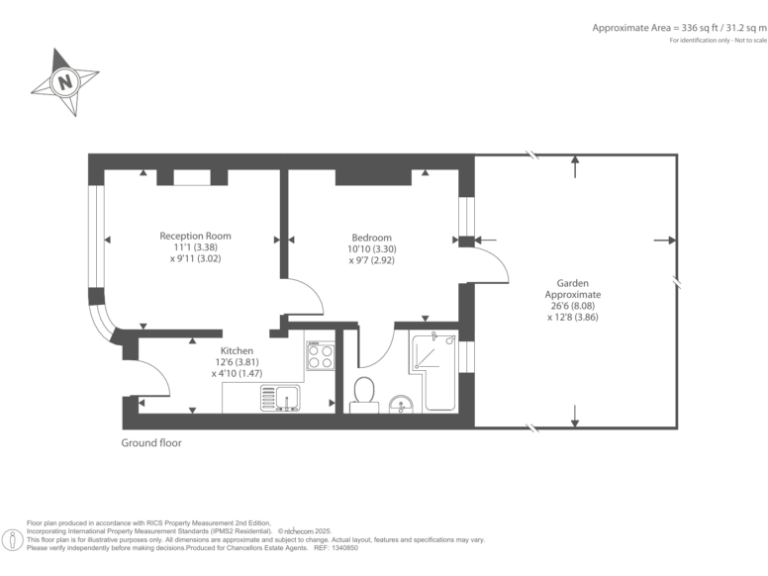
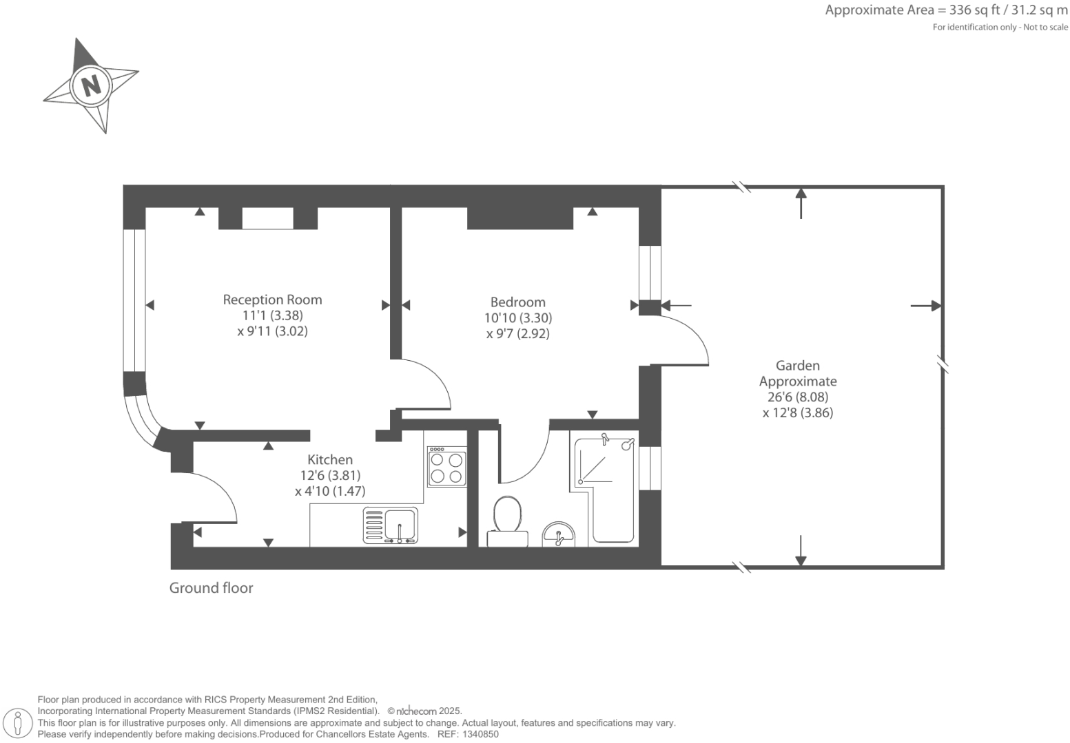
A compact, well-presented one-bedroom garden conversion maisonette ideal for a first-time buyer or buy-to-let investor. The ground-floor layout delivers a bay-fronted reception room, fitted kitchen, double bedroom with ensuite and private gravelled garden. The flat benefits from double glazing, gas central heating and an allocated off-street parking space.
The lease is long (999 years from 01/01/2010, c.984 years remaining) and the property is offered chain-free, making the purchase straightforward. At approximately 336 sq ft this home is small but efficiently arranged; bright living space with large windows gives a pleasant feel for the size.
Practical points to note: the building is solid-brick (original 1900–1929 construction) so party-wall or insulation improvements may be desirable. The compact footprint limits storage and living space compared with a one-bedroom flat of modern construction.
Location is a strong selling point — Botley offers excellent road links to the A34, fast rail services from Oxford station (about 1 mile) and local shops and bus routes nearby. Local schools include several well-regarded options, and the area is generally affluent with low crime.
1 bedroom flat for sale in Botley, Oxford, OX2 — £275,000 • 1 bed • 1 bath • 535 ft²
2 bedroom flat for sale in Botley, Oxford, OX2 — £260,000 • 2 bed • 1 bath • 533 ft²
2 bedroom flat for sale in Botley, Oxford, OX2 — £330,000 • 2 bed • 2 bath • 732 ft²
1 bedroom maisonette for sale in Columbine Gardens, Greater Leys, Oxford, OX4 — £200,000 • 1 bed • 1 bath • 446 ft²
2 bedroom flat for sale in Botley, Oxford, OX2 — £325,000 • 2 bed • 1 bath • 519 ft²
1 bedroom flat for sale in Botley, Oxford, OX2 — £260,000 • 1 bed • 1 bath • 509 ft²






































































