PE11 4JG - 1 bed semi rural development plot in South Holland And The…

View on Property Piper

Land for sale in Redevelopment Opportunity, Cheal Road, Gosberton, Spalding, Lincolnshire, PE11

Summary - Redevelopment Opportunity, Cheal Road, Gosberton, Spalding, Lincolnshire, PE11 PE11 4JG

1 bed 1 bath Land

Planning-approved site for two four-bed homes on a half-acre plot — ready for a developer..
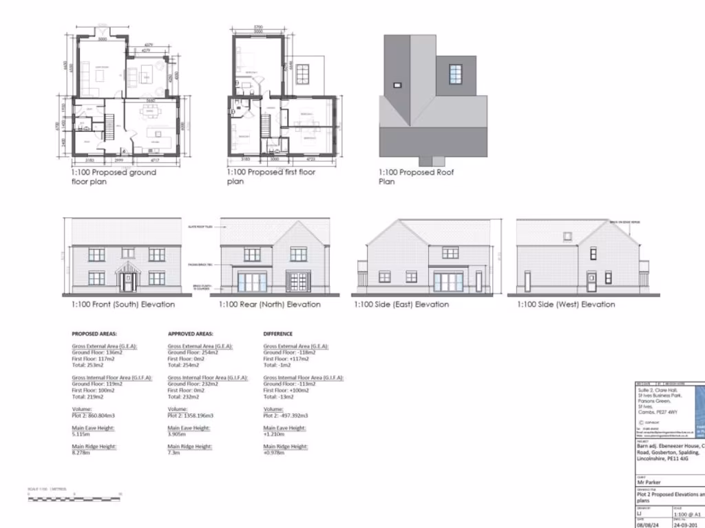
- Full planning permission granted (Feb 2025) for two 4-bed detached houses
- Each house: 219 sqm (2,357 sqft) plus double garage
- Site approx. 0.5 acre; additional land by separate negotiation
- Freehold plot with demolition of agricultural barn required
- Services not checked; historic electrics/water only within barn
- Medium flood risk on site; mitigation likely required
- Broadband slow; mobile signal average
- Development must commence within three years of permission
A rare semi-rural redevelopment plot with full planning permission for two detached four-bedroom houses and double garages. The consent (South Holland DC ref H08-1034-24, Feb 2025) covers demolition of the existing agricultural building and construction of two modern 219 sqm (2,357 sqft) homes on an overall site of approximately 0.5 acre. The site is well-located for local villages and is roughly seven miles from Spalding.

This opportunity suits a small developer or investor seeking a near-term start: consent is granted and development must commence within three years. The plot is freehold and additional adjoining land may be available by separate negotiation, offering scope to increase scheme size or garden depths.

Practical points to note: services in the vicinity have not been formally checked and historic electrics/water exist only within the barn. There is a medium flood risk for the area and broadband speeds are slow. Purchasers must allow for demolition, connection of utilities, and customary build costs; all plans and full permission details are available on the council planning portal.

On balance this is a straightforward planning-led development opportunity in a rural setting — attractive to buyers able to manage site preparation, utility enquiries and medium flood-risk mitigation to realise two family homes quickly.

Property Details

Image Descriptions

Textual Property Features

Target Audience

AI Tags

Detected Visual Features

Nearby Schools

Nearest Bars And Restaurants

,,,,}

Nearest General Shops

,,}

Nearest Grocery shops

,,}

Nearest Supermarkets

,,}

Nearest Religious buildings

,,}

Nearest Medical buildings

,,,}

Nearest Leisure Facilities

,,,,}

Nearest Tourist attractions

,,}

Nearest Train stations

,,,,}

Nearest Bus stations and stops

,,,,}

Nearest Hotels

,,}

Tags

Local Market Stats

Similar Properties

Meta

High Res Images

Compatible Images

Low res Images

Thumbnails

Raw Images