PE11 3NE - Land for sale in 4 x New Building Plot Development Site, Fe…

View on Property Piper

Land for sale in 4 x New Building Plot Development Site, Fengate Road, West Pinchbeck, Spalding, Lincolnshire, PE11

Summary - 4 x New Building Plot Development Site, Fengate Road, West Pinchbeck, Spalding, Lincolnshire, PE11 PE11 3NE

1 bed 1 bath Land

- **Standout Features:**
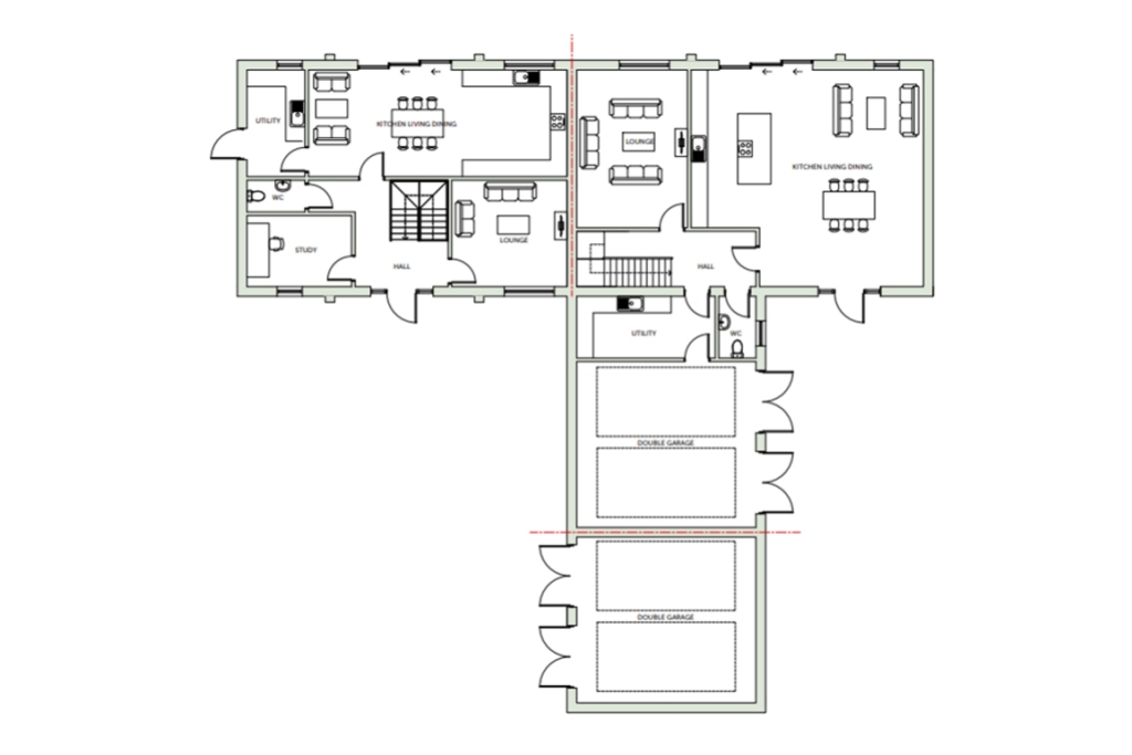
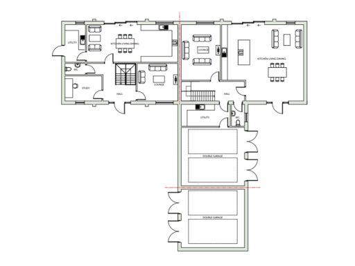
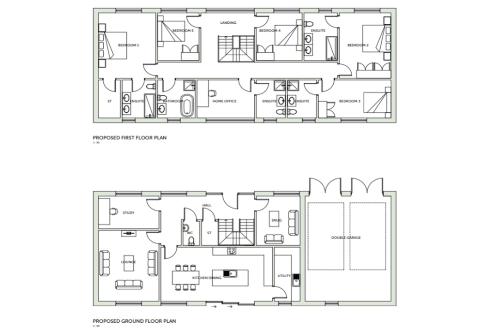
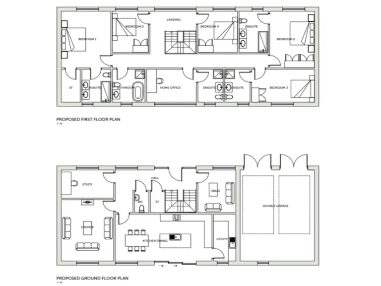
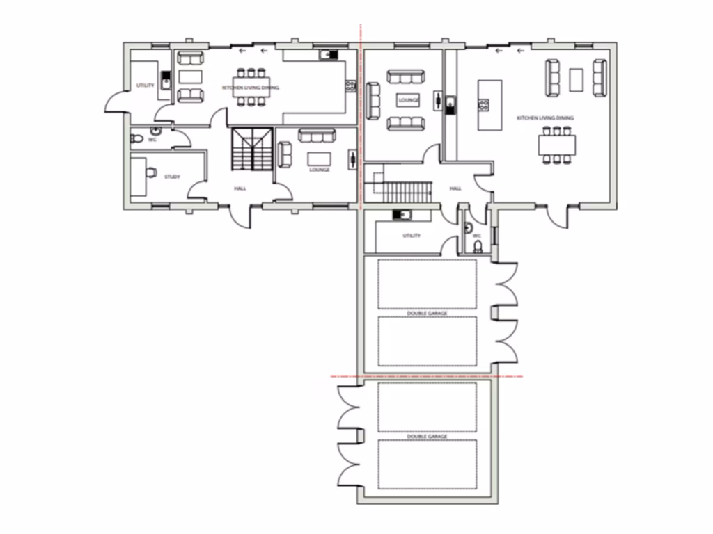
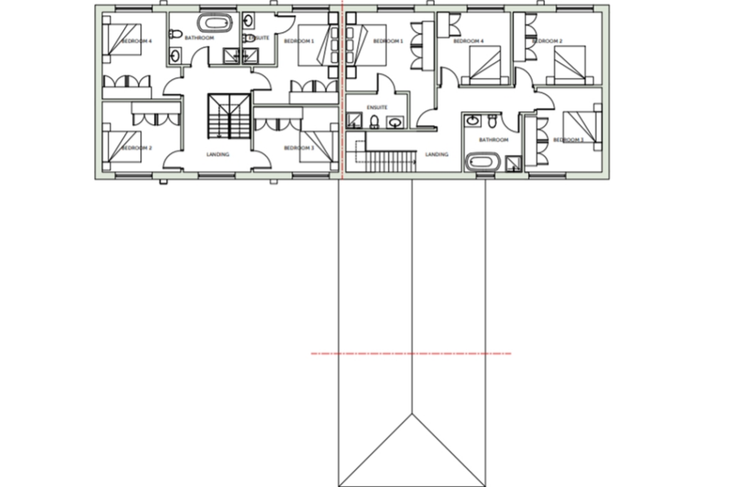
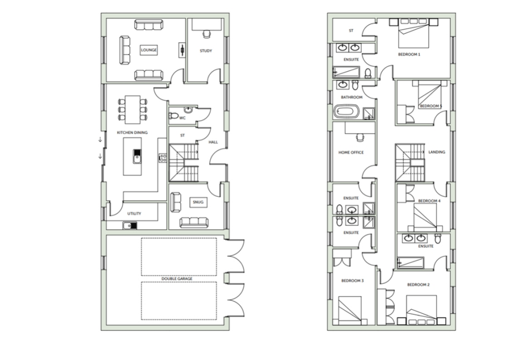
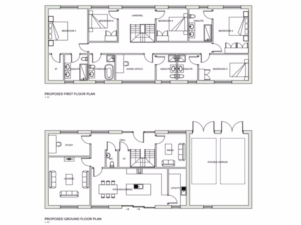
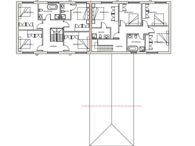
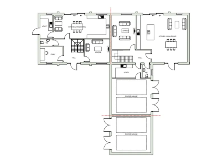
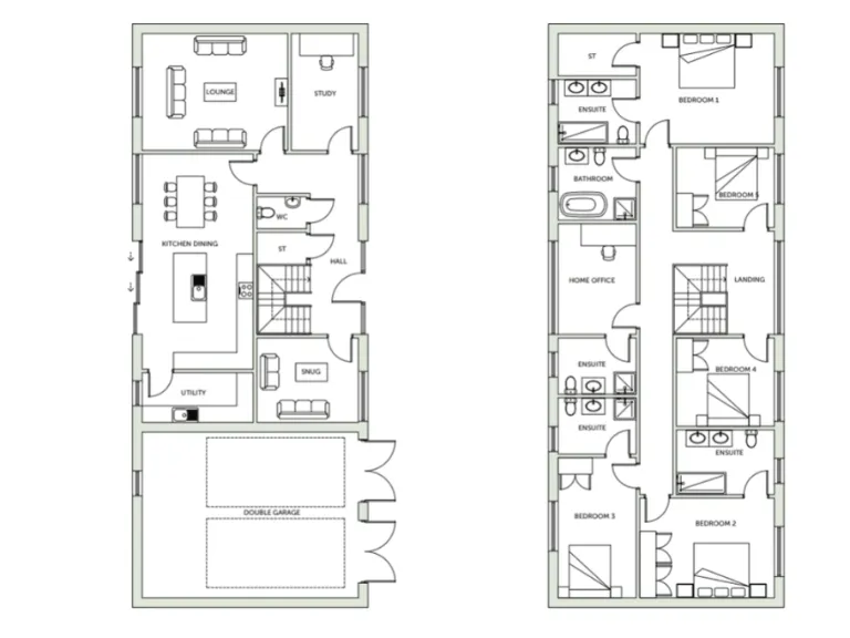
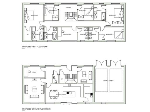
- Full planning permission granted for four new dwellings (H14-0851-24).
- Large plot size of 0.23 ha (0.59 acres) with a total area of 916 m² (9,856 sqft).
- Semi-rural setting with beautiful southern views over open farmland.
- Development inspired by traditional farmyard aesthetics.
- Low crime rate in a peaceful hamlet environment.

- **Potential Downsides:**
- Broadband speeds are slow, which may affect connectivity.
- Limited nearby amenities due to the semi-rural location.

This prime development opportunity offers a generous 0.23-hectare plot ready for ambitious investors or builders looking to create a charming residential project. With full planning permission for four homes already in place, you can begin your vision for modern yet traditionally inspired dwellings in a scenic countryside setting. The tranquil location boasts lovely views over open farmland, ensuring future owners will enjoy both privacy and natural beauty.

While this area has an average level of amenities and slower broadband speeds, it remains a safe and serene setting with excellent mobile connectivity. The surrounding community includes a selection of primary and secondary schools with solid Ofsted ratings, making it attractive for families seeking a peaceful lifestyle away from urban hustle. Seize this exclusive opportunity to shape a vibrant new living space in a welcoming village—properties like this don’t become available often!

Property Details

Image Descriptions

Textual Property Features

Detected Visual Features

Nearby Schools

Nearest Bars And Restaurants

,,,,}

Nearest General Shops

,,}

Nearest Grocery shops

,,}

Nearest Supermarkets

,,}

Nearest Religious buildings

,,}

Nearest Medical buildings

,,,}

Nearest Leisure Facilities

,,,,}

Nearest Tourist attractions

,,}

Nearest Train stations

,,,,}

Nearest Bus stations and stops

,,,,}

Nearest Hotels

,,}

Tags

Local Market Stats

Similar Properties

Meta

High Res Images

Compatible Images

Low res Images

Thumbnails

Raw Images