PE11 3NE - Land for sale in Fengate Road, West Pinchbeck, Spalding, Li…

View on Property Piper

Land for sale in Fengate Road, West Pinchbeck, Spalding, Lincolnshire, PE11

Summary - Fengate Road, West Pinchbeck, Spalding, Lincolnshire, PE11 PE11 3NE

1 bed 1 bath Land

**Key Features:**
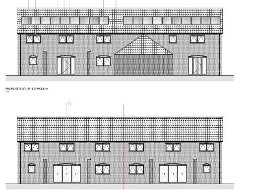
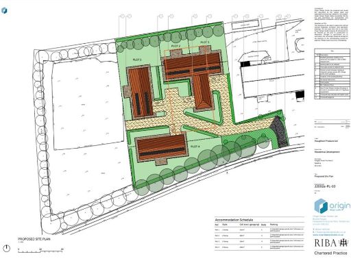
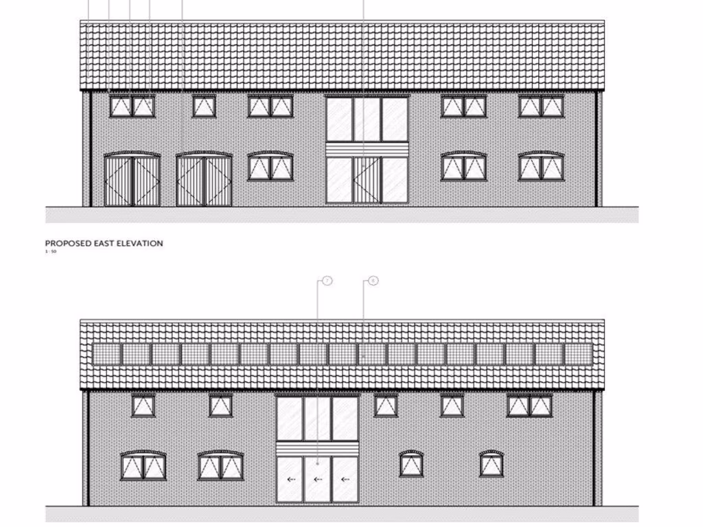
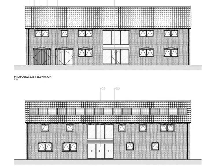
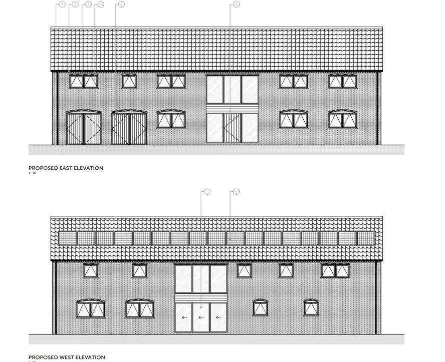
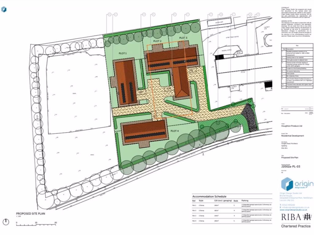
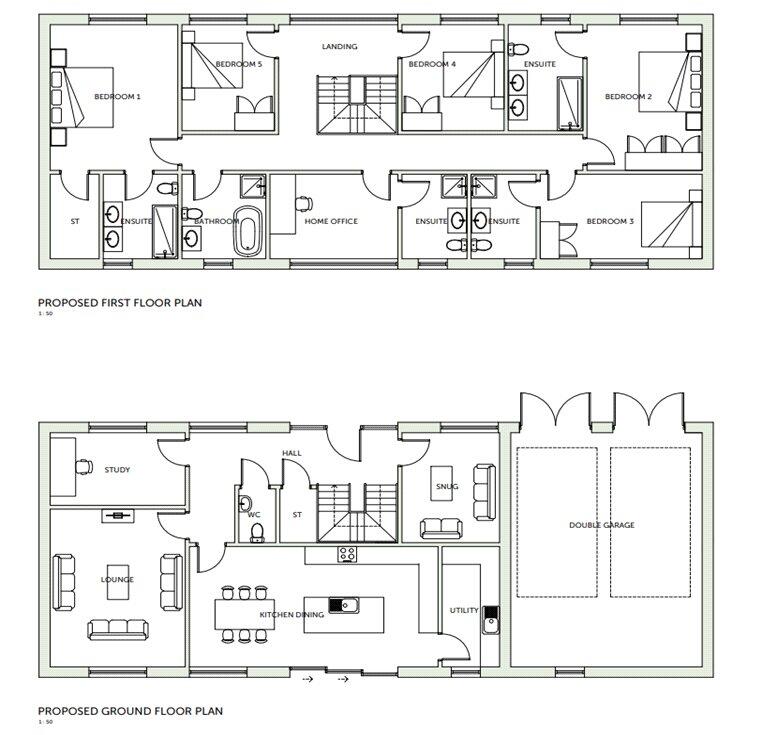
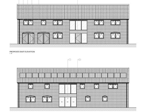
- Full planning permission for **4 new dwellings** in a **traditional farmyard aesthetic**
- Expansive development site of **0.23 hectares (0.59 acres)**
- Generous **GIA of 916 m² (9,856 sqft)** for residential projects
- Clear site, ready for construction
- Scenic views over open farmland, providing a quiet, semi-rural lifestyle
- **Low crime rate** and excellent mobile signal
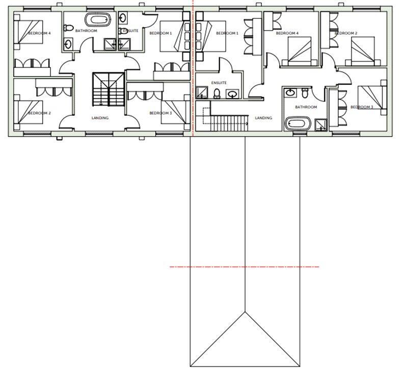
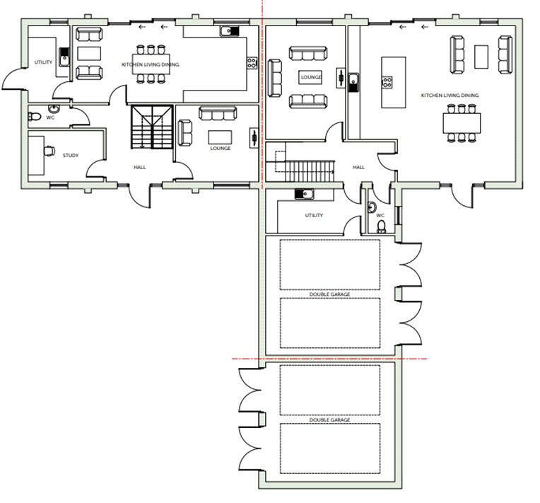
- Potential for **4 to 5 bedroom homes** with integrated garages

**Summary:**
Discover a remarkable development opportunity in a serene semi-rural setting with full planning permission granted for four thoughtfully designed homes in a charming traditional farmyard aesthetic. Spanning **0.23 hectares (0.59 acres)**, this cleared site offers stunning views over lush farmland, perfect for buyers seeking a tranquil environment combined with modern convenience. Each plot, ranging from 182m² to 260m² (GIA), allows for thoughtfully designed family dwellings with ample space for parking via integrated garages.

Located in a quiet hamlet with low crime rates and excellent mobile connectivity, this site also boasts access to reputable schools, making it ideal for families. With the groundwork already laid for future construction, this property presents a unique chance to create exclusive homes that blend modern living within pastoral surroundings. Act quickly—opportunities like this are rare and won't last long!

Property Details

Brochure Descriptions

Image Descriptions

Textual Property Features

Detected Visual Features

Nearby Schools

Nearest Bars And Restaurants

,,,,}

Nearest General Shops

,,}

Nearest Grocery shops

,,}

Nearest Supermarkets

,,}

Nearest Religious buildings

,,}

Nearest Medical buildings

,,,}

Nearest Leisure Facilities

,,,,}

Nearest Tourist attractions

,,}

Nearest Train stations

,,,,}

Nearest Bus stations and stops

,,,,}

Nearest Hotels

,,}

Tags

Local Market Stats

Similar Properties

Meta

High Res Images

Compatible Images

Low res Images

Thumbnails

Raw Images