Two single‑storey homes consented on an elevated rural plot five miles from Exeter.
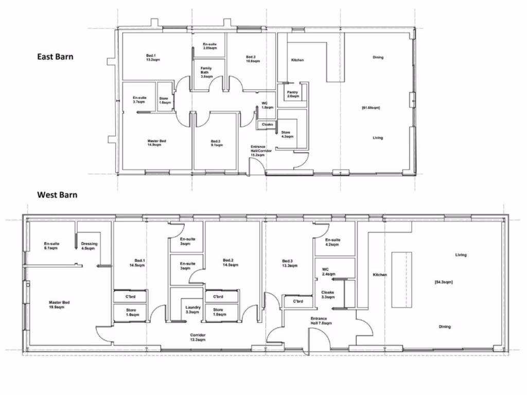
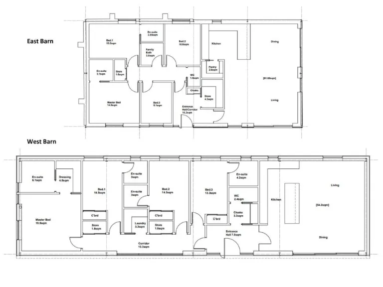
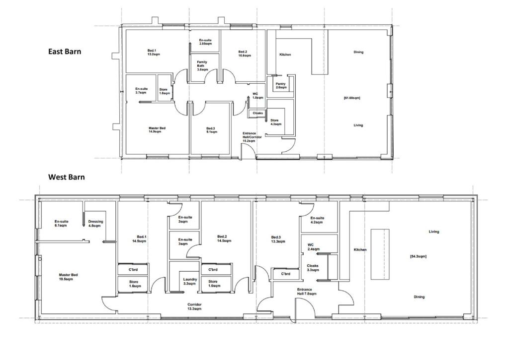
Class Q consent for two single‑storey 4‑bed dwellings (combined >3,500 sqft)
A rare development plot just west of Exeter with Class Q prior approval for two single‑storey 4‑bed dwellings, offering over 3,500 sqft of combined living space. The site sits elevated above Whitestone in a peaceful rural setting yet is only five miles from Exeter city centre — attractive for developers or self‑builders after countryside living close to urban amenities.
The land includes two large agricultural barns in weathered, derelict condition and around 0.44 acres of surrounding grounds, with additional adjoining land available by separate negotiation. Essential works will be required: clearance of overgrown vegetation, demolition or extensive refurbishment of the existing outbuildings, installation of a sewage treatment plant, and confirmation of mains service connections.
Buyers should budget for the stated Community Infrastructure Levy (CIL) sums and the Habitat Mitigation Regulation contributions listed on the Teignbridge portal, and follow the full list of planning conditions. Broadband on site is very slow and mobile signal is only average — suitable for rural living but potentially limiting for home working without alternative connectivity solutions.
This plot suits developers, self‑builders or investors targeting high‑value rural homes within easy reach of Exeter. The grant of Class Q consent reduces planning risk but purchasers must satisfy themselves on all technical, service and condition requirements before proceeding.
Commercial property for sale in Cowley, Exeter, EX5 — £300,000 • 1 bed • 1 bath • 2500 ft²
Barn conversion for sale in Cowley, Exeter, EX5 — £300,000 • 1 bed • 1 bath • 2500 ft²
Land for sale in Doddiscombsleigh, Exeter, EX6 — £275,000 • 5 bed • 2 bath • 9583 ft²
10 bedroom terraced house for sale in Neopardy, Crediton, EX17 — £295,000 • 10 bed • 1 bath
Land for sale in Neopardy, Crediton, EX17 — £295,000 • 1 bed • 1 bath • 4986 ft²
Land for sale in Treasbeare Lane, Clyst Honiton, Exeter, EX5 — £200,000 • 1 bed • 1 bath • 13068 ft²










































































