Full planning consent for a 2,500 sqft family home with detached outbuilding and 0.5 acre garden.
Full planning consent for approx. 2,500 sqft single-storey home
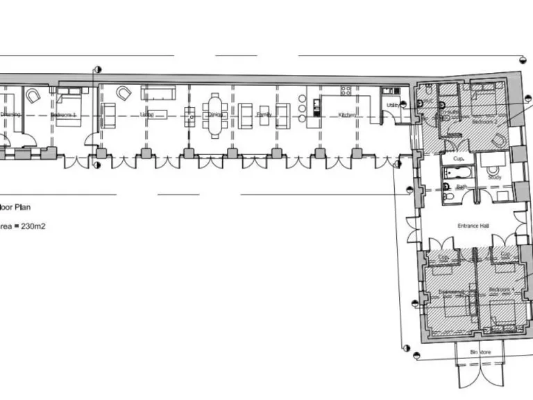
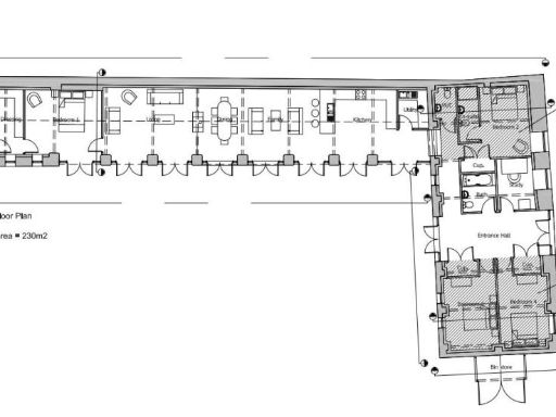
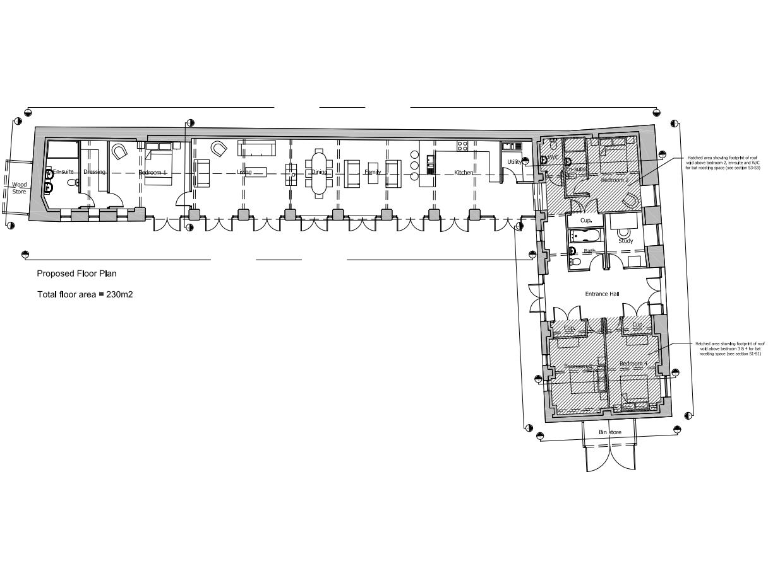
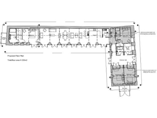
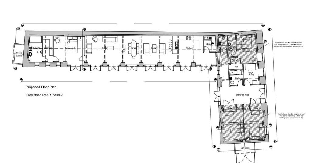
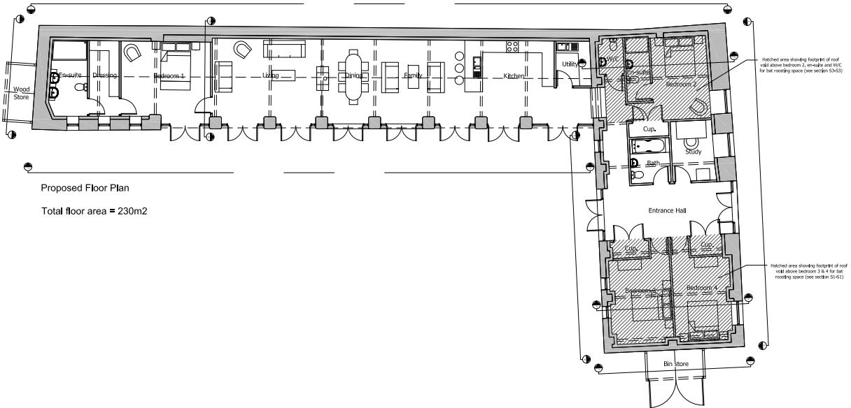
A rare courtyard of barns with full planning consent to create a single-storey, 2,500 sqft family home just outside Exeter. The former Granary and Linhay barns have extant consent (partially implemented), offering open-plan reception spaces, four bedrooms and large glazed openings that take advantage of the central courtyard and rural views.
The 0.5-acre plot includes a detached 1,650 sqft Shippon outbuilding with scope to extend accommodation subject to further approvals. Ample private parking, a landscaped garden with far-reaching countryside views and fast broadband/mobiles make this a practical, well-connected country base three miles from Exeter.
Practical matters are straightforward but material. A covenant requires the Granary, Linhay and Shippon buildings to remain a single residential unit. Purchasers must confirm mains service connections; the vendor retains rights to make service connections across the site. Pedestrian right of way exists on the eastern boundary.
CIL and Habitats Contribution payments have been made and pre-commencement landscaping and traffic-management conditions discharged, reducing early-stage costs and administration. The opportunity suits developers, self-builders or an investor seeking a conversion-ready rural project with strong location credentials.
Land for sale in Cowley, Exeter, EX5 — £300,000 • 1 bed • 1 bath • 22651 ft²
3 bedroom terraced house for sale in Cowley, Exeter, EX5 — £400,000 • 3 bed • 1 bath • 1269 ft²
5 bedroom barn conversion for sale in Longdown, Exeter, EX6 — £795,000 • 5 bed • 4 bath • 2643 ft²
Land for sale in Venn Farm, Sowton, Exeter, EX5 2AE, EX5 — £1,150,000 • 1 bed • 1 bath • 4758 ft²
Equestrian facility for sale in Tedburn St. Mary, Exeter, Devon, EX6 — £325,000 • 2 bed • 2 bath • 738 ft²
4 bedroom cottage for sale in Lower Shoplands and Barn, Newbuildings, Crediton, EX17 — £500,000 • 4 bed • 2 bath • 1408 ft²














































































































