EX5 2DY - Land for sale in Treasbeare Lane, Clyst Honiton, Exeter, EX5

View on Property Piper

Land for sale in Treasbeare Lane, Clyst Honiton, Exeter, EX5

Summary - Treasbeare Cottages EX5 2DY

1 bed 1 bath Land

**Standout Features:**
- Development site with Permission in Principle for two four-bedroom detached homes.
- Located in the desirable area of Cranbrook, East Devon, just 6 miles from Exeter.
- Significant plot size with a large total area of 13,068 sq. ft.
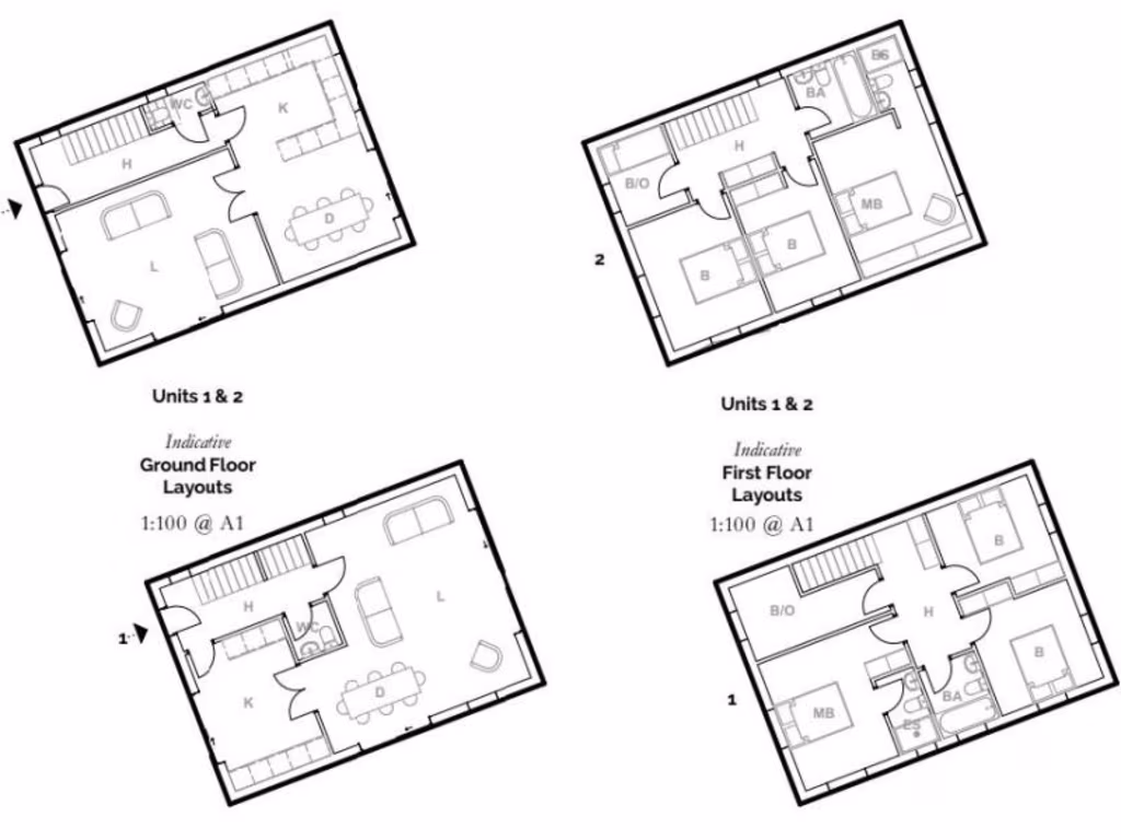
- Each unit estimated at 140 sqm, offering ample living space.
- Excellent transport links, including proximity to the M5, A30, and a mainline railway station.
- No local authority CIL contributions; freehold tenure.
- Three private parking spaces per dwelling.

**Potential Concerns:**
- The site may require additional investment for utilities and drainage solutions.
- Currently limited broadband speeds in the area.

**Summary:**
This prime development opportunity in the commuter-friendly town of Cranbrook is perfectly positioned for investors or developers looking to build two spacious four-bedroom detached homes. With the granted Permission in Principle (ref: 24/1200/PIP), you can create unique family dwellings tailored to modern living. Each home boasts a generous layout (140 sqm) and provides private parking for three vehicles, alongside extensive garden spaces for family enjoyment.

Strategically located, this site provides excellent connectivity to Exeter and beyond, while allowing for the tranquility of village life. Enjoy access to local amenities, schools, and scenic Devon countryside. The absence of CIL contributions adds to its appeal for cost-effective development. With rising demand for housing in this sought-after area, don't miss out on the chance to shape this unique opportunity—act quickly to secure your stake in a promising future.

Property Details

Brochure Descriptions

Image Descriptions

Floorplan Description

Textual Property Features

Detected Visual Features

Nearby Schools

Nearest Bars And Restaurants

,,,,}

Nearest General Shops

,,}

Nearest Grocery shops

,,}

Nearest Supermarkets

,,}

Nearest Religious buildings

,,}

Nearest Medical buildings

,,,}

Nearest Airports

}

Nearest Leisure Facilities

,,,,}

Nearest Tourist attractions

,,}

Nearest Train stations

,,,,}

Nearest Bus stations and stops

,,,,}

Nearest Hotels

,,}

Tags

Local Market Stats

AirBnB Data

Similar Properties

Meta

High Res Images

Compatible Images

Low res Images

Thumbnails

Raw Images

High Res Floorplan Images

Compatible Floorplan Images

Low res Floorplan Images

FloorplanImages Thumbnail

Raw Floorplan Images