Spacious plot with extant consent near Exeter, ideal for developers or self-builders.
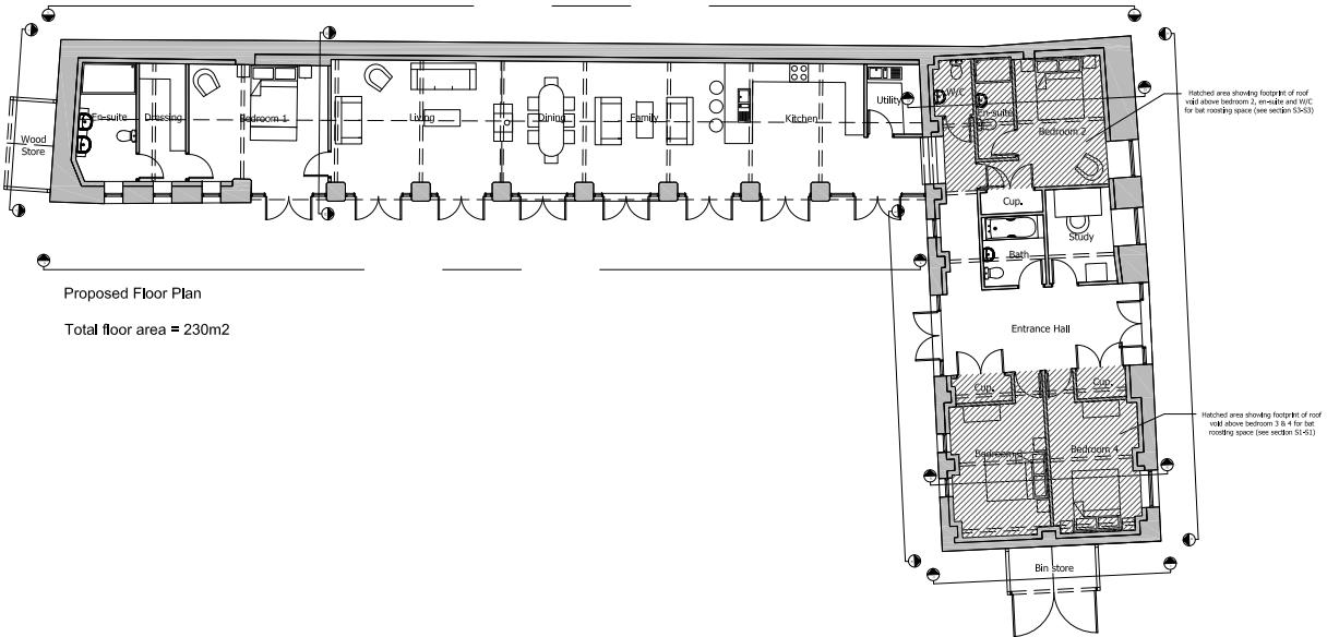
Full planning consent for conversion to ~2,500 sqft single-storey family home
Detached Shippon barn c.1,650 sqft — potential to extend (subject to approval)
Plot of approximately 0.5 acres with large private garden and rural views
Ample off-street parking and substantial courtyard space
CIL and Habitats Contribution payments already made; pre-commencement discharged
Covenant keeps Granary, Shippon and Linhay as a single residential unit
Pedestrian right of way runs along the eastern boundary; check access implications
Buyers must confirm mains service connections; vendor retains service connection rights
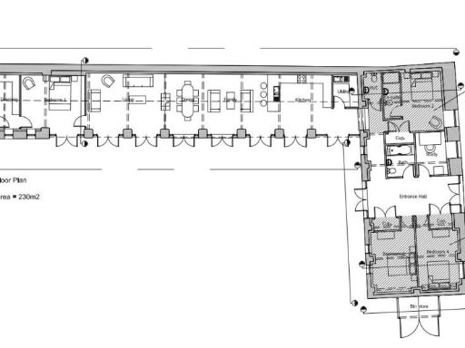
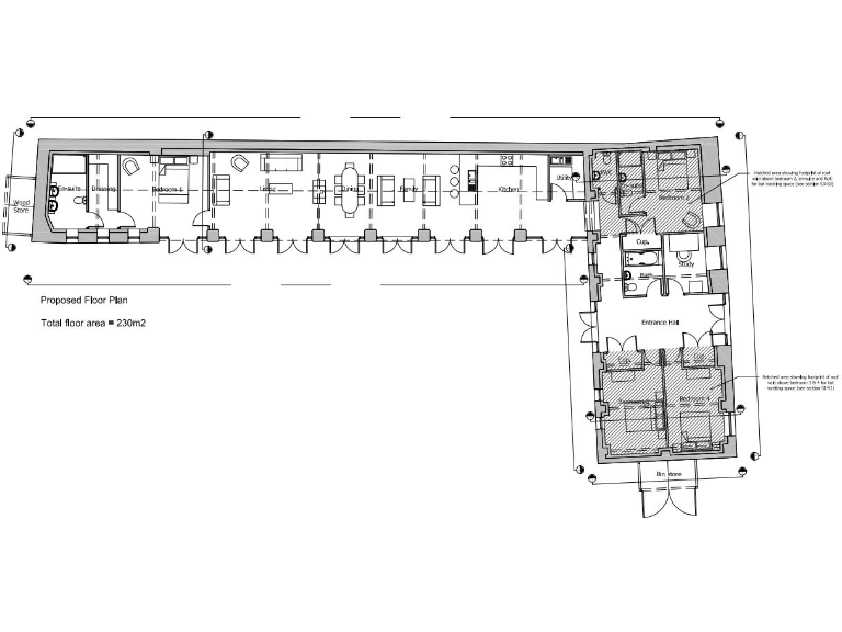
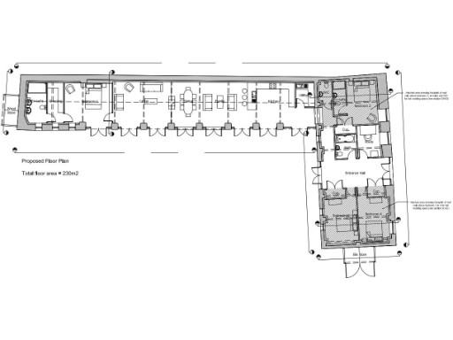
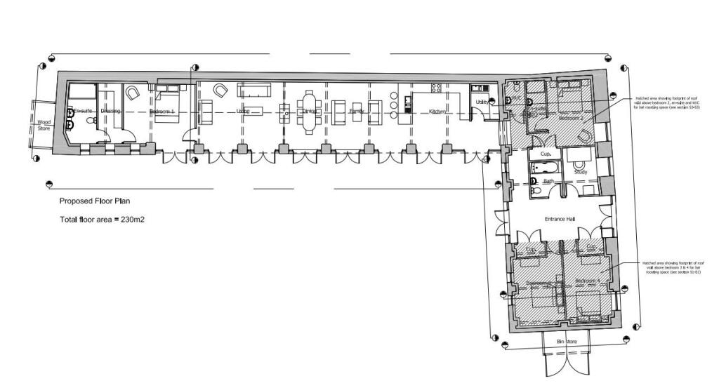
This is a rare development opportunity: a courtyard of former agricultural barns with full planning consent to convert Granary and Linhay into a single-storey family home of approximately 2,500 sqft. The site sits on about 0.5 acres just outside Exeter, offering rural views, substantial private garden space and generous off-street parking — attractive for a developer, self-builder or investor seeking a countryside project within easy reach of the city.
Consent is considered extant because demolition works forming part of the wider approval have been carried out and pre-commencement conditions were discharged. CIL and Habitats Contribution payments have been made, reducing early-cost uncertainty. A detached Shippon barn (c.1,650 sqft) offers scope to extend accommodation further, subject to obtaining the necessary approvals.
Important practical points: a covenant requires the Granary, Shippon and Linhay buildings to be retained together as a single residential unit; there is a pedestrian right of way along the eastern boundary; and purchasers must verify mains service connections themselves (vendor retains a right to make service connections across the site). The buildings are a mix of derelict and redeveloped elements and will require completion works and fit-out to deliver the approved dwelling.
Overall, the site is well-located for access to Exeter (about three miles) and major transport links, with fast broadband and strong mobile signal. This plot suits buyers who want a sizeable, characterful barn conversion with planning certainty, but who are prepared to manage completion, statutory obligations and the practicalities of rural construction.
Commercial property for sale in Cowley, Exeter, EX5 — £300,000 • 1 bed • 1 bath • 2500 ft²
4 bedroom detached house for sale in Whitestone, Exeter, EX4 — £350,000 • 4 bed • 1 bath • 3500 ft²
Land for sale in Whitestone, Exeter, EX4 — £350,000 • 1 bed • 1 bath • 19166 ft²
3 bedroom terraced house for sale in Cowley, Exeter, EX5 — £400,000 • 3 bed • 1 bath • 1269 ft²
5 bedroom detached house for sale in Whimple, Devon, EX5 — £850,000 • 5 bed • 3 bath • 2821 ft²
4 bedroom terraced house for sale in Farringdon Court, Exeter, EX5 — £875,000 • 4 bed • 2 bath • 3614 ft²














































































































