W6 0BG - 3 bedroom terraced house for sale in Brackenbury Road, Lond…

View on Property Piper

3 bedroom terraced house for sale in Brackenbury Road, London W6

Summary - 47 BRACKENBURY ROAD LONDON W6 0BG

3 bed 1 bath Terraced

**Standout Features:**
- Expansive 3-bedroom Victorian terraced house with generous living space
- Large open-plan kitchen/breakfast room leading to dining/family area
- Elegant double reception with period features, high ceilings, and a marble fireplace
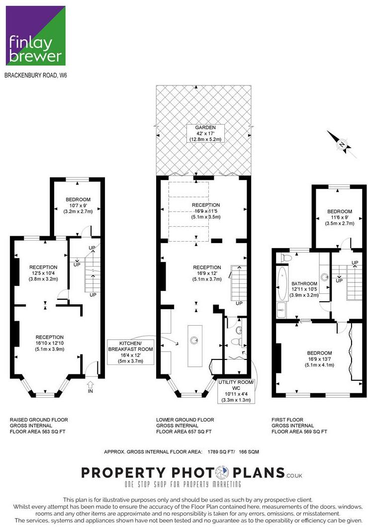
- Charming 42 ft walled garden, perfect for outdoor gatherings
- Prime location in a cosmopolitan neighborhood with excellent amenities
- Freehold tenure offers future flexibility for renovations or expansions

**Notable Concerns:**
- EPC rating of D (57) indicates potential energy efficiency improvements
- Possible lack of insulation could pose heating concerns in colder months

**Summary:**
Discover the elegance of this expansive Victorian terraced house, perfectly designed for family living and entertaining. Spanning approximately 1,791 sq ft, the property boasts a stylish open plan kitchen and dining area that flows seamlessly into a spacious family room, with French doors leading to a delightful 42 ft secluded garden—ideal for summer BBQs or quiet retreats. The high-ceilinged double reception exudes classic charm, featuring marble accents and period details that capture the essence of Victorian design.

This home offers three spacious double bedrooms, including a remarkable principal suite that occupies the entire first floor. Move-in ready and flooded with natural light, it invites you to enjoy comfort and style while exploring the potential for future enhancements. Located in a vibrant inner-city area with access to top-rated schools and the convenience of fast broadband, this property is an enticing opportunity not to be missed. Act quickly—properties of this caliber in W6 are rare and typically go fast!

Property Details

Brochure Descriptions

Image Descriptions

Floorplan Description

Rooms

Textual Property Features

Detected Visual Features

EPC Details

Nearby Schools

Nearest Bars And Restaurants

,,,,}

Nearest General Shops

,,}

Nearest Grocery shops

,,}

Nearest Supermarkets

,,}

Nearest Religious buildings

,,}

Nearest Medical buildings

,,,}

Nearest Airports

,,}

Nearest Leisure Facilities

,,,,}

Nearest Tourist attractions

,,}

Nearest Train stations

,,,,}

Nearest Bus stations and stops

,,,,}

Nearest Hotels

,,}

Tags

Local Market Stats

AirBnB Data

Similar Properties

Meta

High Res Images

Compatible Images

Low res Images

Thumbnails

Raw Images

High Res Floorplan Images

Compatible Floorplan Images

Low res Floorplan Images

FloorplanImages Thumbnail

Raw Floorplan Images