**Standout Features:**
- Expansive 11,235 sq ft Georgian principal country house.
- Seven spacious bedrooms and eight luxurious bathrooms.
- Indoor swimming pool and tennis court.
- Historic 18th Century Tythe Barn suitable for weddings and events.
- Extensive equestrian facilities including an indoor riding school, 18 stables, and 50 acres of paddocks.
- Charming gardens with a mix of lawns, an apple and pear orchard.
- Additional income potential through six cottages, maintained and currently tenanted.
- Set in a highly desirable rural area with stunning views over the Thames Valley.
**Summary:**
Discover the exquisite Hillfields Farm, an enchanting country estate offering over 251 acres of lush landscapes and an incredible 11,235 sq ft of living space. Perfect for equestrian enthusiasts or those seeking a multi-income opportunity, this estate boasts an impressive Georgian main house featuring multiple reception rooms, a bespoke kitchen, and an indoor pool—ideal for both entertaining and family gatherings. The property further includes several outbuildings, a charming Tythe Barn for captivating wedding events, and a range of cottages with assured tenancies for additional income.
The picturesque grounds complement the estate, with beautifully landscaped gardens, an orchard, and tennis court to enjoy. With expansive riding facilities and direct access to equestrian trails, this is a rare find for investors or families alike. While the property requires maintenance, particularly the indoor pool which is currently drained, its vast potential is undeniable. Seize this exclusive opportunity to own an exceptional estate offering comfort, leisure, and financial prospects. Experience true country living just moments from nearby amenities and excellent schools—act fast, properties of this scale and value are seldom available!
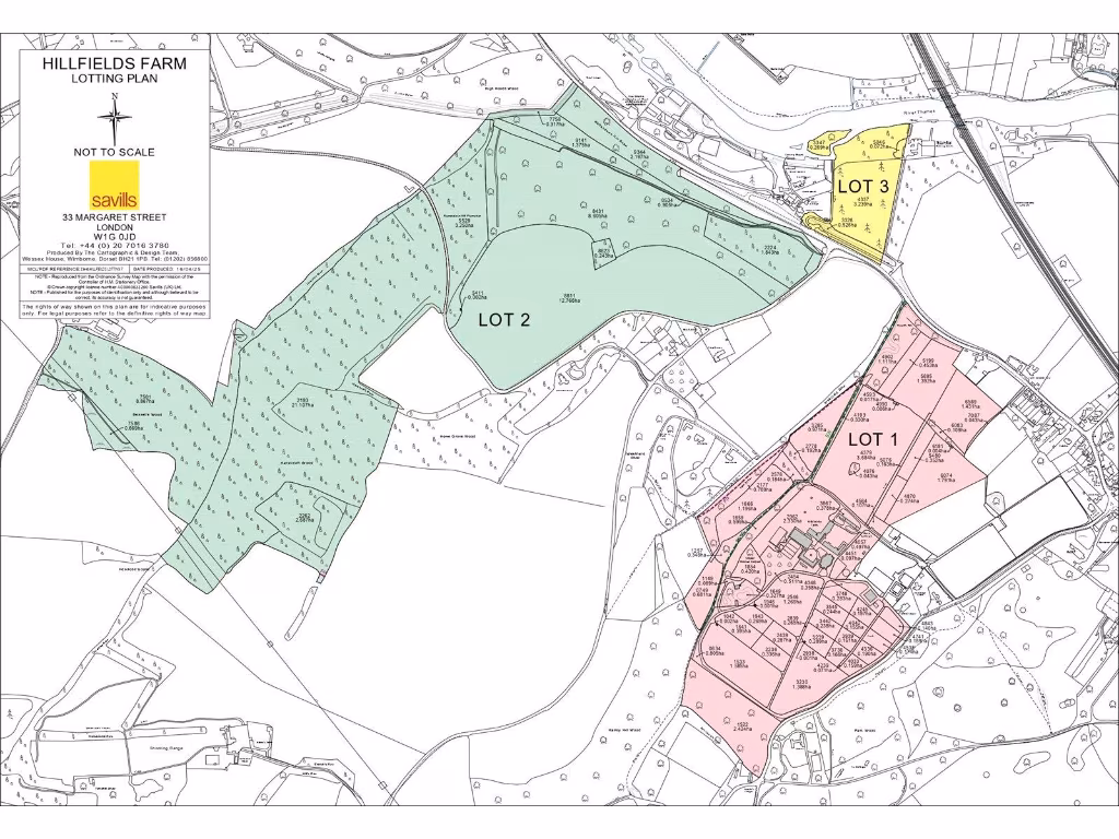
Equestrian facility for sale in Lot 1 | Hillfields Farm, Lower Basildon, Reading, Berkshire, RG8 — £7,500,000 • 7 bed • 8 bath • 11235 ft²
Land for sale in Lot 2 | Hillfields Farm, Lower Basildon, Reading, Berkshire, RG8 — £1,250,000 • 1 bed • 1 bath • 10355 ft²
10 bedroom detached house for sale in Whitchurch Hill, Oxfordshire, RG8 — £3,500,000 • 10 bed • 6 bath • 10872 ft²
7 bedroom detached house for sale in Hartley Court Road, Three Mile Cross, Reading, Berkshire, RG7 — £2,750,000 • 7 bed • 6 bath • 14898 ft²
Land for sale in Lot 3 | Hillfields Farm, Lower Basildon, Reading, Berkshire, RG8 — £500,000 • 1 bed • 1 bath
Equestrian facility for sale in Frieth Road, Marlow, Buckinghamshire, SL7 — £8,500,000 • 7 bed • 5 bath • 9581 ft²






















































































































































































