RG8 9PE - Equestrian facility for sale in Lot 1 | Hillfields Farm, Lo…

View on Property Piper

Equestrian facility for sale in Lot 1 | Hillfields Farm, Lower Basildon, Reading, Berkshire, RG8

Summary - Hillfields Farm, Park Wall Lane, Lower Basildon RG8 9PE

7 bed 8 bath Equestrian Facility

**Standout Features:**
- Expansive 11,235 sq ft Georgian country house
- Seven spacious bedrooms and eight bathrooms
- Indoor pool, tennis court, and extensive gardens
- Equestrian facilities including a riding school and 18 stables
- Six cottage terrace with rental income potential
- Historic Tythe Barn for weddings and events
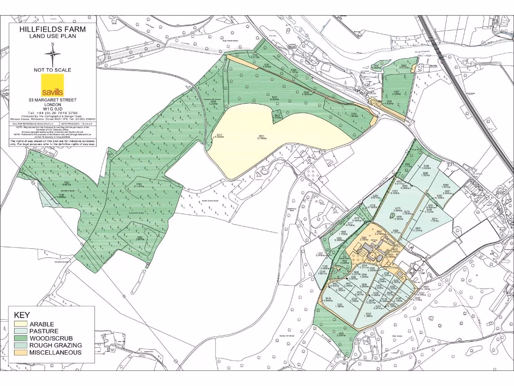
- 50 acres of pasture with impressive views across the Thames Valley
- Eco-friendly features: solar panels and woodchip biomass boiler

**Concise Summary:**
Discover Hillfields Farm, an extraordinary Georgian country estate extending over 11,235 sq ft, nestled in a tranquil rural setting with breathtaking views of the Thames Valley. This expansive property features an elegant main house with seven bedrooms, eight bathrooms, and generous living spaces, perfect for entertaining. A stunning indoor pool and outdoor tennis court offer leisure opportunities alongside beautiful gardens and orchards.

Ideal for equestrian enthusiasts, the estate includes 50 acres of paddocks, an indoor riding school with a viewing platform, and 18 stables. Additionally, a terrace of six cottages presents an attractive rental income opportunity, and an historic Tythe Barn serves as a popular venue for weddings and events. While the house is in good condition, the indoor pool is currently unused and will require maintenance. Offering a unique blend of luxurious country living and income-generating potential, this property is a rare find that won’t last long on the market. Embrace the chance to own a piece of rural elegance today!

Property Details

Image Descriptions

Floorplan Description

Rooms

Textual Property Features

Detected Visual Features

EPC Details

Nearby Schools

Nearest Bars And Restaurants

,,,,}

Nearest General Shops

,,}

Nearest Grocery shops

,,}

Nearest Supermarkets

,,}

Nearest Religious buildings

,,}

Nearest Medical buildings

,,,}

Nearest Leisure Facilities

,,,,}

Nearest Tourist attractions

,,}

Nearest Train stations

,,,,}

Nearest Bus stations and stops

,,,,}

Nearest Hotels

,,}

Tags

Local Market Stats

AirBnB Data

Similar Properties

Meta

High Res Images

Compatible Images

Low res Images

Thumbnails

Raw Images

High Res Floorplan Images

Compatible Floorplan Images

Low res Floorplan Images

FloorplanImages Thumbnail

Raw Floorplan Images