Private Thames frontage with island and slipway access ideal for recreation or coppice income.
10.14 acres of riverside woodland adjoining the River Thames
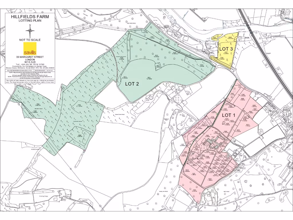
A rare riverside parcel set in 10.14 acres adjoining the River Thames, Lot 3 at Hillfields Farm offers woodland, willow planting and an island linked to the bank by a footbridge. The majority of the plot is planted with willow—already managed and harvested for weaving—providing both landscape character and ongoing maintenance/harvest activity. A legal easement gives access to a neighbouring slipway, supporting boating, kayaking and other river recreation.
The land lies in an elevated position overlooking the Thames Valley, with convenient road links via the nearby A329 and quick rail access from Pangbourne into Reading and London. The surrounding area is very affluent with low crime, good broadband speeds and nearby well-regarded state and independent schools, making the plot attractive for private retreat use or specialist rural investment.
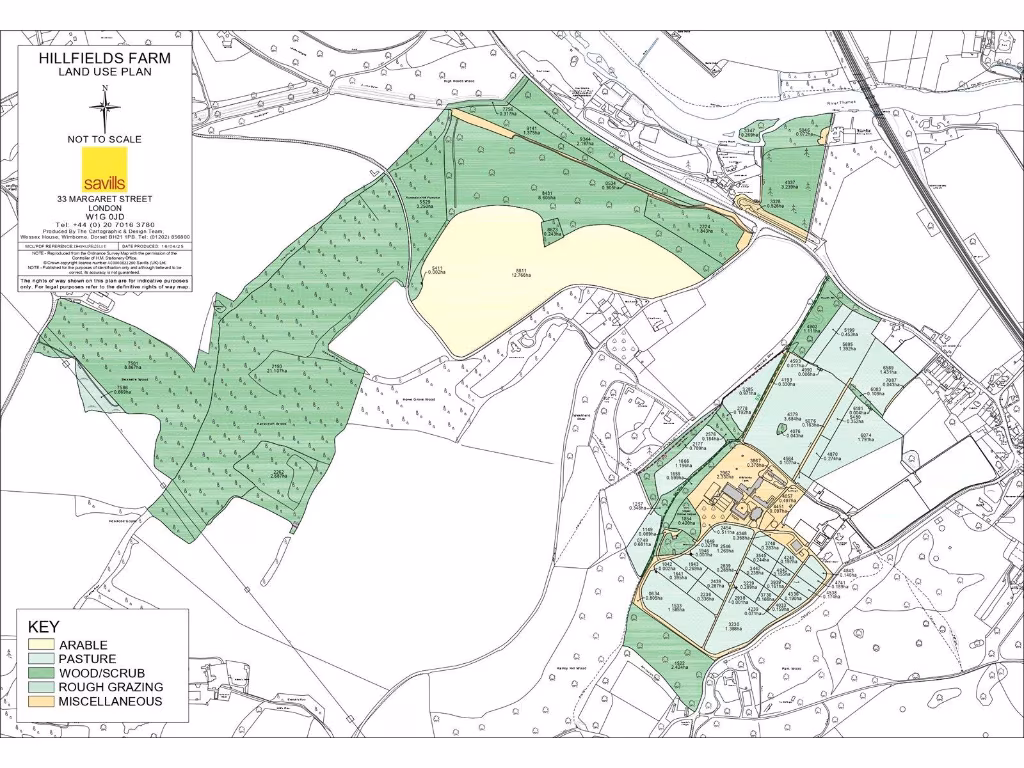
Buyers should note practical considerations: the site is freehold but carries an EPC rating of E; council tax is stated as very expensive. The willow woodland requires ongoing coppice management if harvesting is to continue, and the island is accessed by a footbridge, which will need regular inspection and upkeep. There is no recorded flood risk for the lot.
Land for sale in Lot 2 | Hillfields Farm, Lower Basildon, Reading, Berkshire, RG8 — £1,250,000 • 1 bed • 1 bath • 10355 ft²
House for sale in Riverside Meadows at Charvil, RG10 — £700,000 • 1 bed • 1 bath
Equestrian facility for sale in The Whole | Hillfields Farm, Lower Basildon, Reading, Berkshire, RG8 — £9,250,000 • 7 bed • 8 bath • 11235 ft²
Farm land for sale in Land on The South Side Of Eastfield Lane, RG8 — £425,000 • 1 bed • 1 bath
Equestrian facility for sale in Lot 1 | Hillfields Farm, Lower Basildon, Reading, Berkshire, RG8 — £7,500,000 • 7 bed • 8 bath • 11235 ft²
5 bedroom detached house for sale in Willow Lane, Wargrave, Reading, Berkshire, RG10 — £2,450,000 • 5 bed • 3 bath • 3647 ft²


























