Spacious period flat with high ceilings and garden access for family life.
Super‑prime Holland Park location, moments from amenities and transport
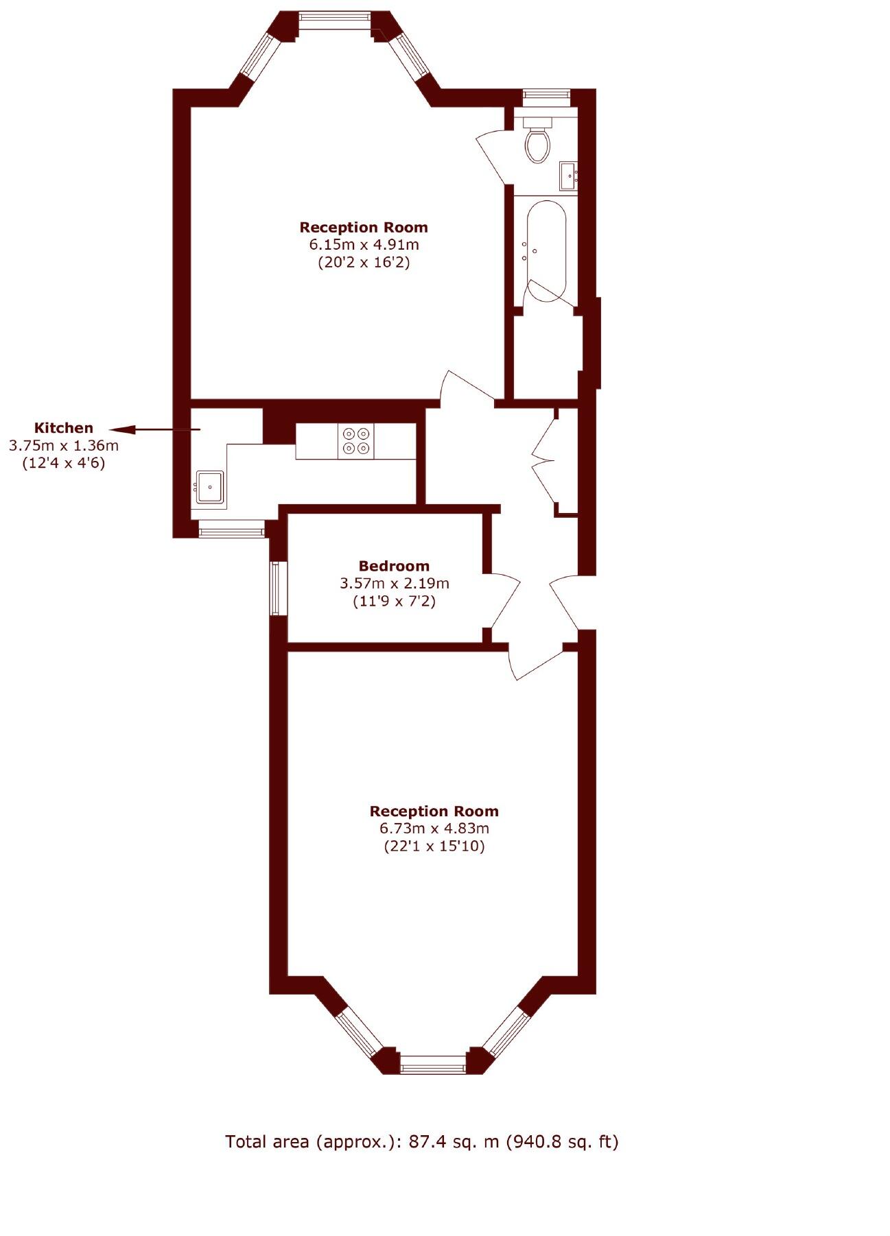
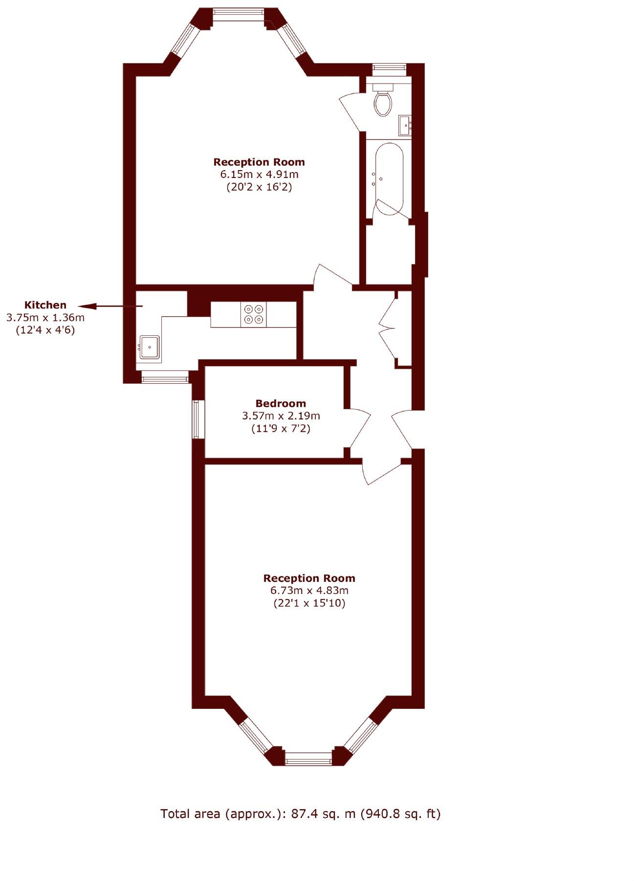
Set within a grand Italianate villa on Holland Park, this raised ground two‑bedroom apartment offers rare scale and period charm in a super‑prime W11 location. At approximately 940 sq ft the flat benefits from spectacular high ceilings, generous room proportions and large sash windows that flood the space with natural light. A fully fitted kitchen and access to a shared garden add practical comfort for everyday family life.
The building is Victorian with solid brick walls and original character details throughout; these features give the home strong kerb appeal but also mean some modern retrofit work (insulation, secondary glazing) could improve comfort and running costs. Heating is mains gas via boiler and radiators; there is one bathroom serving two bedrooms.
Practical advantages include Share of Freehold tenure, very low local crime, excellent mobile and fast broadband, and immediate access to Holland Park’s amenities and transport links. Council Tax is Band F and should be factored into ongoing costs. Information should be checked and confirmed prior to purchase.
This flat suits a family or professional couple who value location, generous period proportions and scope to enhance the property’s thermal performance while enjoying one of London’s most sought‑after neighbourhoods.
4 bedroom flat for sale in Holland Park, Holland Park, W11 — £2,500,000 • 4 bed • 1 bath • 2200 ft²
2 bedroom flat for sale in Holland Park, London, W11 — £1,695,000 • 2 bed • 2 bath • 1517 ft²
2 bedroom flat for sale in Holland Park, London, W11 — £1,550,000 • 2 bed • 1 bath • 971 ft²
1 bedroom flat for sale in Holland Park, Notting Hill, W11 — £1,730,000 • 1 bed • 1 bath • 1086 ft²
2 bedroom apartment for sale in Holland Park, London, W11 — £1,450,000 • 2 bed • 1 bath • 965 ft²
4 bedroom flat for sale in Holland Park, London, W11 — £2,500,000 • 4 bed • 2 bath • 2208 ft²










































