Modern first-floor flat near Haymarket — ideal for first-time buyers or investors.
Bright, spacious living room with large windows
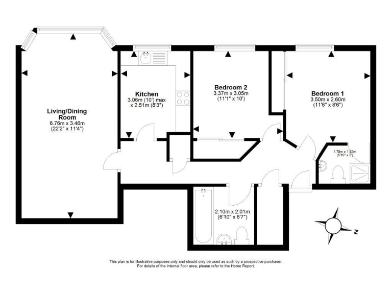
Light, modern and well-presented, this two-bedroom first-floor flat sits in a tidy, low-rise development moments from Haymarket and the West End. The living room is bright and generously proportioned, with large windows and engineered timber floors that create an open, comfortable space. A contemporary fitted kitchen and two double bedrooms — the principal with an en-suite — complete a straightforward, move-in-ready layout.
Practical features include gas central heating, double glazing, private residents’ parking and neatly maintained communal grounds. The flat is offered freehold, has an EPC rating C and a modest service charge of around £840 per year (factor fee circa £70 pcm covers buildings insurance). Broadband and mobile signal are reported fast and excellent respectively, useful for commuters or working professionals.
This property suits first-time buyers, young professionals or investors seeking a well-located city-centre flat with low immediate maintenance needs. The central location gives easy access to transport links, shops and leisure, but also brings city noise and activity that some buyers may find lively.
Buyers should note the local area scores as relatively deprived and council tax is above average (Band E). Parking is provided for residents but is communal/allocated rather than private driveway; potential purchasers seeking a large private garden or quiet suburban seclusion may want to look elsewhere. Overall, the flat offers sensible, comfortable city living with clear rental or owner-occupier appeal.
2 bedroom flat for sale in 9/6 Dalry Gait, Haymarket, Edinburgh, EH11 2AU, EH11 — £275,000 • 2 bed • 2 bath • 700 ft²
2 bedroom flat for sale in Easter Dalry Place, , Dalry, EH11 — £275,000 • 2 bed • 2 bath • 775 ft²
2 bedroom flat for sale in 1/3 Easter Dalry Rigg, Edinburgh, EH11 — £265,000 • 2 bed • 2 bath • 786 ft²
2 bedroom ground floor flat for sale in 1/1 Easter Dalry Rigg, Haymarket, Edinburgh, EH11 2TG, EH11 — £270,000 • 2 bed • 2 bath • 775 ft²
2 bedroom ground floor flat for sale in Duff Road, Edinburgh, EH11 — £260,000 • 2 bed • 1 bath • 603 ft²
2 bedroom flat for sale in 1 1F1 Wheatfield Road, Gorgie, EH11 2PS, EH11 — £195,000 • 2 bed • 1 bath • 635 ft²














































