Bright, centrally located apartment ideal for first-time buyers and commuters.
Open-plan living room and fitted kitchen with plentiful natural light
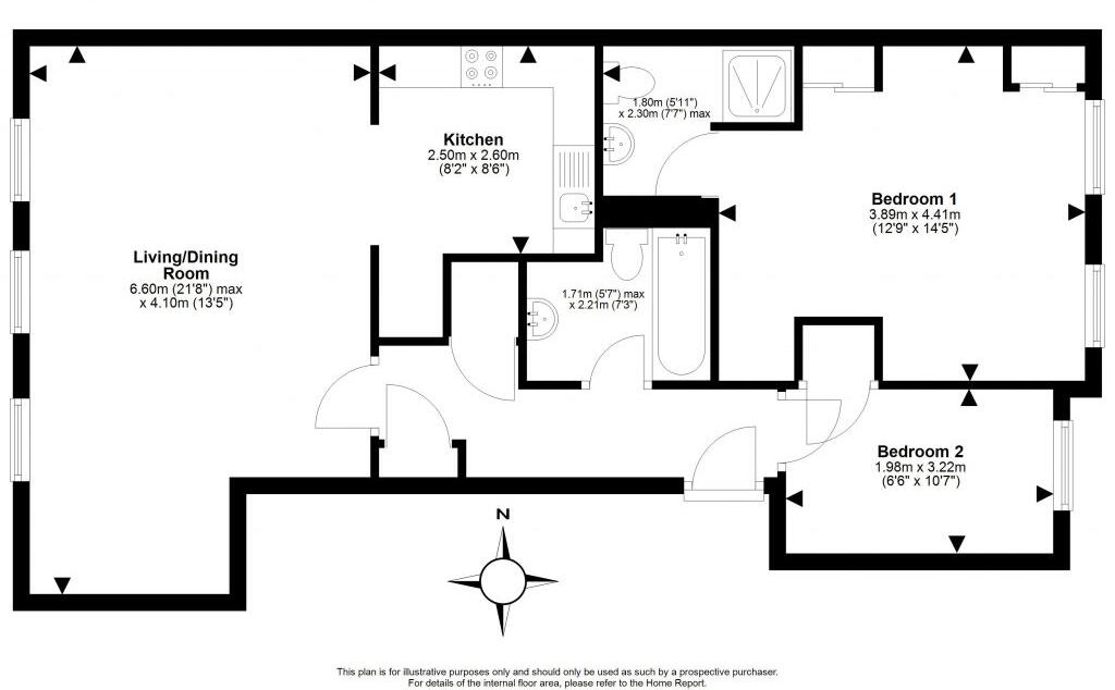
Light-filled, modern two-bedroom flat in central Haymarket offering a practical, move-in-ready layout. The open-plan living room and kitchen create a flexible social space, while the larger master bedroom benefits from built-in wardrobes and a private en-suite. Good natural light from large windows gives the apartment a bright, comfortable feel.
Location is a major strength: Haymarket station, trams and buses are within easy walking distance, making this an attractive base for commuters, students and a first-time buyer wanting excellent transport links. On-site communal grounds and off-street residents’ permit parking reduce day-to-day maintenance hassle and add convenience.
Costs to note: the property carries an annual factor/service charge (budgeted £1,222.21) and council tax is above average, which will affect running costs. The surrounding area is classified as very deprived in parts — buyers should consider local social profile alongside the clear transport and amenity benefits.
Overall this freehold apartment suits a first-time buyer or buy-to-let investor seeking central location, straightforward accommodation and easy access to the city. The flat is presented in neutral, well-maintained condition and offers immediate occupancy with modest ongoing service costs.
2 bedroom flat for sale in Richmond Terrace, Edinburgh, EH11 — £235,000 • 2 bed • 1 bath • 474 ft²
2 bedroom ground floor flat for sale in 1/1 Easter Dalry Rigg, Haymarket, Edinburgh, EH11 2TG, EH11 — £265,000 • 2 bed • 2 bath • 775 ft²
2 bedroom flat for sale in 4/8 Haymarket Terrace, Haymarket, Edinburgh, EH12 5JZ, EH12 — £290,000 • 2 bed • 1 bath • 883 ft²
2 bedroom ground floor flat for sale in Duff Road, Edinburgh, EH11 — £260,000 • 2 bed • 1 bath • 603 ft²
2 bedroom flat for sale in 12/8 Haymarket Terrace, Haymarket, Edinburgh, EH12 5JZ, EH12 — £225,000 • 2 bed • 1 bath • 592 ft²
2 bedroom flat for sale in 93/2 Morrison Street, Haymarket, Edinburgh, EH3 8BX, EH3 — £234,995 • 2 bed • 1 bath • 689 ft²










































































