PE34 3BL - 1 bed fully consented building plot in South West Norfolk,…

View on Property Piper

Land for sale in Rare opportunity to build your dream home, PE34

Summary - QUAKER FARM, HIGH ROAD PE34 3BL

1 bed 1 bath Land

Ready-to-build rural plot with full permission for a four-bedroom family home..
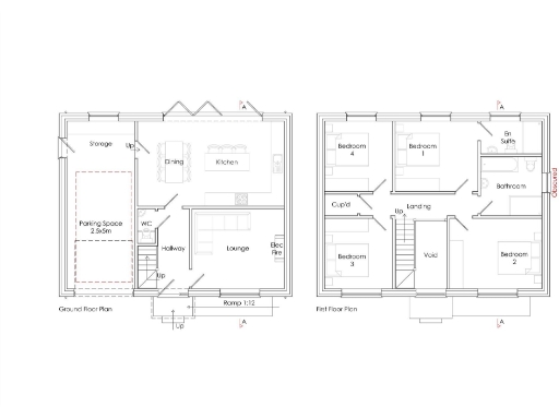
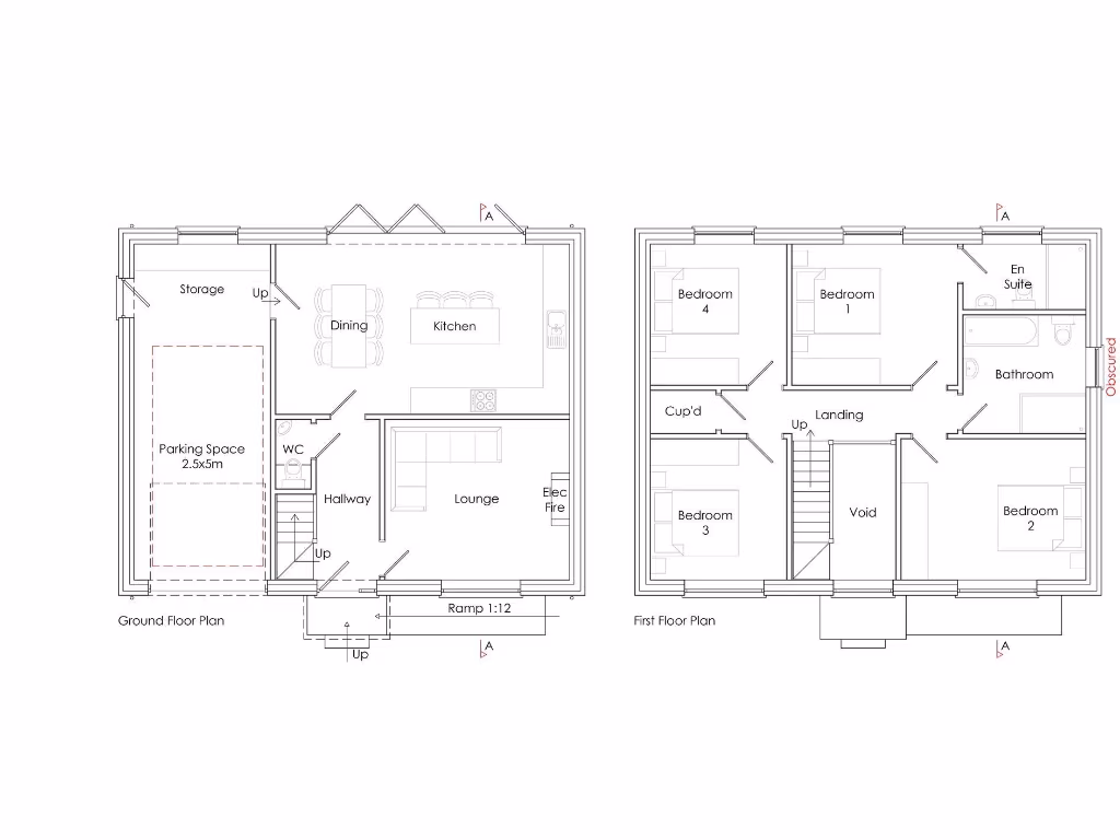
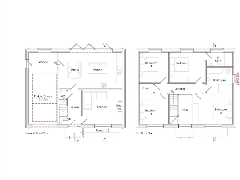
- Full planning permission for a detached four-bedroom, two-storey house
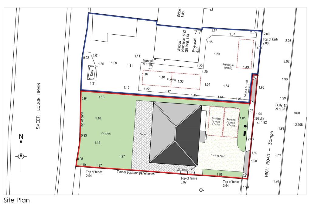
- Private vehicular access, off-road parking and turning space included
- Elevated finished floor levels and flood-resilient construction specified
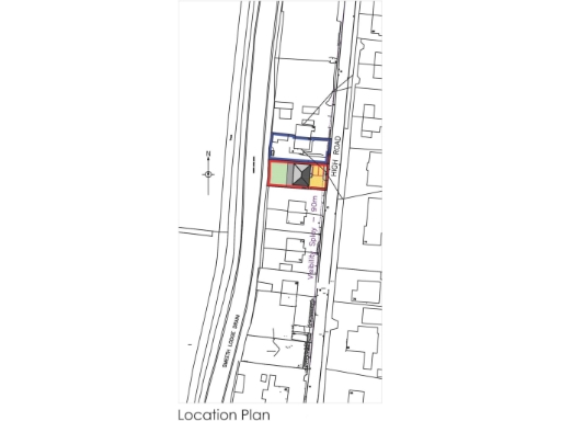
- Generously sized infill plot between two established dwellings
- Located in Tilney cum Islington with easy access to King’s Lynn and A47
- Medium flood risk — mitigation measures required (in planning condition)
- Slow broadband and average mobile signal; rural utilities likely limited
- Sold freehold and chain free, price listed at £100,000
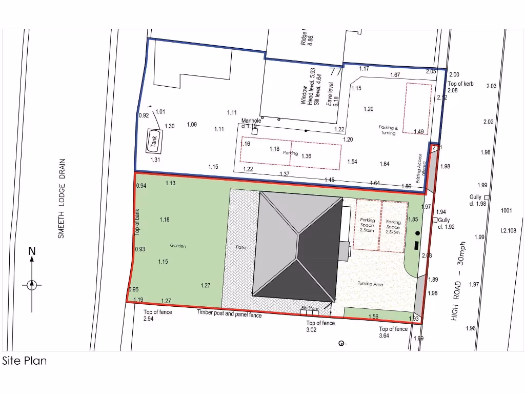
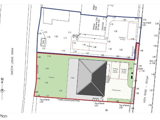
A rare cleared infill plot with full planning permission (West Norfolk & King’s Lynn Ref: 24/01318/F) to build a detached four-bedroom, two-storey family home. The approved scheme includes private vehicular access, off-road parking and a dedicated turning area — all clearly laid out within the site. Elevated finished floor levels and flood-resilient construction are specified in the consent and the approved Flood Risk Assessment.

Set discreetly between two established dwellings on High Road in Tilney cum Islington, the site offers a peaceful village setting with easy access to King’s Lynn and the A47. The plot is well-suited to a small developer or someone wanting to self-build a family home in a rural location; Watlington station and local village amenities are within reasonable driving distance.

Notable practical points are straightforward: the site sits in a medium flood-risk area (mitigations are required and included in the consent), broadband speeds are slow, and the wider area records higher deprivation levels. The plot is sold freehold and chain free, making it ready for immediate mobilisation by a buyer who will undertake the build and final connections.

Property Details

Brochure Descriptions

Image Descriptions

Floorplan Description

Rooms

Textual Property Features

Target Audience

AI Tags

Detected Visual Features

Nearby Schools

Nearest Bars And Restaurants

,,,,}

Nearest General Shops

,,}

Nearest Grocery shops

,,}

Nearest Supermarkets

,,}

Nearest Religious buildings

,,}

Nearest Medical buildings

,,,}

Nearest Leisure Facilities

,,,,}

Nearest Tourist attractions

,,}

Nearest Train stations

,,,,}

Nearest Bus stations and stops

,,,,}

Nearest Hotels

,,}

Tags

Local Market Stats

Similar Properties

Meta

High Res Images

Compatible Images

Low res Images

Thumbnails

Raw Images

High Res Floorplan Images

Compatible Floorplan Images

Low res Floorplan Images

FloorplanImages Thumbnail

Raw Floorplan Images