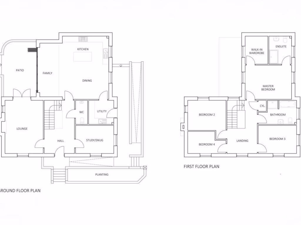
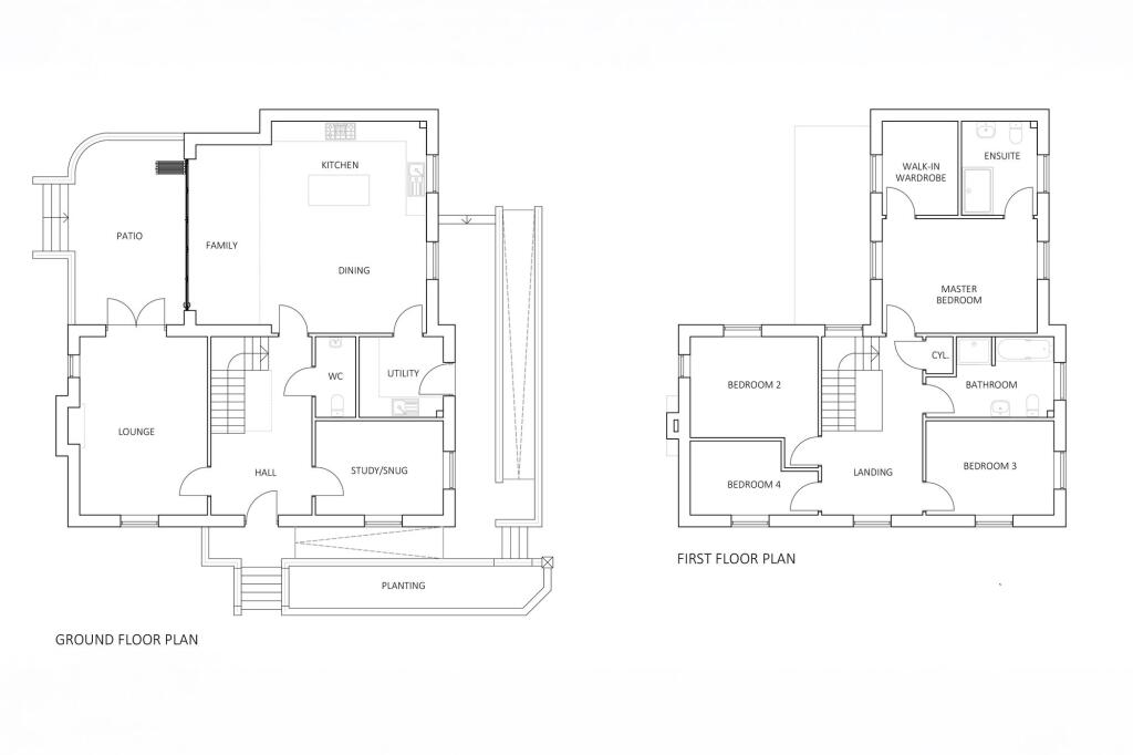
**Standout Features:**
- Approved planning permission for a four-bedroom detached home (Ref 25/00147/F).
- Contemporary design with open-plan living, study, and en-suite master bedroom.
- Private garden space and off-street parking included.
- Large plot size (7,319 sq. ft.) situated in a desirable area of Terrington St Clement.
- Existing workshop for temporary storage.
- Low crime area with good local schools and amenities.
**Summary:**
Seize this rare opportunity to shape your dream home with full planning permission granted for a modern four-bedroom detached house in the picturesque village of Terrington St Clement. This shovel-ready site, featuring an open-plan layout and ample garden space, is perfect for self-build enthusiasts or developers looking for their next project. The plot benefits from modern exemptions, streamlining the build process, while the existing workshop offers practical temporary storage. 
Nestled in a charming community with excellent schools, cozy local pubs, and direct transport links to King’s Lynn and beyond, this property is ideally suited for families and investors alike. Enjoy the tranquility of rural living without sacrificing convenience—local amenities are just a stone’s throw away, with great bus services connecting you to larger towns. Don't miss out on this opportunity to create a bespoke, contemporary home in a sought-after location!
 Land for sale in Old Church Road, Terrington St. John, Wisbech, PE14 — £350,000 • 1 bed • 1 bath
 Land for sale in Old Church Road, Terrington St. John, Wisbech, PE14 — £350,000 • 1 bed • 1 bath Land for sale in Rare opportunity to build your dream home, PE34 — £100,000 • 1 bed • 1 bath
 Land for sale in Rare opportunity to build your dream home, PE34 — £100,000 • 1 bed • 1 bath 4 bedroom detached house for sale in Bustards Lane, Walpole St. Andrew, PE14 — £600,000 • 4 bed • 1 bath • 2659 ft²
 4 bedroom detached house for sale in Bustards Lane, Walpole St. Andrew, PE14 — £600,000 • 4 bed • 1 bath • 2659 ft² 4 bedroom detached house for sale in Tuxhill Road, Terrington St Clement, PE34 — £395,000 • 4 bed • 3 bath • 2513 ft²
 4 bedroom detached house for sale in Tuxhill Road, Terrington St Clement, PE34 — £395,000 • 4 bed • 3 bath • 2513 ft² Land for sale in Lancewood Gardens, Leverington, PE13 — £225,000 • 1 bed • 1 bath • 17728 ft²
 Land for sale in Lancewood Gardens, Leverington, PE13 — £225,000 • 1 bed • 1 bath • 17728 ft² 3 bedroom detached house for sale in Hay Green Road South, Terrington St Clement, King's Lynn, PE34 — £599,995 • 3 bed • 2 bath • 3160 ft²
 3 bedroom detached house for sale in Hay Green Road South, Terrington St Clement, King's Lynn, PE34 — £599,995 • 3 bed • 2 bath • 3160 ft²


































