PR6 8TD - 6 bedroom farm house for sale in Trigg Road, Heapey, Chorle…

View on Property Piper

6 bedroom farm house for sale in Trigg Road, Heapey, Chorley, Lancashire, PR6

Summary - Lower House Farm, Riggs Lane PR6 8TD

6 bed 4 bath Farm House

Large listed farmhouse with planning for renovation — substantial works and flood risk.
Grade II listed farmhouse and barn dating from 1692
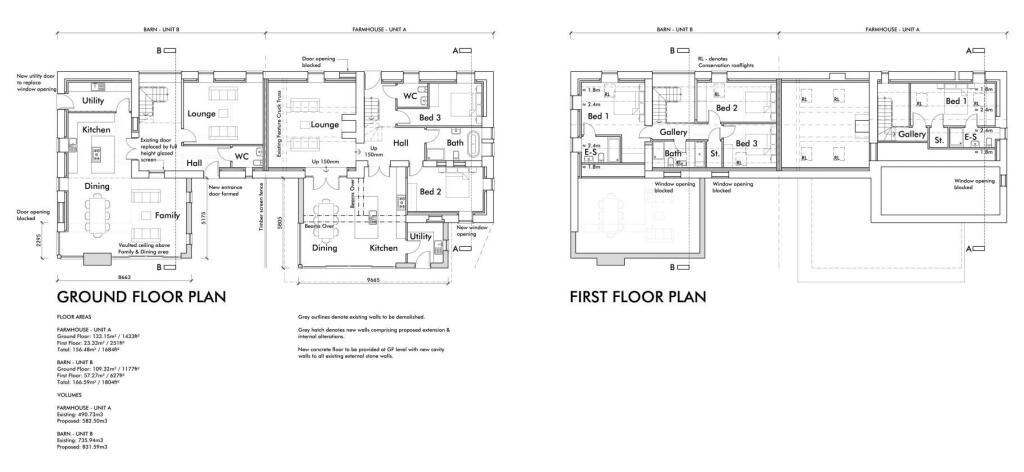
Set in elevated countryside near Chorley, this Grade II listed farmstead combines historic character with sizable development potential. Part of the barn has been converted and is habitable; the remainder of the farmhouse and barn are derelict and require comprehensive renovation. A live planning application (Chorley Borough Council 23/00655/FLK) seeks extension and renovation — plans can be viewed on the council website and would guide restoration but listed-status constraints will apply.

The site offers roughly 4,037 sq ft of accommodation across two units, extensive outbuildings and a large plot with private drive and off-street parking. Services include mains water and electricity; drainage is to a septic tank. The elevated position gives open countryside views and privacy, and local amenities, good primary and secondary schools and Chorley town centre are within a short drive.

Important considerations: the property is Grade II listed, which will restrict some changes and may complicate approvals and costs. It has a high flood risk and significant parts are derelict — expect substantial structural and internal works, potential specialist conservation contractors, and associated cost. Broadband speeds are very slow despite excellent mobile signal. For buyers seeking a character restoration project or an investor planning a sympathetic conversion, this offers rare scope; it is not a turnkey home.

Property Details

Brochure Descriptions

Image Descriptions

Floorplan Description

Rooms

Textual Property Features

Target Audience

AI Tags

Detected Visual Features

Nearby Schools

Nearest Bars And Restaurants

,,,,}

Nearest General Shops

,,}

Nearest Grocery shops

,,}

Nearest Supermarkets

,,}

Nearest Religious buildings

,,}

Nearest Medical buildings

,,,}

Nearest Leisure Facilities

,,,,}

Nearest Tourist attractions

,,}

Nearest Train stations

,,,,}

Nearest Bus stations and stops

,,,,}

Nearest Hotels

,,}

Tags

Local Market Stats

Similar Properties

Meta

High Res Images

Compatible Images

Low res Images

Thumbnails

Raw Images

High Res Floorplan Images

Compatible Floorplan Images

Low res Floorplan Images

FloorplanImages Thumbnail

Raw Floorplan Images