Stately 17th-century farmhouse with ten acres and full equestrian facilities..
- Circa 1600 period farmhouse, detached stone construction
- Approximately ten acres of surrounding land, huge plot size
- Substantial barn with lighting, water, electricity, roller door
- Five/six stables, arena, round pen and turnout sand area
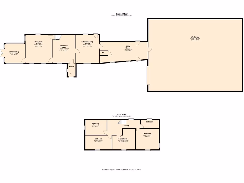
- Very large interior (approx. 5,100 sq ft), three reception rooms
- Single family bathroom for four double bedrooms
- LPG boiler heating; property not on mains gas
- Very slow broadband; original stone walls assumed uninsulated
A rare, historic farmhouse dating from circa 1600 set on approximately ten acres, Meadow Head Farm combines substantial living space with genuine equestrian potential. The detached stone property extends to around 5,100 sq ft and offers three reception rooms, a conservatory and a large kitchen with Aga — plenty of room for a growing family or an equestrian household.
Outside, the site is a standout: a large, lit industrial-style barn with water and electricity and a double electric roller door, five/six stables with mezzanine, turnout sand area, round pen and a riding arena. The grounds include an enclosed lawn, professionally constructed dog kennel area and wide open-aspect countryside views — ideal for horse owners or those wanting private outdoor space.
Practical points to note: the home is heated by an LPG boiler with radiators (not on a mains gas network), and the walls are original stone with no known insulation (assumed). Broadband speeds are very slow despite excellent mobile signal. The house has one family bathroom serving four double bedrooms, and the EPC is D. These factors and the property's age mean ongoing maintenance and some upgrading may be required.
The property is freehold, set in a peaceful semi-rural position yet within reach of the M65 and nearby towns for commuting. With large plot size, multiple outbuildings and adaptable internal space, this is a strong proposition for equestrian buyers, families seeking acreage, or purchasers wanting a characterful rural base with scope for sympathetic improvement.
Equestrian facility for sale in Alma Place, Accrington, BB5 — £389,000 • 3 bed • 2 bath • 1539 ft²
Equestrian facility for sale in Hargreaves Fold Lane, Rossendale, BB4 — £725,000 • 4 bed • 2 bath • 2650 ft²
4 bedroom manor house for sale in Roman Road, Eccleshill, Darwen, BB3 — £600,000 • 4 bed • 2 bath • 1991 ft²
Equestrian facility for sale in Hargreaves Fold Lane, Rossendale, BB4 — £900,000 • 4 bed • 2 bath • 2650 ft²
5 bedroom farm house for sale in Ramsclough Lane, Oswaldtwistle, BB5 — £750,000 • 5 bed • 3 bath • 3076 ft²
5 bedroom semi-detached house for sale in Edgworth Moor Farm, Broadhead Road, BL7 – 5 Acres, Stables & Breathtaking Views, BL7 — £850,000 • 5 bed • 2 bath • 3115 ft²






































































































































































































