Spacious period home with major renovation potential near Willesden Junction.
["Approximately 1,893 sq ft over three floors","Four well‑proportioned bedrooms with period fireplaces","Private rear garden, small urban plot","Retains high ceilings, sash windows and decorative joinery","Needs full renovation; modernisation required throughout","Solid brick walls likely without cavity insulation","Area records high crime and very high deprivation","Council tax band described as expensive"]
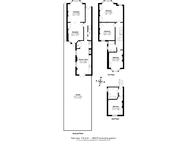
This substantial Victorian semi‑detached townhouse offers 1,893 sq ft across three floors with original period features and high ceilings. The house is freehold and sits on a small private garden, providing valuable outdoor space in an inner‑city setting. Good transport links put Willesden Junction and central London within easy reach, making the location practical for commuters and families.
The property is being sold in need of renovation, presenting clear scope to reconfigure reception space, update services and add contemporary fittings while retaining decorative fireplaces and sash windows. Solid brick walls likely lack modern cavity insulation; buyers should factor in thermal upgrades and potential planning for extensions or re‑modelling.
Buyers should note material drawbacks: the house requires refurbishment throughout, council tax is described as expensive, and the area records high crime with very high deprivation metrics. These factors will affect renovation costs, insurance and long‑term running expenses but also create opportunity to add value for owner‑occupiers or investors prepared to manage works and local issues.
For a family seeking character and space to personalise near good schools, or an investor targeting uplift through renovation, this property represents a chance to create a comfortable long‑term home. Viewings are recommended for those comfortable assessing renovation scope, costs and local context.
4 bedroom house for sale in Harlesden Gardens, London, NW10 — £875,000 • 4 bed • 2 bath • 2277 ft²
3 bedroom terraced house for sale in Wendover Road, London, NW10 — £699,000 • 3 bed • 2 bath • 1217 ft²
3 bedroom terraced house for sale in Burns Road, London, NW10 — £650,000 • 3 bed • 1 bath • 1305 ft²
4 bedroom semi-detached house for sale in Harlesden Road, London, NW10 — £875,000 • 4 bed • 2 bath • 1804 ft²
3 bedroom house for sale in High Street, Harlesden, London, NW10 — £740,000 • 3 bed • 1 bath • 1398 ft²
3 bedroom terraced house for sale in Minet Gardens, London, NW10 — £650,000 • 3 bed • 1 bath • 1344 ft²


















































