Generous rooms and garden waiting for a thoughtful refurbishment.
Chain free freehold end-terrace Victorian house
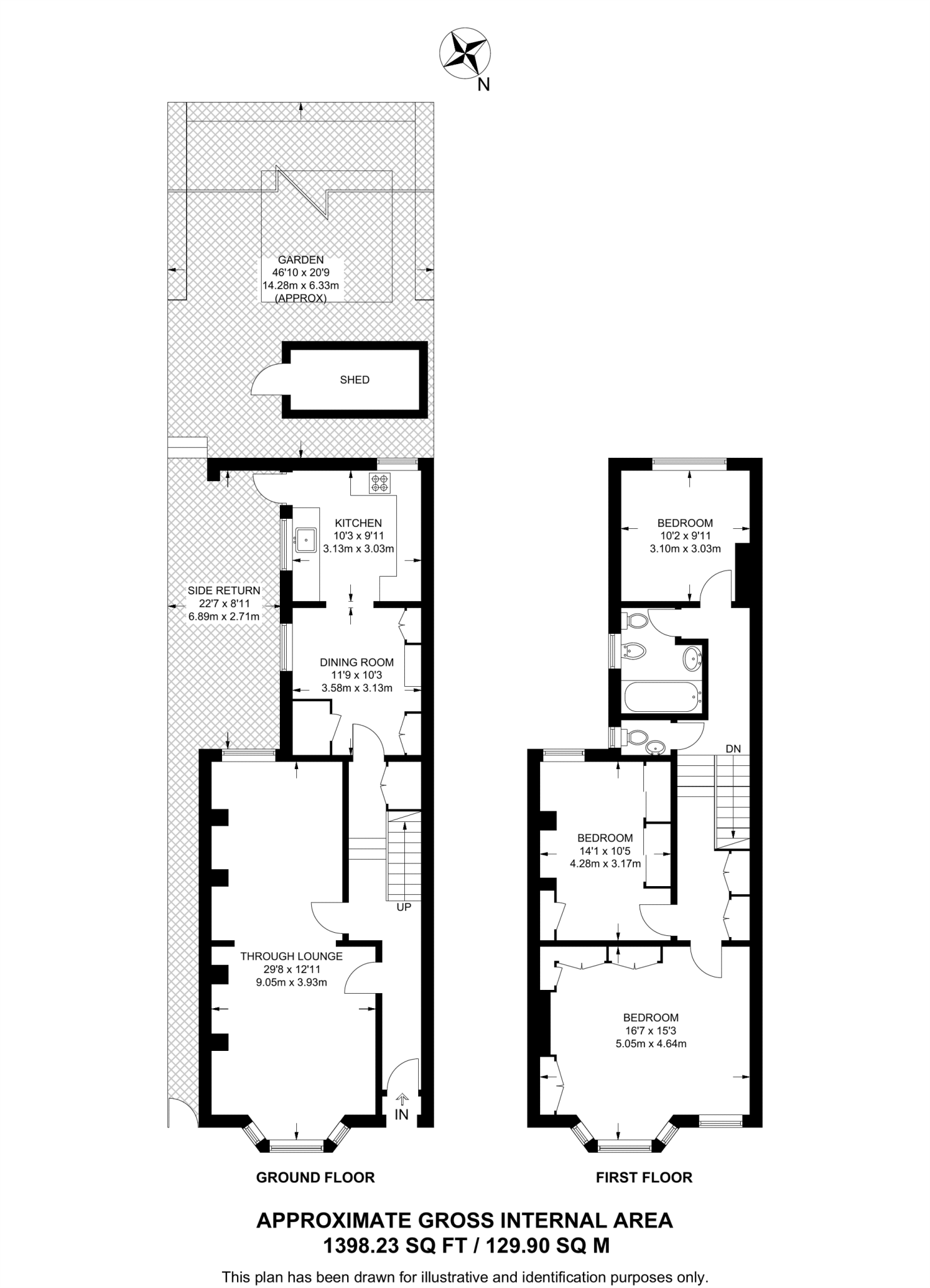
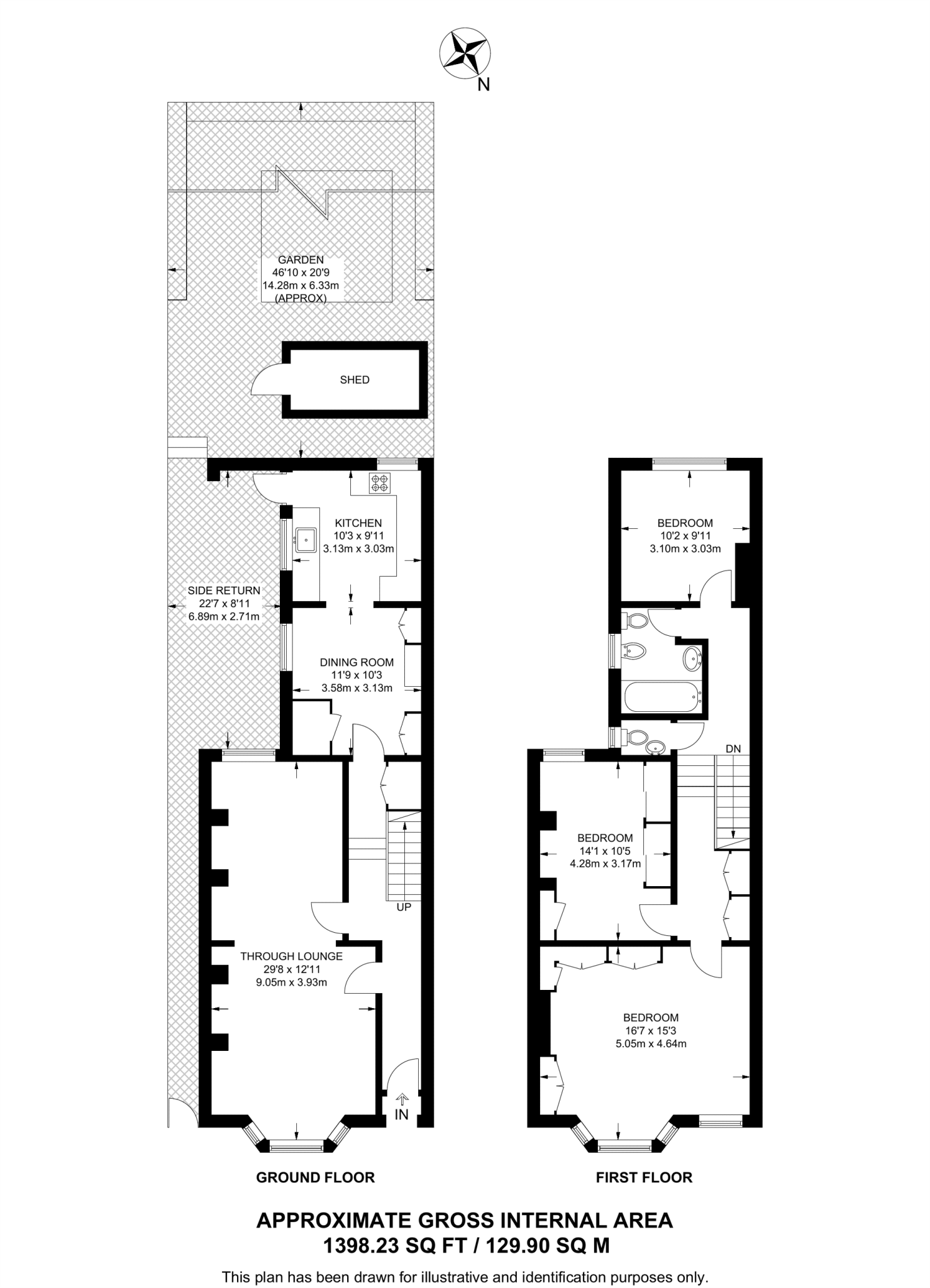
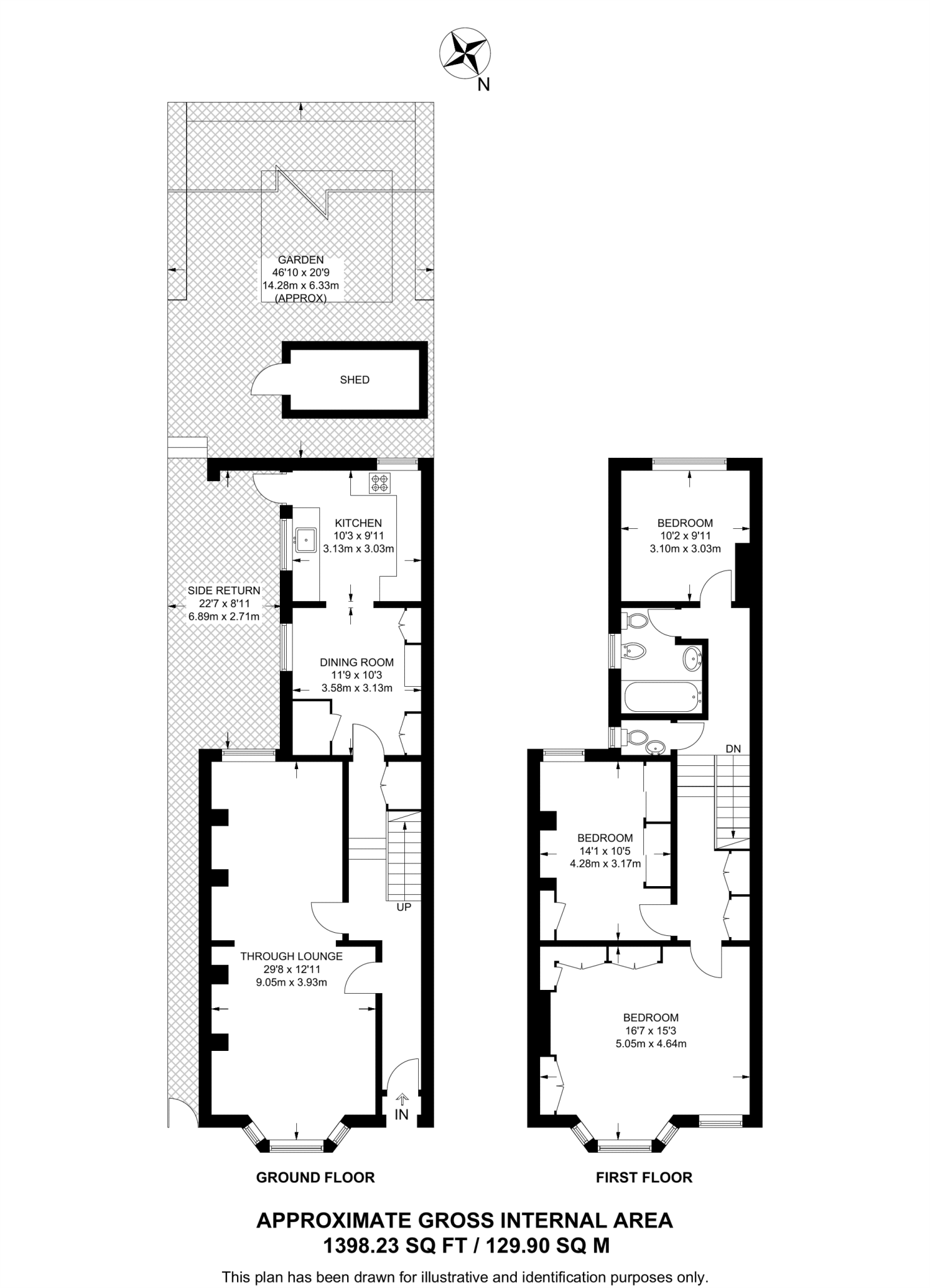
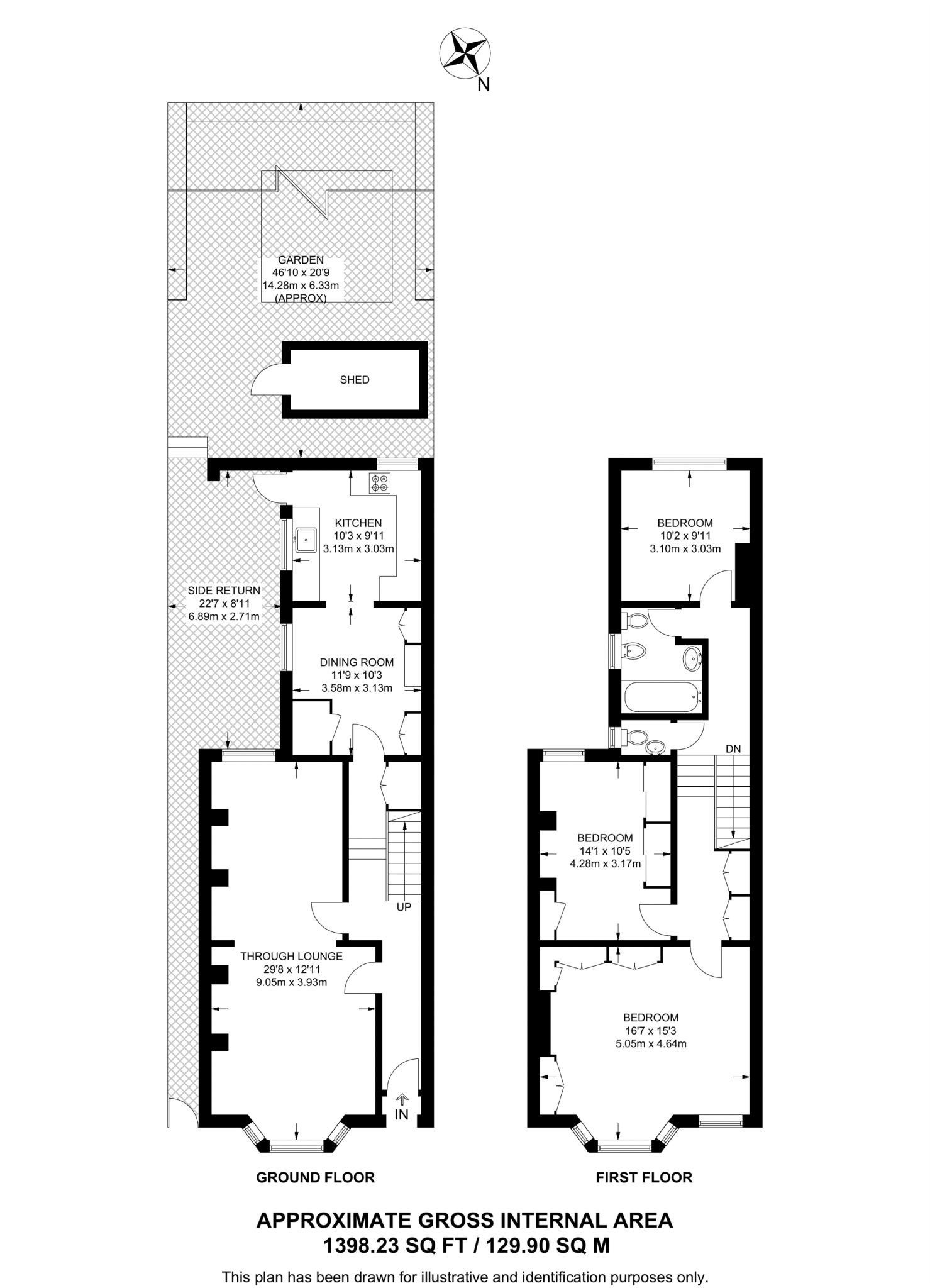
A spacious Victorian end-of-terrace with clear renovation potential, offered chain free on a freehold title. The property spans approximately 1,398 sq ft across generous rooms including a double reception, separate dining/kitchen and three double bedrooms — the principal bedroom features a bay window and period detail.
Highlights include a south-facing rear garden and an additional roof terrace, plus good connectivity (Willesden Junction nearby), fast broadband and excellent mobile signal. The house retains many original features such as high ceilings, cornicing and a ceiling rose which could be refreshed to strong effect.
Practical realities are straightforward: the house needs renovation and shows signs of damp/mould in the living room area. The solid brick walls are likely uninsulated and there is a single bathroom, so budget for fabric, heating/insulation upgrades and moisture remediation. The area has above-average crime and significant local deprivation, which should be weighed against low-entry price and potential uplift after works.
This home suits a buyer prepared to invest time and money to modernise — ideal as a first purchase to add value, or a refurbishment project for resale or rental. Local schools rated Good and nearby shops, pubs and transport links add convenience once improvements are complete.
4 bedroom end of terrace house for sale in High Street, Harlesden, London, NW10 — £995,000 • 4 bed • 2 bath • 1859 ft²
3 bedroom terraced house for sale in Minet Gardens, London, NW10 — £650,000 • 3 bed • 1 bath • 1344 ft²
3 bedroom terraced house for sale in Wendover Road, London, NW10 — £699,000 • 3 bed • 2 bath • 1217 ft²
3 bedroom terraced house for sale in Harlesden Gardens, Willesden Green, NW10 — £725,000 • 3 bed • 1 bath • 1109 ft²
3 bedroom terraced house for sale in Hazeldean Road, Harlesden, London, NW10 — £600,000 • 3 bed • 1 bath • 905 ft²
5 bedroom house for sale in Chandos Road, London, NW2 — £1,100,000 • 5 bed • 5 bath • 1648 ft²










































































































































































































































