Chain-free first-floor flat with parking, near Oxford station and amenities.
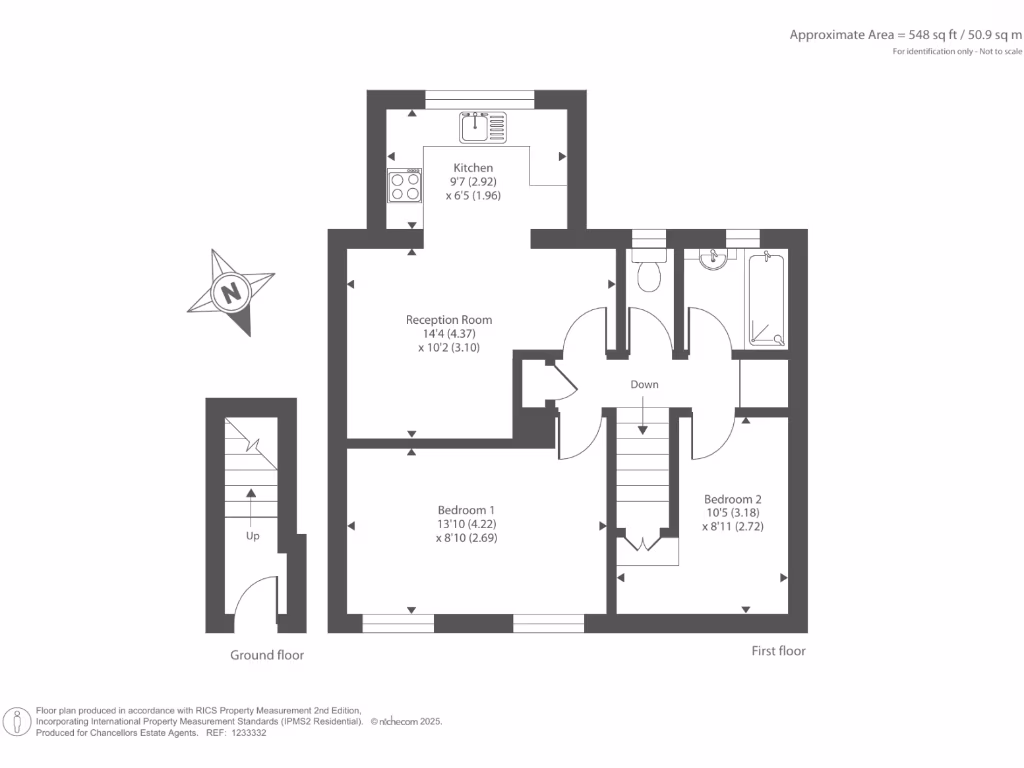
Two bedrooms in a compact 548 sq ft layout
This first-floor two-bedroom maisonette offers about 550 sq ft of well-laid-out living space ideal for a first-time buyer or professional seeking a compact, low-maintenance home. The L-shaped reception flows into an open-plan fitted kitchen with integrated appliances, creating a bright living area for everyday use and entertaining. A private off-street parking space and gas central heating add practical convenience.
The property is offered chain free with a share of freehold, so moving can be straightforward. Transport connections are strong: Oxford station is around a mile away, the A34 provides quick access to the M4/M40, and local buses and Park & Ride are nearby. The neighbourhood is affluent and quiet, with good local shops and a mix of state and independent schools within easy reach.
There are some practical considerations: the building dates from the 1950s–60s and walls are assumed to be solid brick with no insulation, so heating costs and future refurbishment needs should be factored in. The glazing is secondary—useful for noise but not the same as full double glazing—and the flat is small, so storage is limited. Overall, the property offers a secure, move-in-ready base with scope for cosmetic updating and energy-efficiency improvements over time.
1 bedroom flat for sale in Botley, Oxford, OX2 — £210,000 • 1 bed • 1 bath • 336 ft²
2 bedroom flat for sale in Botley, Oxford, OX2 — £325,000 • 2 bed • 1 bath • 519 ft²
2 bedroom flat for sale in Botley, Oxford, OX2 — £375,000 • 2 bed • 2 bath • 650 ft²
2 bedroom flat for sale in Botley, Oxford, OX2 — £330,000 • 2 bed • 2 bath • 732 ft²
2 bedroom flat for sale in Botley, Oxford, OX2 — £260,000 • 2 bed • 1 bath • 533 ft²
2 bedroom flat for sale in Headington, Oxford, OX3 — £260,000 • 2 bed • 2 bath • 791 ft²














































