Bespoke high‑spec new build opportunity close to countryside and transport.
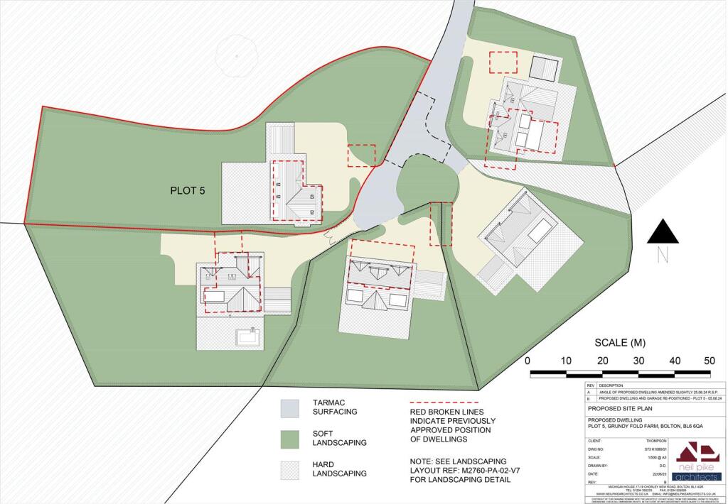
Approximately 0.8 acre private plot within small, exclusive enclave
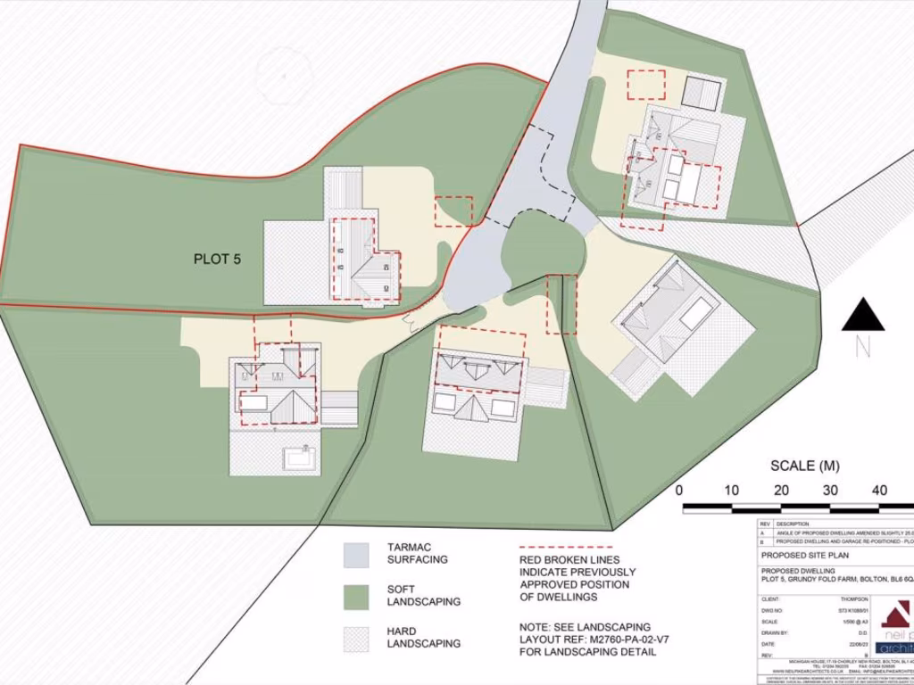
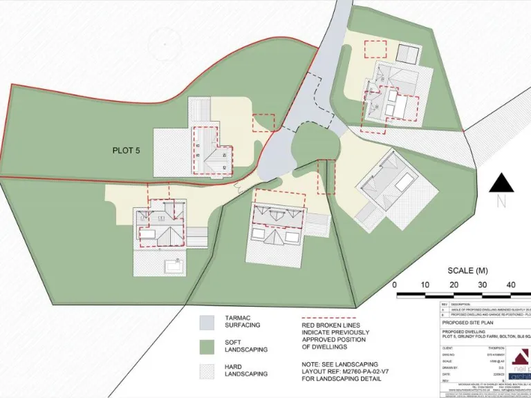
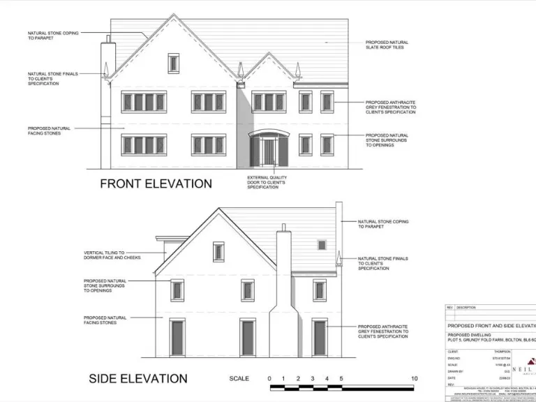
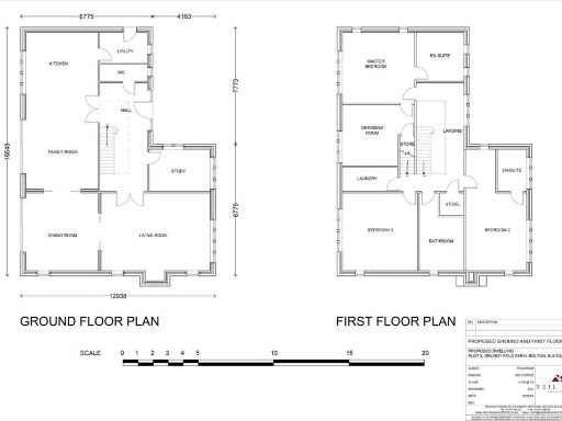
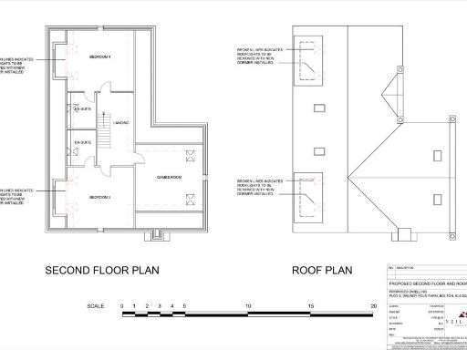
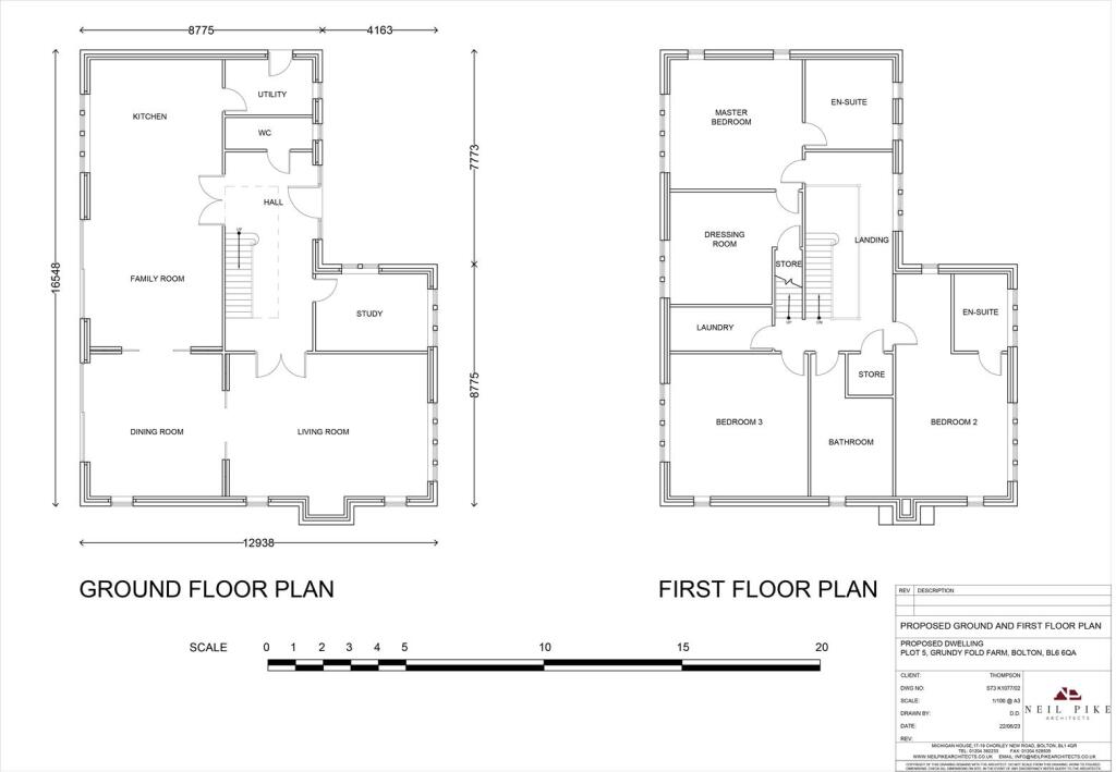
An exceptional executive plot in Grundy Fold offering approximately 0.8 acres and a planning scheme for a substantial new-build home. The approved layout provides around 4,780 sq ft of accommodation: five bedrooms, five bathrooms and four reception rooms, with internal plans flexible to create up to seven bedrooms if required. The site sits in a small, high-quality enclave on the edge of open countryside while remaining within easy reach of Bolton and regional transport links.
This opportunity suits a buyer who wants a bespoke, energy-efficient home: the proposals use modern construction methods designed for a low carbon footprint. Local schools include highly regarded independent options and good state primaries, making the site attractive to families seeking long-term comfort and space. The plot is freehold and the developer’s estimated build cost is around £900,000–£1,000,000.
Important practical points are stated plainly: the purchase is for the plot and any build will be a significant additional cost and project to manage. Broadband speeds are reported as very slow on the site, which may affect home-working without investment in alternative connectivity. Further land (around five acres) may be available separately by negotiation.
This is a rare chance to commission a substantial bespoke home in a private, landscaped setting. Early enquiries are recommended for buyers prepared to oversee a new-build project and absorb the associated construction costs and timelines.
Land for sale in BUILDING PLOT FOR SALE, Ellerslie, Bury Fold Lane, Darwen, BB3 — £1,200,000 • 1 bed • 1 bath • 24000 ft²
Detached house for sale in Knowsley Fold, Heaton, BL1 5DQ, BL1 — £1,300,000 • 1 bed • 1 bath • 8500 ft²
Land for sale in Chorley Old Road, Horwich, BL6 6QB, BL6 — £350,000 • 1 bed • 1 bath • 3210 ft²
Property for sale in Bradshaw Road, Bolton, Greater Manchester, BL2 4JP, BL2 — £4,000,000 • 1 bed • 1 bath
Plot for sale in Trigg Road, Heapey, Chorley, Lancashire, PR6 — £1,400,000 • 1 bed • 1 bath • 2627 ft²
Plot for sale in Town Lane, Whittle-le-Woods, Chorley, Lancashire, PR6 — £750,000 • 1 bed • 1 bath • 7800 ft²






























