**Standout Features:**
- **Prime Location:** 1.3-acre plot in Whittle-le-Woods, close to amenities and transport links.
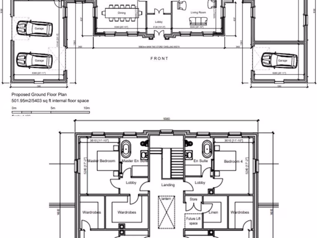
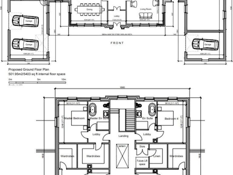
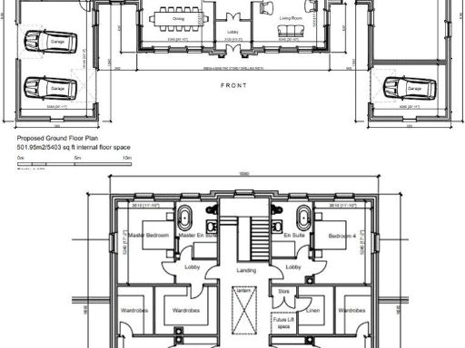
- **Detailed Planning Consent:** Approval for a stunning 7,800 sq ft home designed by renowned architect Quinlan Terry.
- **Spacious Design:** Classic architecture with a contemporary layout featuring four ensuite bedrooms, multiple reception rooms, and living kitchen.
- **Additional Land Available:** Option to acquire an additional 2.3 acres (0.97 ha).
- **Great Connectivity:** Easy access to M61, M65, M6, and A6, with fast routes to cities like Liverpool and Manchester.
- **Excellent Mobile and Broadband Speed:** Ensures modern living convenience.
**Summary:**
This expansive 1.3-acre building plot in prestigious Whittle-le-Woods presents an exceptional opportunity for creating your dream home. With planning consent secured for a lavish 7,800 sq ft residence crafted by celebrated architect Quinlan Terry, you'll enjoy a perfect blend of classic elegance and modern functionality. The potential home includes luxurious features like four ensuite bedrooms, generous living spaces, and an ideal layout for family comfort. Nestled in a serene locale surrounded by lush greenery and delightful walking paths, this plot is not just about living—it's about enhancing your lifestyle.
While the property benefits from a peaceful rural setting, it also provides excellent connectivity to major motorways, ensuring that urban amenities are a quick drive away. The vendor offers additional land, which if desired, can further expand your vision. Given the unique characteristics and expansive potential of this plot, seize the chance to craft a personalized sanctuary in a compelling location—perfect for families or investors looking for that rare gem!
Land for sale in Langdale Grove, PR6 — £109,995 • 1 bed • 1 bath
Land for sale in Falcon Court, Chain House Lane, PR4 — £300,000 • 1 bed • 1 bath • 3700 ft²
Plot for sale in The Vineyard, Walton-le-Dale, Preston, PR5 — £249,950 • 1 bed • 1 bath
Land for sale in Falcon Court, Chain House Lane, PR4 — £230,000 • 1 bed • 1 bath • 3550 ft²
Land for sale in Preston Road, PR7 — £120,000 • 1 bed • 1 bath • 4198 ft²
4 bedroom detached house for sale in Plot 1 Whittingham Lane, Preston, PR3 2JJ, PR3 — £300,000 • 4 bed • 1 bath










































