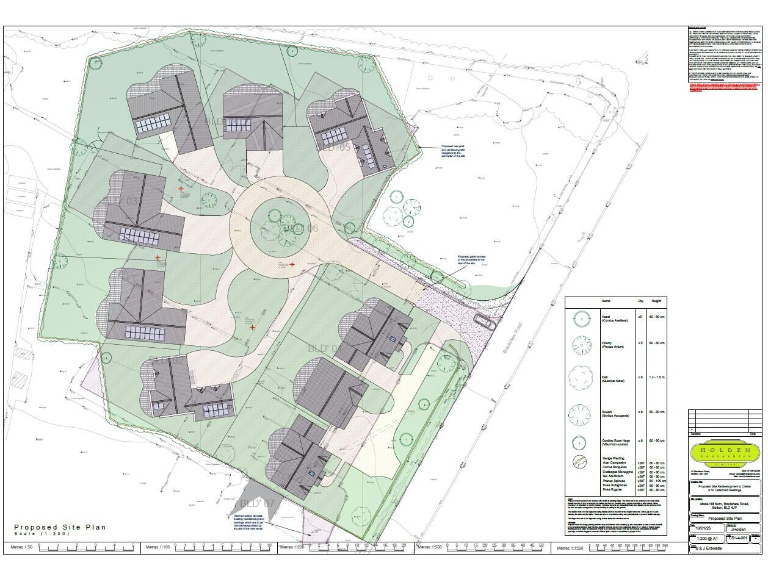
Nine detached luxury homes consented in a tranquil semi‑rural setting with long-range views.
Outline planning for nine detached homes ~4,500 sq ft each (Ref 19656/25)
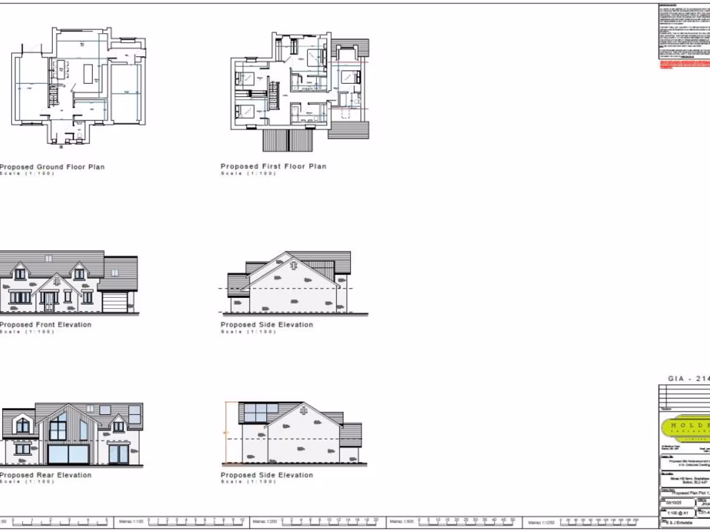
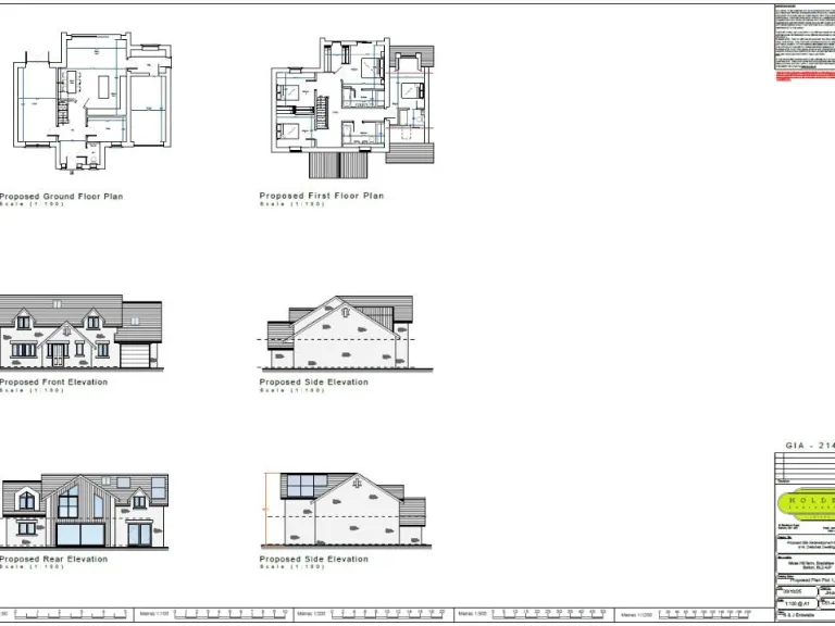
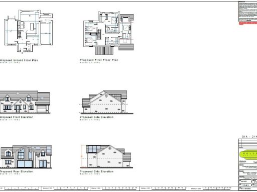
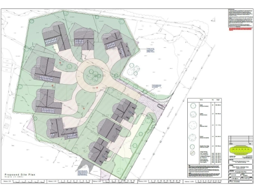
This is a substantial development parcel on Bradshaw Road with outline consent for nine detached luxury homes, each circa 4,500 sq ft. The site combines a large, semi-rural plot with long-range wooded and countryside views, existing agricultural outbuildings and hardstanding that will assist initial site operations. Good road links (including proximity to the M61) and nearby schools make the location attractive for buyer-focused family homes or a high-end gated development.
Outline planning (Ref. No: 19656/25) has been granted, reducing early planning risk, but approvals are outline only. Detailed design, reserved matters, and full services connections will be required. The parcel contains existing agricultural and commercial structures that will need demolition, refurbishment or reuse depending on the scheme — these provide flexibility but also add cost and programme time.
Practical considerations: mobile signal is excellent but broadband is very slow, and tenure details are not provided. The site suits experienced residential developers or investor-developers able to manage infrastructure, planning progression and rural site build logistics. The scale and setting create a rare opportunity to deliver high‑value homes in a wealthy, semi-rural catchment.
Plot for sale in Trigg Road, Heapey, Chorley, Lancashire, PR6 — £1,400,000 • 1 bed • 1 bath • 2627 ft²
Land for sale in Spout Fold Farm, Over Hulton, Bolton, BL5 , BL5 — £450,000 • 1 bed • 1 bath
Land for sale in BUILDING PLOT FOR SALE, Ellerslie, Bury Fold Lane, Darwen, BB3 — £1,200,000 • 1 bed • 1 bath • 24000 ft²
Land for sale in Trigg Road, Heapey, Chorley, Lancashire, PR6 — £350,000 • 4 bed • 1 bath • 2176 ft²
Land for sale in Shady Lane, Bromley Cross, Bolton, Greater Manchester, BL7 9AF, BL7 — £375,000 • 1 bed • 1 bath • 3500 ft²
Land for sale in Trigg Road, Heapey, Chorley, Lancashire, PR6 — £350,000 • 4 bed • 1 bath • 2627 ft²


















































