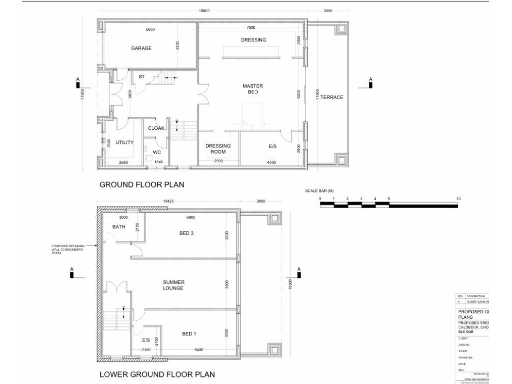
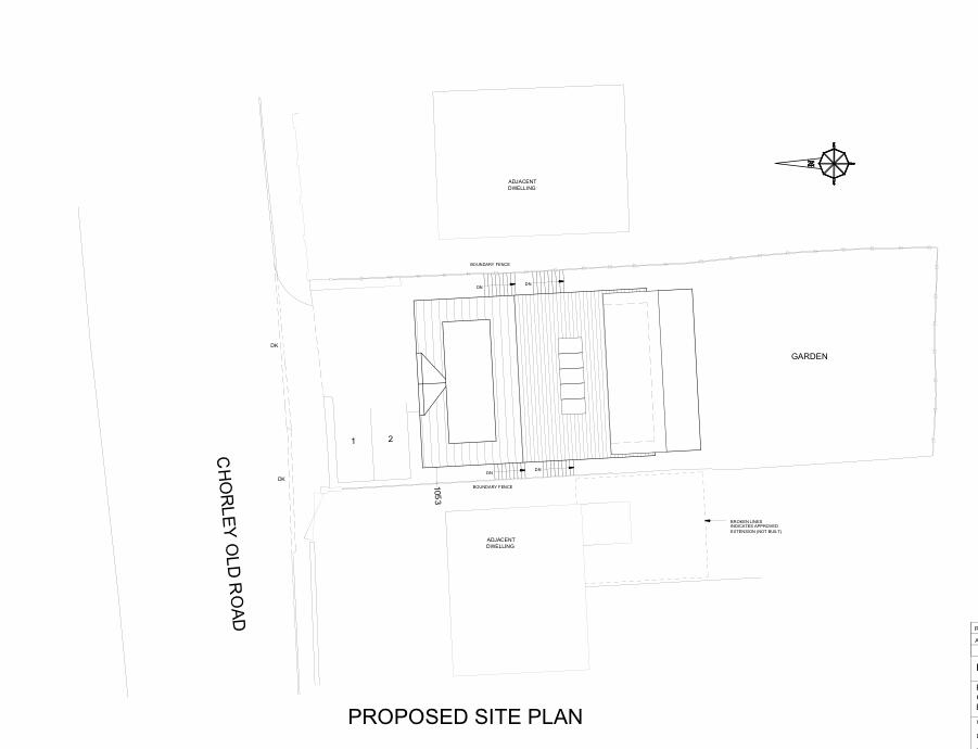
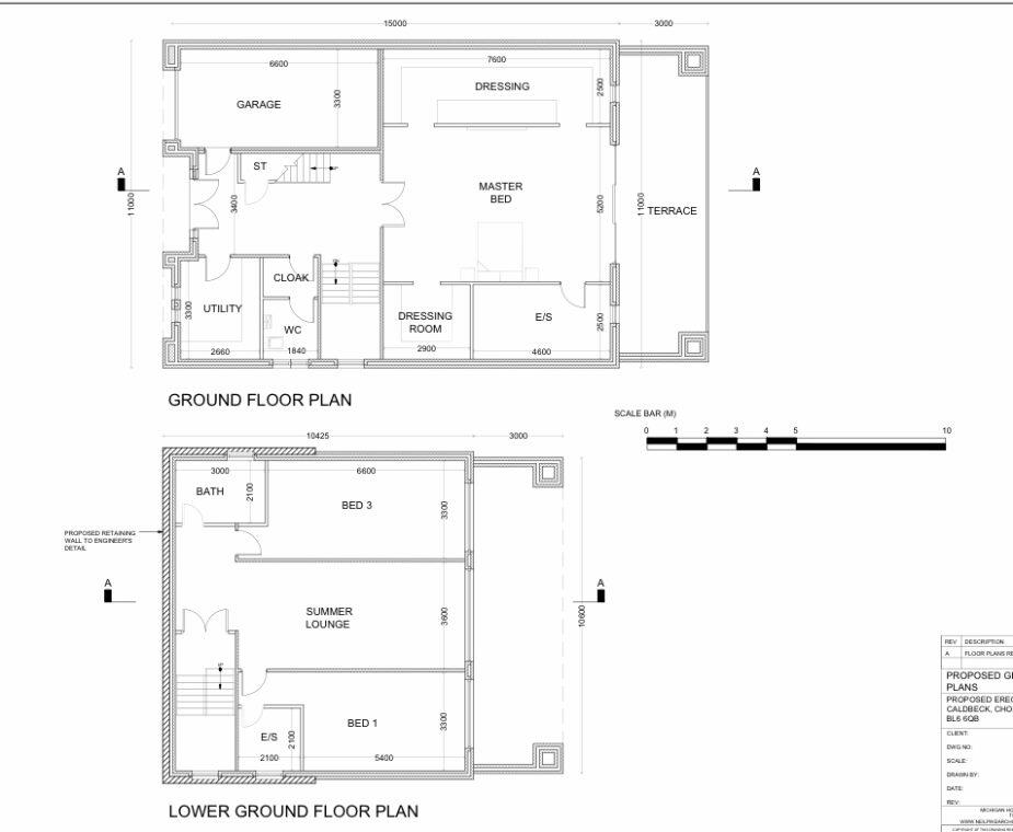
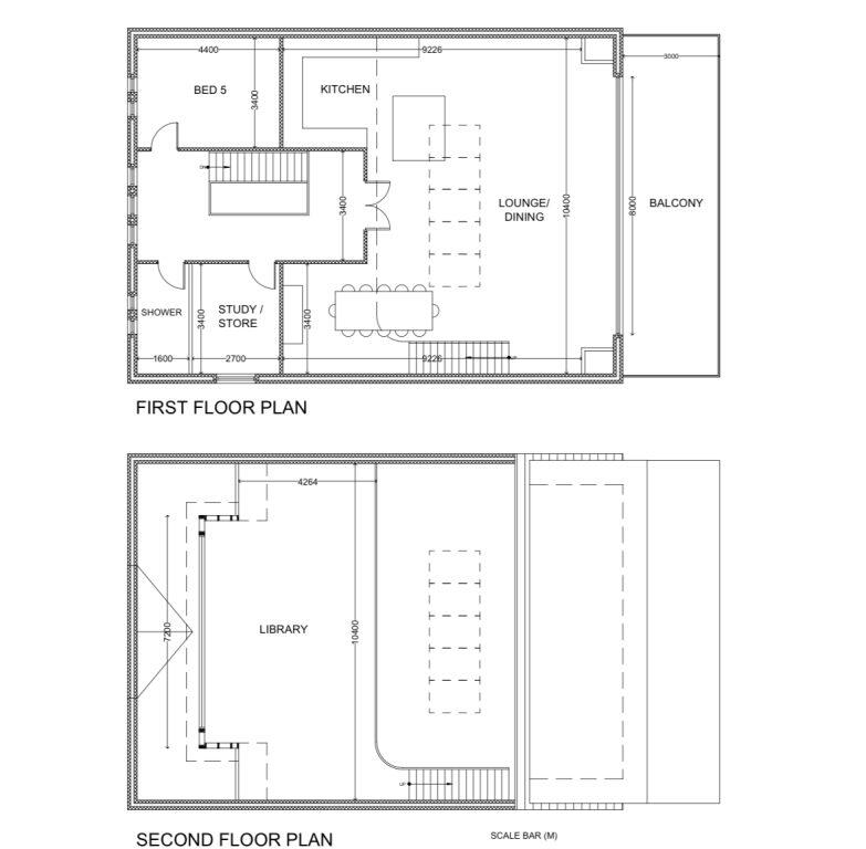
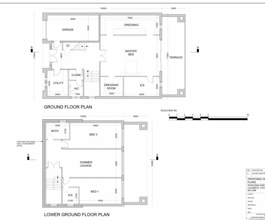
**Property Highlights:**
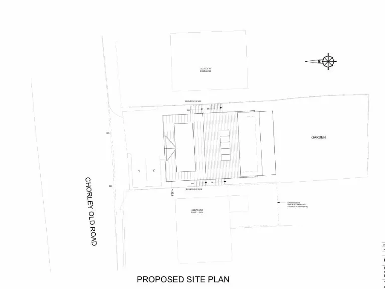
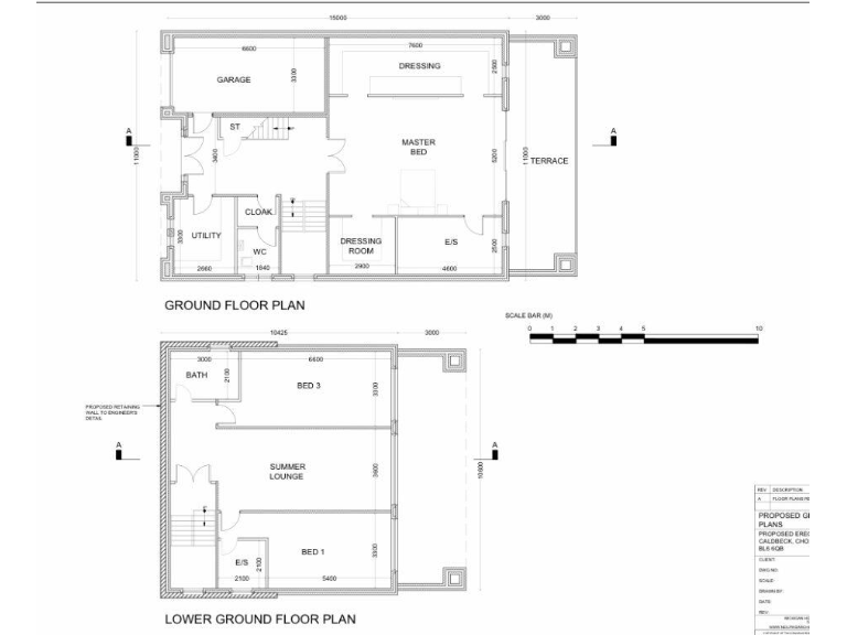
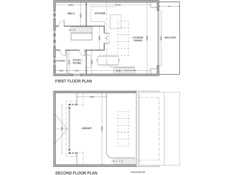
- Expansive land plot of 3,210 sqft with planning permission (Bolton Council application number: 17816/24)
- Located in the affluent community of Horwich, with picturesque countryside views
- Freehold tenure, offering you complete ownership
- Excellent mobile signal, very low crime rate, and low risk of flooding
- Well-connected commuting options: 3 miles to Bolton Town Centre and 1.5 miles to train stations
- Close proximity to respected schools, including Bolton School and several well-rated secondary options
- Local amenities such as bus stops, pubs, and surrounding woodlands for enjoyment
Seize the opportunity to create your dream home on this outstanding plot in the highly desirable rural setting of Horwich. With planning permission already in place, you can design an exquisite contemporary residence that complements your lifestyle while enjoying serene countryside views. This very low-risk flood area ensures peace of mind, while the excellent mobile signal and easy access to urban amenities provide convenience. Nestled within a community known for its affluent living, your future home is just a short drive from Bolton Town Centre and under 30 minutes from Manchester Piccadilly by train. Don’t miss your chance—these unique properties seldom become available. Start envisioning your ideal family haven today!
Plot for sale in Grundy Fold, Horwich, Bolton, BL6 — £650,000 • 1 bed • 1 bath • 4780 ft²
Land for sale in Shady Lane, Bromley Cross, Bolton, Greater Manchester, BL7 9AF, BL7 — £375,000 • 1 bed • 1 bath • 3500 ft²
Land for sale in Dentdale Close, Lostock, Bolton, BL1 — £900,000 • 1 bed • 1 bath • 3000 ft²
Land for sale in Melrose Way, Chorley, Lancashire, PR7 — £75,000 • 1 bed • 1 bath • 520 ft²
Land for sale in Land on Crompton Way, Bolton, BL1 — £100,000 • 1 bed • 1 bath
Plot for sale in Trigg Road, Heapey, Chorley, Lancashire, PR6 — £1,400,000 • 1 bed • 1 bath • 2627 ft²






















































