**Standout Features:**
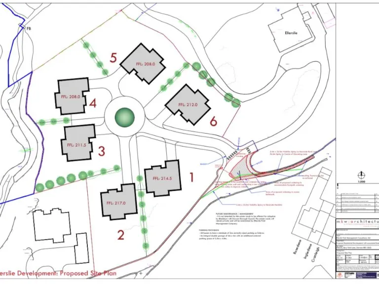
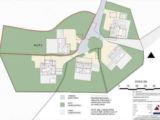
- Building plot with full planning permission for six luxury detached homes (4,000 sqft each)
- Expansive 2.3-acre plot surrounded by beautiful woodland and countryside
- Secluded yet accessible location near Darwen, Bolton, and Blackburn
- Proximity to local amenities including schools, supermarkets, and leisure facilities
- Potential inclusion of nearby Ellerslie Manor House and additional lapsed building plots
This exceptional investment opportunity presents a rare chance to develop six luxury detached homes, each featuring generous 4,000 sqft layouts. Nestled in a tranquil, secluded location surrounded by picturesque woodland and sweeping countryside, this sizeable 2.3-acre plot is ideally situated on the edge of the scenic West Pennine Moors. With full planning permission already in place, the prospect for further expansion and development is excellent.
Although currently a serene retreat, this plot benefits from easy access to the vibrant amenities of Darwen and nearby towns, making it desirable for both families and future homeowners seeking a balance of rural comfort and urban convenience. Local schools, shopping outlets, and transport links are all within a short drive, ensuring that residents enjoy both accessibility and a community-oriented lifestyle.
Please note that while the area is generally affluent and devoid of significant crime concerns, potential buyers should consider the overall building and planning landscape as they proceed. With interest in well-located developments at an all-time high, this opportunity may not last long—explore the future potential of this stunning plot today!
Land for sale in The Centurion, Higher Croft Road, Darwen, Lancashire, BB3 — £500,000 • 1 bed • 1 bath
4 bedroom detached house for sale in Clayton Avenue, Rossendale, BB4 — £800,000 • 4 bed • 2 bath
Land for sale in Bog Height Road, Darwen, Lancashire, BB3 — £200,000 • 1 bed • 1 bath
Plot for sale in Town Lane, Whittle-le-Woods, Chorley, Lancashire, PR6 — £750,000 • 1 bed • 1 bath • 7800 ft²
Plot for sale in Grundy Fold, Horwich, Bolton, BL6 — £650,000 • 1 bed • 1 bath • 4780 ft²
Plot for sale in Trigg Road, Heapey, Chorley, Lancashire, PR6 — £1,400,000 • 1 bed • 1 bath • 2627 ft²


























































