Large split-level layout with private garden and strong transport links.
Four double bedrooms including principal suite with en suite
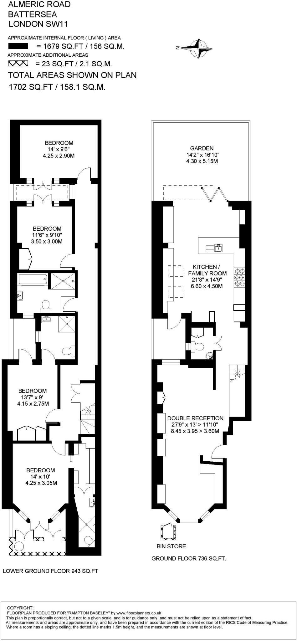
Set across the ground and lower-ground floors of a converted Victorian terrace, this spacious four-bedroom apartment offers generous family living with period character and modernised conveniences. The front double reception retains high ceilings, a large bay window and an original fireplace, creating an elegant entertaining space, while the rear has been opened up to form a contemporary kitchen/family room with granite worktops, integrated appliances and bi-fold doors that link directly to the private garden.
The principal suite on the lower ground floor includes a walk-through dressing area and en suite shower room, with three further double bedrooms and a family bathroom also arranged on this level. Lightwells and French doors bring daylight into the lower-ground accommodation, and the flat benefits from double glazing and a mains gas boiler with underfloor heating for comfortable year-round temperatures.
Practical points to note: the property is leasehold with about 148 years remaining and a below-average service charge of £550. The building is Victorian solid-brick construction and likely has limited wall insulation, so consider potential energy-efficiency improvements. Crime levels in the immediate area are recorded as very high, which may influence security and insurance considerations.
Well placed for families, the flat is a short walk from Northcote Road’s shops, cafes and schools, and around five minutes from Clapham Junction station. The layout and size (approximately 1,679 sq ft) make this a comfortable long-term home or a rental investment in an affluent, highly qualified inner-city neighbourhood, subject to leasehold ownership and local area considerations.
3 bedroom apartment for sale in Almeric Road, SW11 — £1,300,000 • 3 bed • 3 bath • 1300 ft²
2 bedroom apartment for sale in Auckland Road, SW11 — £750,000 • 2 bed • 1 bath • 722 ft²
3 bedroom flat for sale in Auckland Road, London, SW11 — £825,000 • 3 bed • 1 bath • 834 ft²
4 bedroom terraced house for sale in Mallinson Road, SW11 — £1,695,000 • 4 bed • 3 bath • 1740 ft²
4 bedroom terraced house for sale in Simpson Street, SW11 — £1,100,000 • 4 bed • 2 bath • 1429 ft²
5 bedroom terraced house for sale in Limburg Road, London, SW11 — £1,600,000 • 5 bed • 3 bath • 1788 ft²


































































