Quiet development near Hendon Central and local schools, ideal for families.
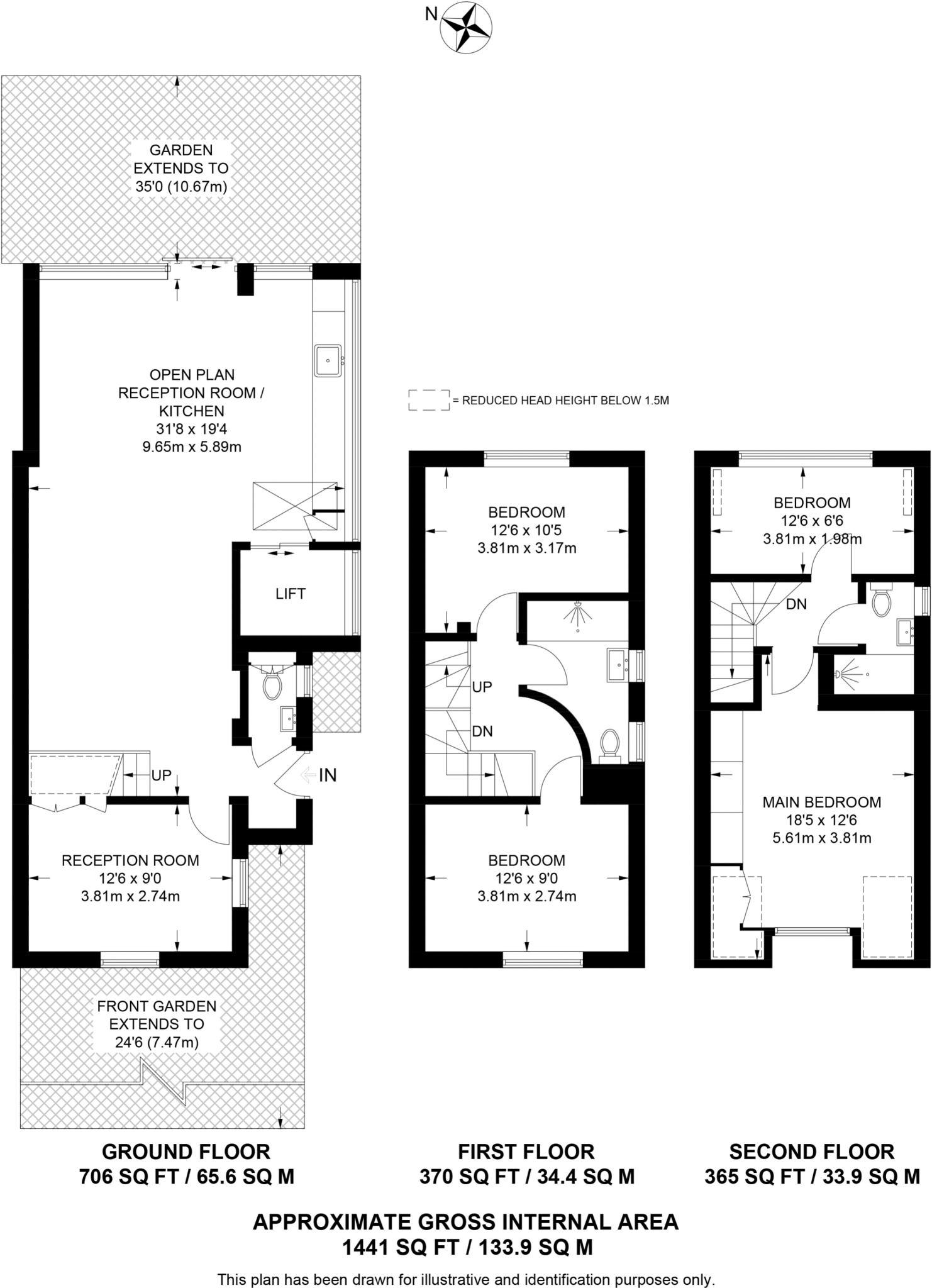
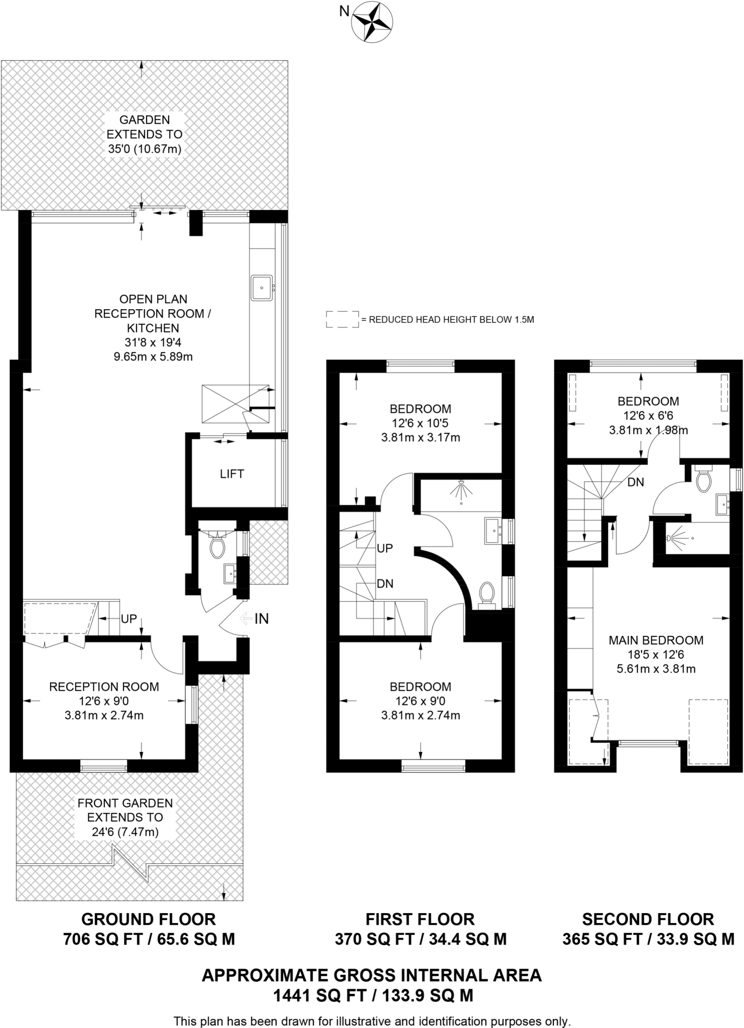
4 bedrooms across three floors, flexible top-floor layout
A well-presented four-bedroom end-of-terrace home arranged across three floors, offering flexible living for families or professionals. The ground floor features a bright open-plan reception and kitchen with patio doors that open onto a private garden, plus a downstairs bedroom/morning room and guest W.C. The first floor has two bedrooms and a stylish bathroom; the top floor provides two further bedrooms (or one bedroom and a study), useful for home working or growing families.
Practical positives include an off-street parking space, freehold tenure, double glazing, and a total floor area of about 1,441 sq ft. The property sits in a quiet development close to Hendon Central Underground and local buses, with Middlesex University and several highly rated primary and secondary schools nearby — strong location features for commuters and families.
Buyers should note the house uses electric storage heaters rather than gas central heating, which can affect running costs. The plot is small and the property is an average-sized family home rather than a large gardened suburban house. Double glazing is present but install date is unknown.
Overall this is a practical, comfortable home with flexible accommodation and decent transport and school links. It will suit buyers seeking a low-maintenance modern period-style house in a well-connected NW4 location, and it has scope for cosmetic updating to personalise the interiors.
4 bedroom house for sale in Florence Street, Hendon, London, NW4 — £750,000 • 4 bed • 3 bath • 1310 ft²
3 bedroom end of terrace house for sale in Sturgess Avenue, Hendon, London, NW4 — £730,000 • 3 bed • 1 bath • 1477 ft²
4 bedroom end of terrace house for sale in Alexandra Road, London, NW4 — £825,000 • 4 bed • 2 bath • 1175 ft²
4 bedroom house for sale in Haslemere Avenue, Hendon, NW4 — £1,395,000 • 4 bed • 2 bath • 1990 ft²
4 bedroom end of terrace house for sale in Brent Park Road, London, NW4 — £675,000 • 4 bed • 3 bath • 1200 ft²
3 bedroom semi-detached house for sale in Heton Gardens, London, NW4 — £699,950 • 3 bed • 2 bath • 1243 ft²


















































































































