Large plot with outbuilding and two-car parking near Brent Cross.
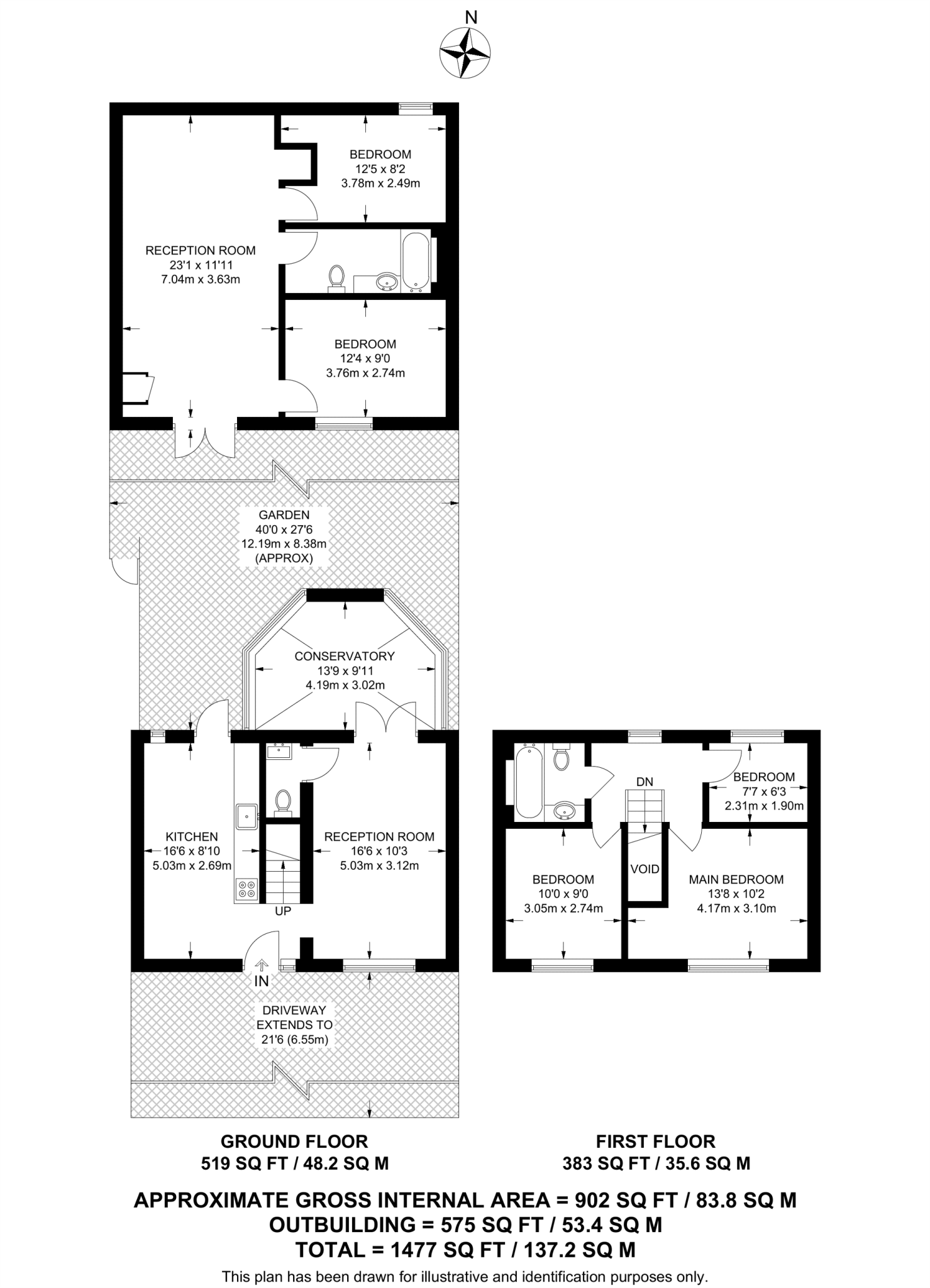
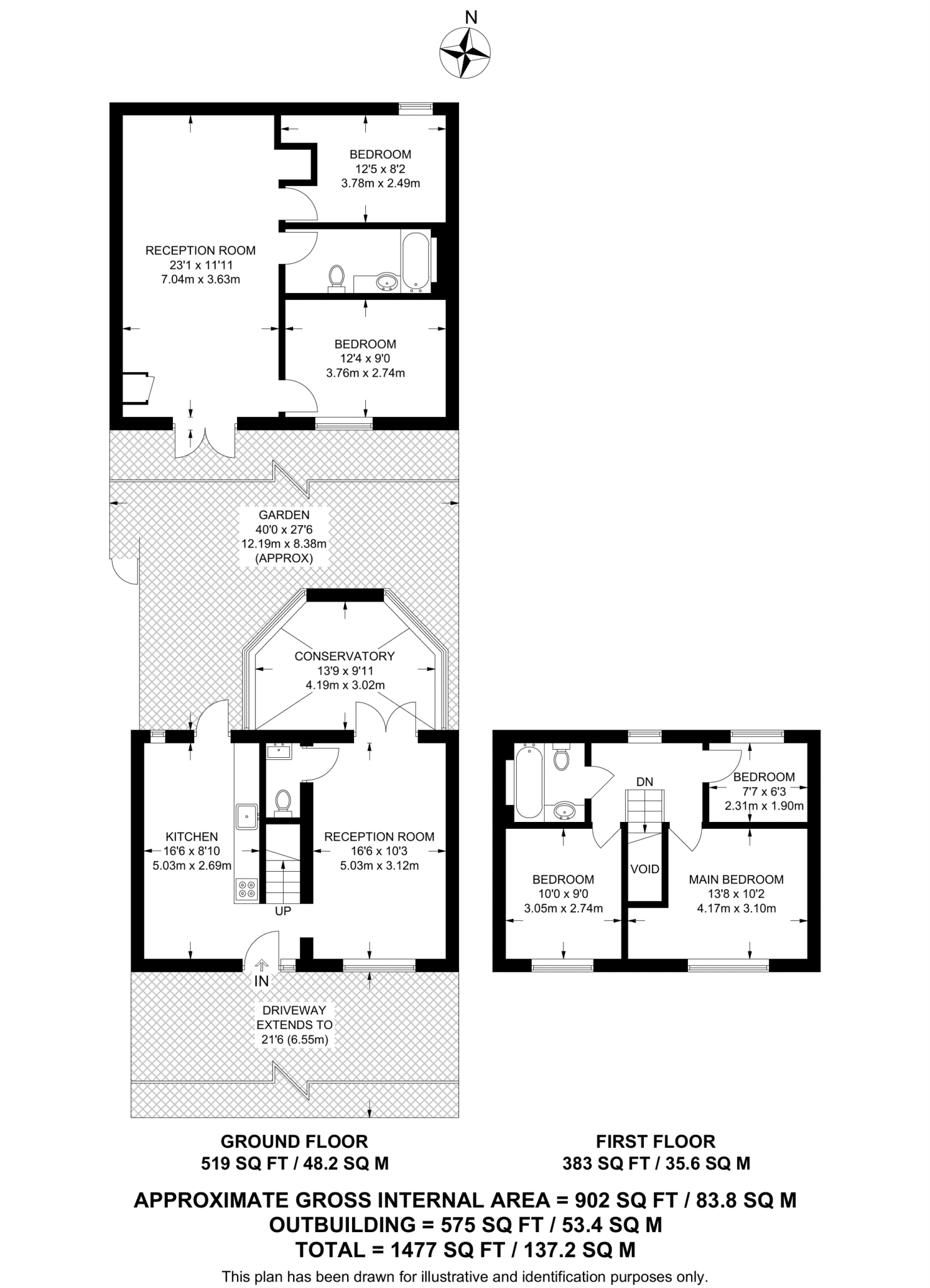
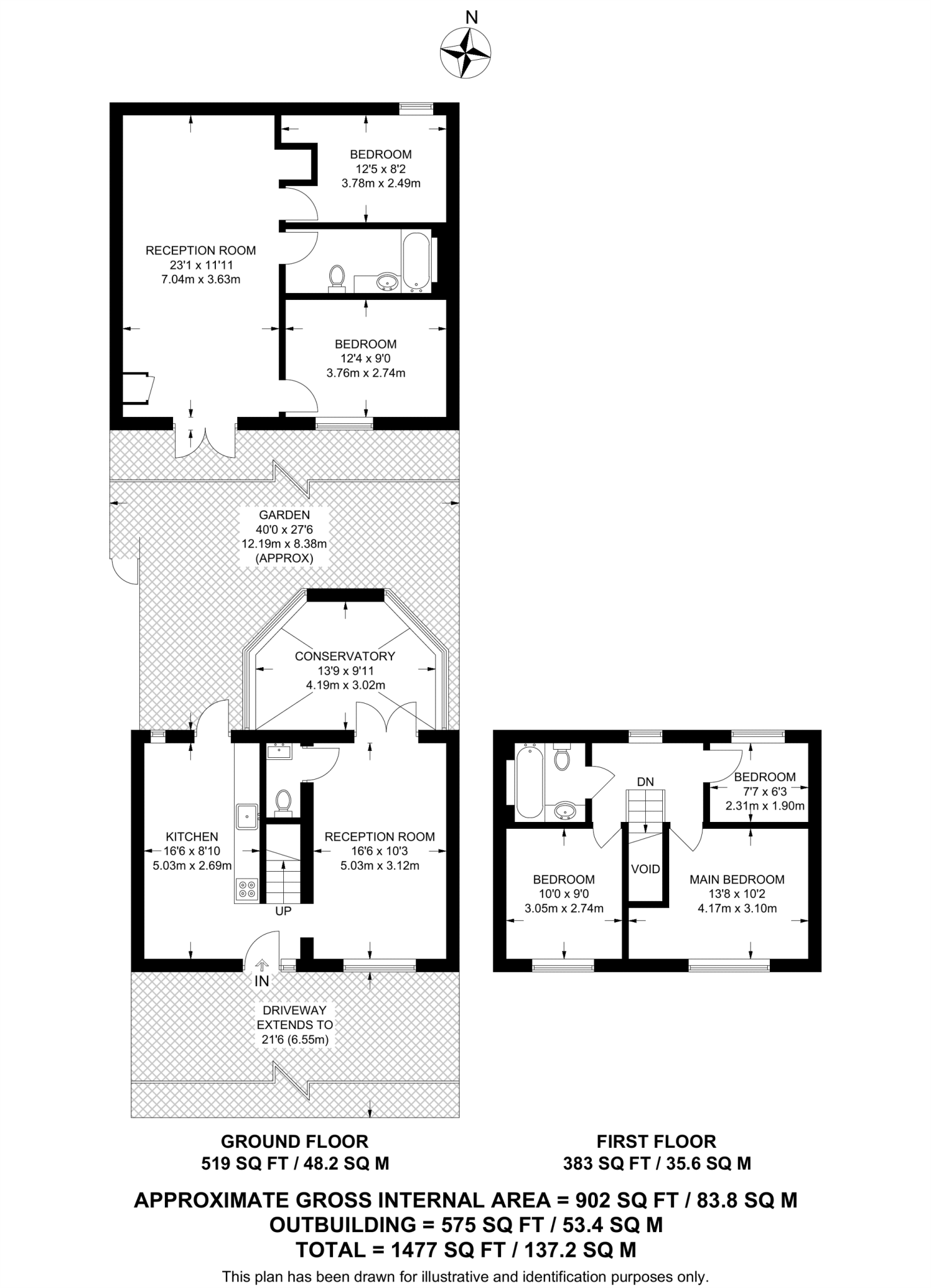
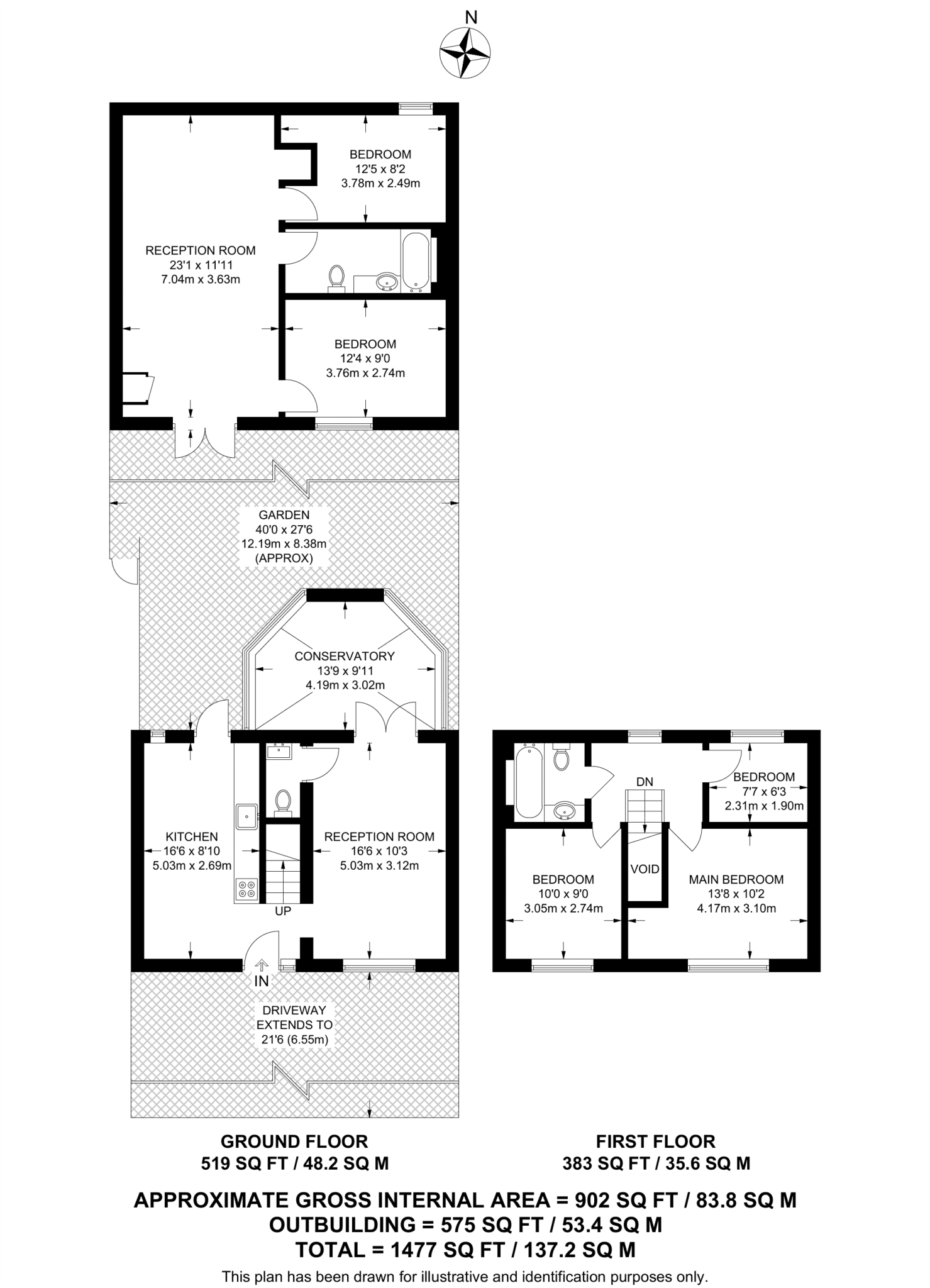
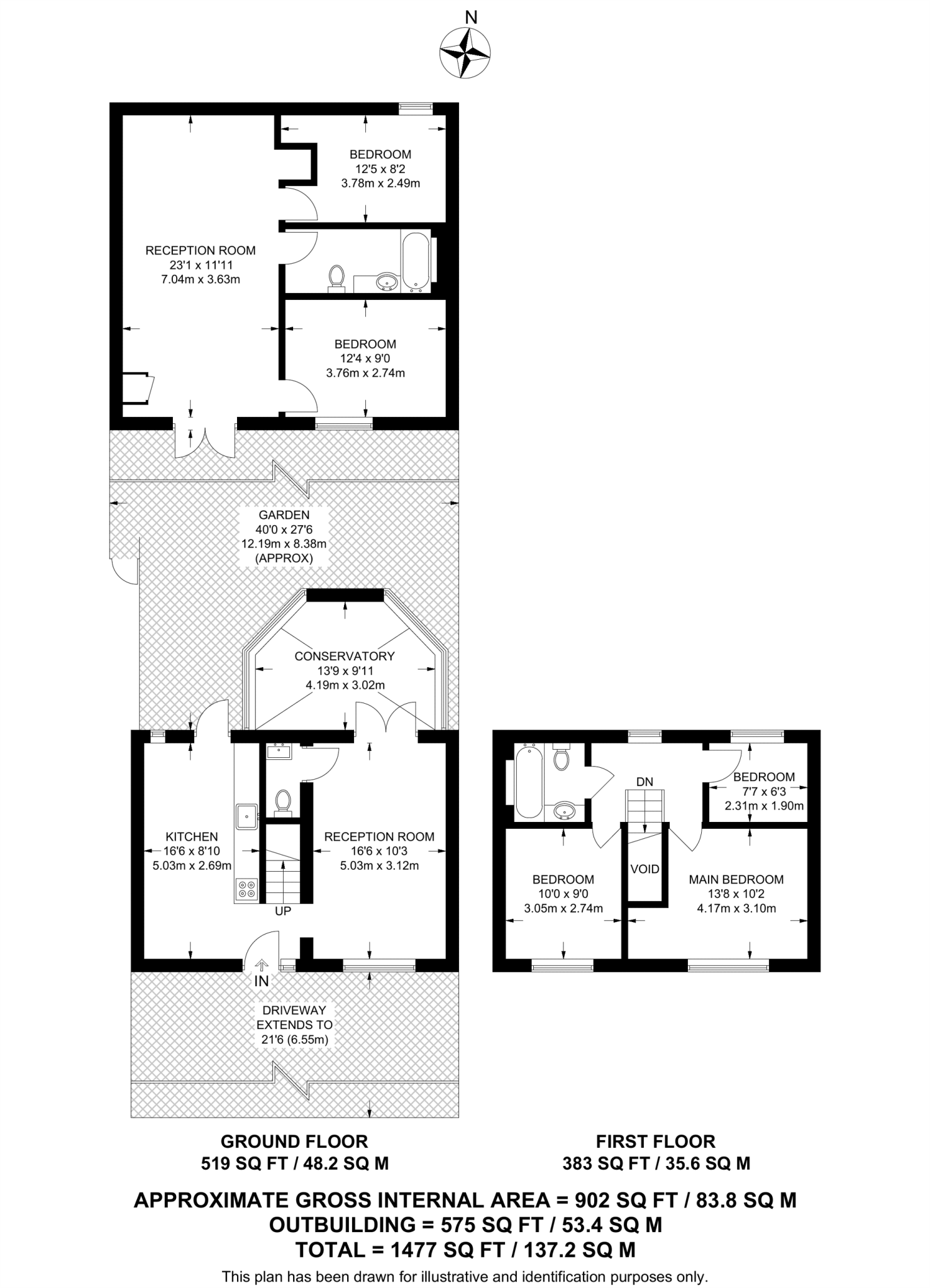
Three-bedroom end-of-terrace with sizeable overall footprint
Set on a quiet Hendon street, this generous three-bedroom end-of-terrace offers flexible living across multiple floors and a sizeable plot. Light streams into a spacious reception and conservatory, while a stylish kitchen with integrated LED lighting gives a contemporary touch. Off-street parking for two cars and close proximity to Brent Cross add everyday convenience.
A large detached outbuilding provides two additional bedrooms and open-plan living — ideal as a self-contained annexe, rental unit, or extended family space. There is clear potential to extend the main house subject to planning permission (STPP), which will appeal to buyers wanting to increase living space or capital value.
Practical details: the house is freehold, double-glazed (post-2002), heated by a mains-gas boiler and radiators, and totals about 1,477 sq ft. The plot is decent in size but the garden requires some work; the exterior shows mid-century brickwork typical of the 1930–49 build period.
Be candid: the area scores high for crime and is in a deprived ward, factors buyers should weigh alongside the property’s size and rental/extension potential. The walls are solid brick with assumed no cavity insulation, so buyers should budget for possible energy-efficiency improvements. There is a single main bathroom for the three-bedroom house plus the outbuilding facilities to consider when planning household use or lettings.
3 bedroom house for sale in Sydney Grove, Hendon NW4 — £775,000 • 3 bed • 1 bath • 1314 ft²
4 bedroom house for sale in Florence Street, Hendon, London, NW4 — £750,000 • 4 bed • 3 bath • 1310 ft²
2 bedroom end of terrace house for sale in Hillview Gardens, Hendon, NW4 — £550,000 • 2 bed • 1 bath • 928 ft²
3 bedroom end of terrace house for sale in Hendon, London, NW4 — £600,000 • 3 bed • 2 bath • 1120 ft²
3 bedroom terraced house for sale in Park Road, London, NW4 — £550,000 • 3 bed • 1 bath • 931 ft²
4 bedroom semi-detached house for sale in Heton Gardens, Hendon, London, NW4 — £730,000 • 4 bed • 3 bath • 1441 ft²


















































































































































































































































































