**Standout Features:**
- Spacious plot of approximately 0.15 acres with planning permission granted for a two-storey 4-bedroom house.
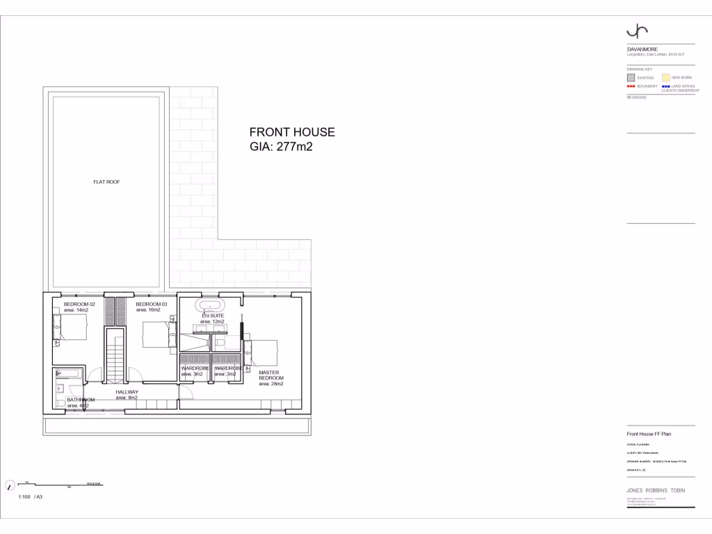
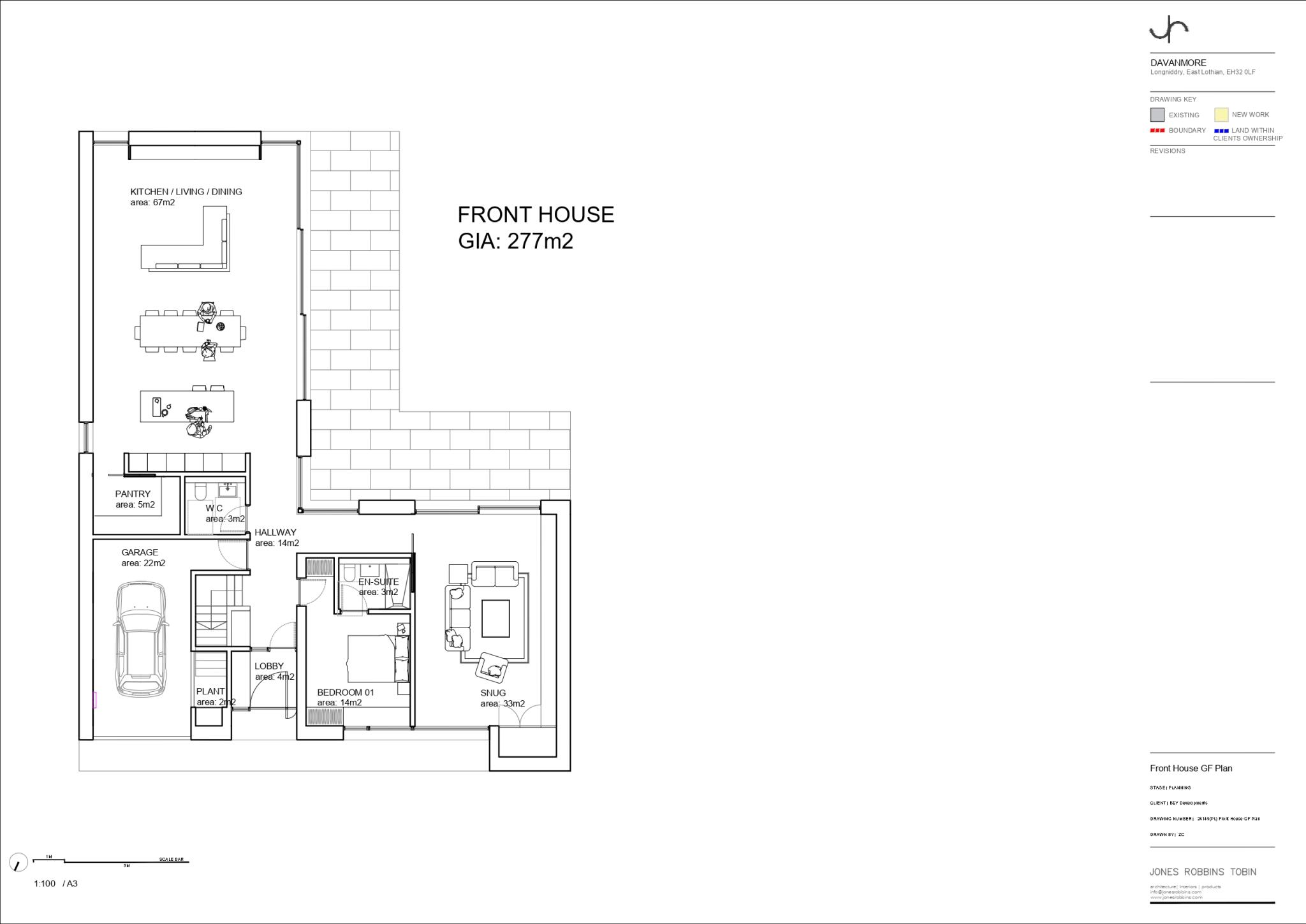
- Total proposed living space of 2,982 sqft, including four bathrooms.
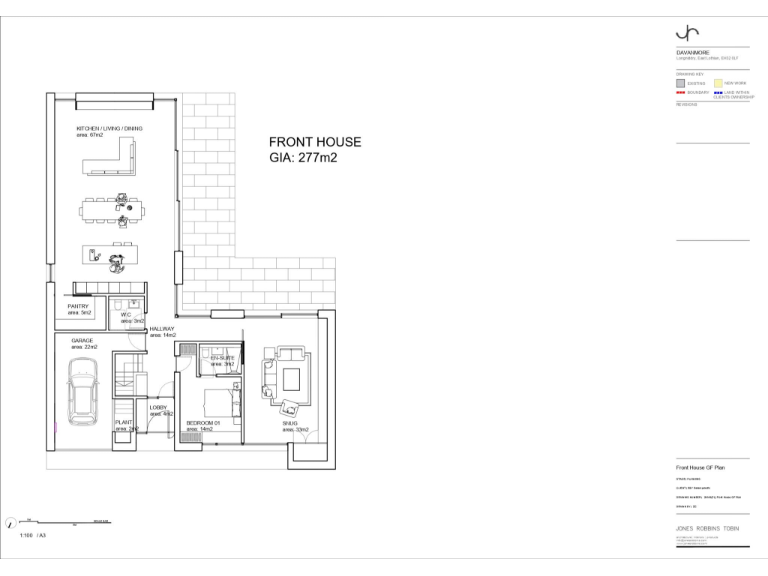
- Open plan kitchen, living, and dining area with garden access and a cozy family snug.
- Additional features include an external terrace, single-car garage, and driveway.
- Located in the peaceful coastal village of Longniddry, East Lothian.
**Concerns:**
- The area is classified as "very deprived," which may impact some buyer interests.
**Summary:**
Discover the exceptional potential of this serviced plot in the tranquil village of Longniddry, East Lothian. With planning consent to build a generous 2,982 sqft two-storey home, this property allows for a bespoke family residence featuring four spacious bedrooms and four well-appointed bathrooms. Perfect for families or investors, the layout includes a modern open plan kitchen and living area that seamlessly connects to a private outdoor space—a garden ideal for relaxation and gatherings.
Set against a backdrop of picturesque greenery and conveniently located near local amenities, including a bus stop and scenic woodlands, this plot promises a peaceful yet accessible lifestyle. While the area faces some socio-economic challenges, the unique opportunity to create your dream home in a desirable coastal community is undeniably appealing. Don’t miss your chance to infuse your vision into this stunning space—secure your future here today!
Land for sale in Gosford Road, Longniddry, East Lothian, EH32 — £425,000 • 4 bed • 4 bath • 3703 ft²
Plot for sale in Plot - Mill Wynd, Tynebank Road, Haddington, East Lothian, EH41 4DW, EH41 — £175,000 • 4 bed • 4 bath
Plot for sale in Residential Plot, Nisbet Road, Gullane, East Lothian, EH31 — £325,000 • 1 bed • 1 bath
Plot for sale in Building plot at Station Road, Gullane EH31 2HE, EH31 — £350,000 • 1 bed • 1 bath
Plot for sale in Fala Village, Pathhead, Midlothian, EH37 — £125,000 • 1 bed • 1 bath
Plot for sale in Plot of Land, The Paddock, Fenton Newmains, EH39 5AW, EH39 — £65,000 • 1 bed • 1 bath • 4000 ft²






























