Immediate consent for a contemporary family home near schools and town facilities.
Freehold plot with planning consent for 4-bedroom, two-storey house (Ref 22/00391/P)
Approved plans by Oliver + Robb Architects, granted November 2024
Private wrap-around garden retaining mature trees and woodland edge
Proposed double garage and driveway for multiple cars
Within walking distance of local school and town amenities
Site is undeveloped—buyer responsible for construction and connections
Viewing at own risk; site hazards possible, take care when visiting
Area data flagged as very deprived—check local services and rates
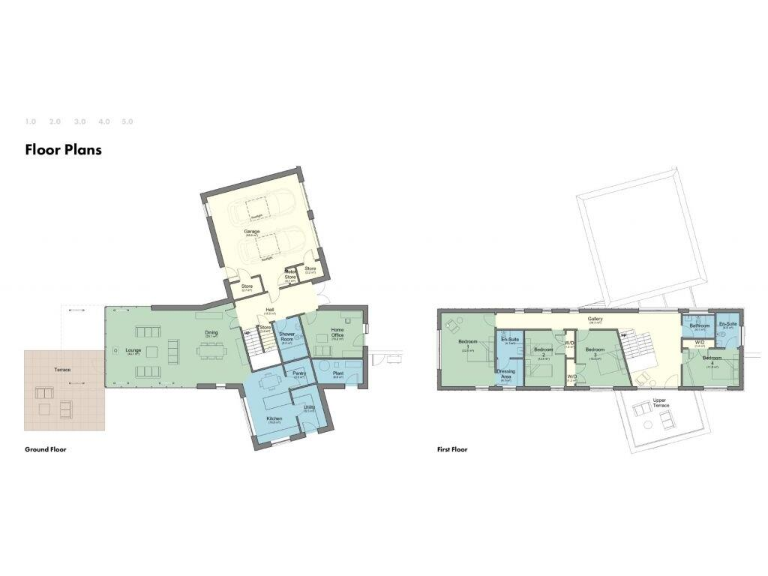
This is a rare freehold building plot in central Haddington with planning permission for a two-storey, four-bedroom family house (Ref 22/00391/P). The approved design by Oliver + Robb Architects includes a double garage, driveway for multiple cars, and a private, enclosed wrap-around garden that retains mature trees for strong privacy. The site offers a private outlook within an established rural edge setting yet remains within walking distance of local school and amenities.
The proposed ground floor has a generous open-plan living/dining/kitchen, pantry, utility, home office and terrace access; the first floor includes a master suite with dressing area and en-suite, a further en-suite bedroom, two additional bedrooms and family bathroom. Access is shown from Tynebank Road and broadband speeds are reported as fast, with average mobile signal.
Buyers should note this is a raw development plot: the site requires construction to the approved plans and sensible site health-and-safety precautions when visiting. Planning was granted in November 2024; any purchaser will be responsible for building works, connections, landscaping and any local authority conditions. The surrounding area is described as prospering countryside life but flagged in the supplied data as very deprived — check local services and rates if these factors are material to you.
Overall this plot suits a family seeking a contemporary, private new build in Haddington with immediate planning consent and room for a sizeable garden and parking provision. It also offers an opportunity for an investor or developer comfortable managing a new-build project in a semi-rural setting.
Land for sale in Gosford Road, Longniddry, East Lothian, EH32 — £375,000 • 4 bed • 4 bath • 2982 ft²
Plot for sale in Fala Village, Pathhead, Midlothian, EH37 — £125,000 • 1 bed • 1 bath
Land for sale in , Land at Lammermuir Crescent, Haddington, EH414AL, EH41 — £1,000 • 1 bed • 1 bath
Land for sale in Gosford Road, Longniddry, East Lothian, EH32 — £425,000 • 4 bed • 4 bath • 3703 ft²
Plot for sale in Residential Plot, Nisbet Road, Gullane, East Lothian, EH31 — £325,000 • 1 bed • 1 bath
Land for sale in Willow Rise, Whittingehame, Haddington, East Lothian, EH41 — £1,350,000 • 1 bed • 1 bath • 5080 ft²






































