**Standout Features:**
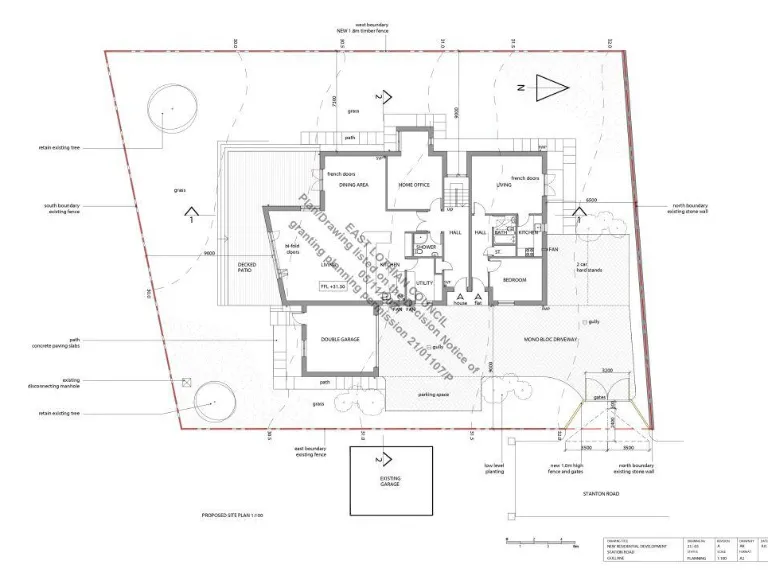
- **Plot Size**: 0.23 acres
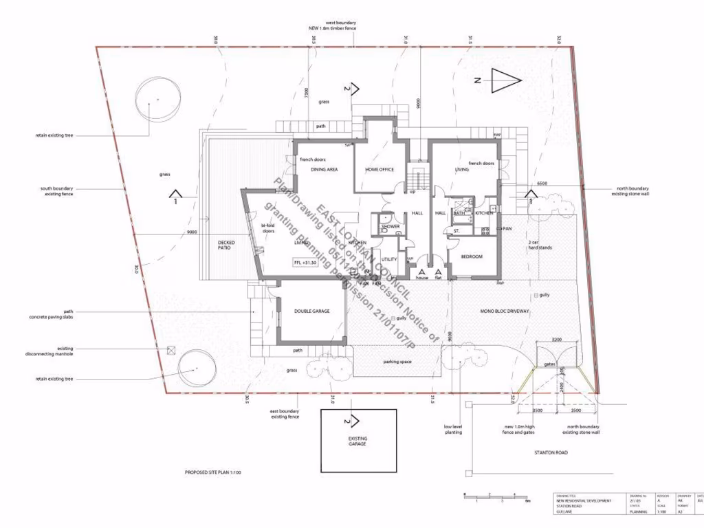
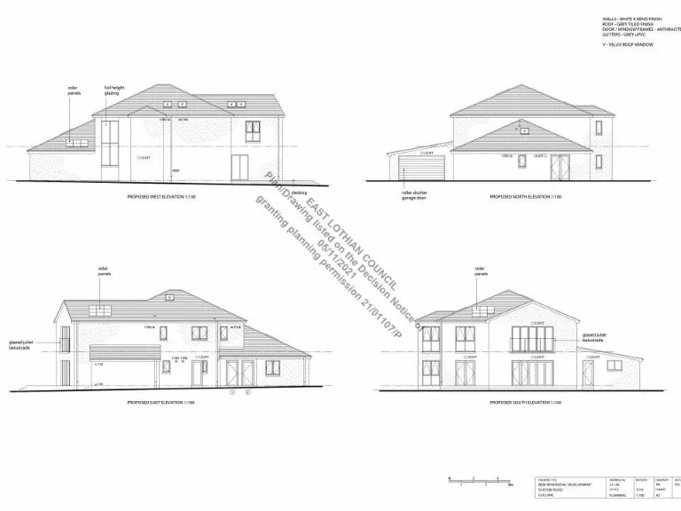
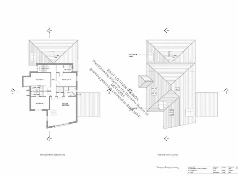
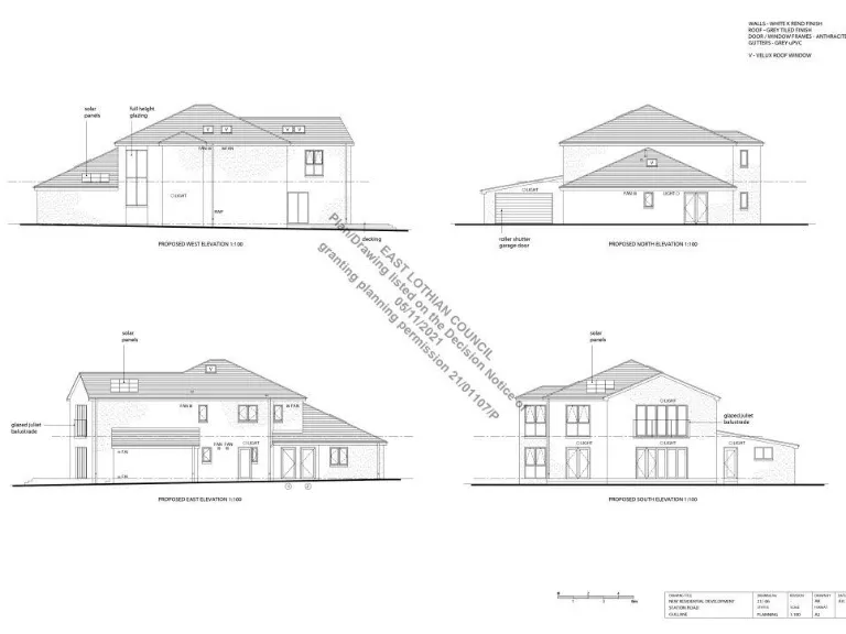
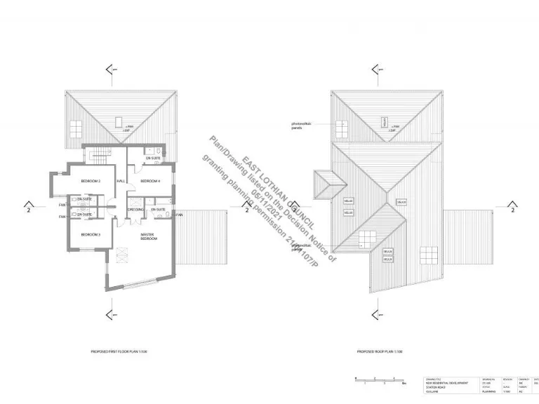
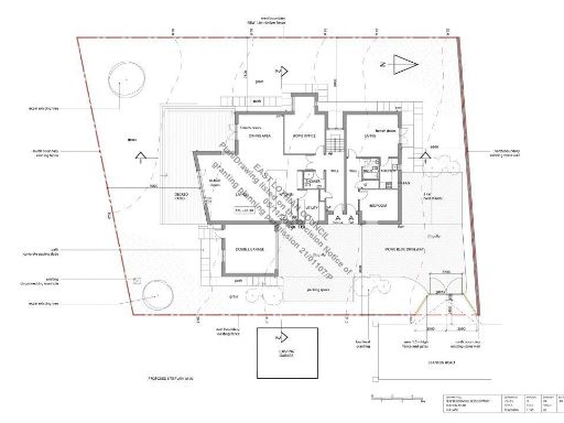
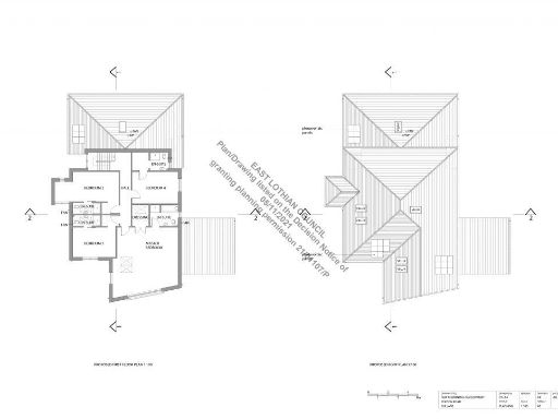
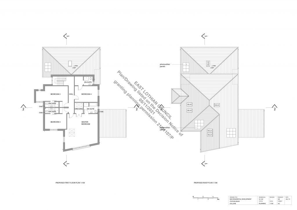
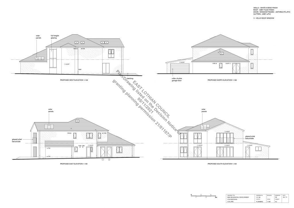
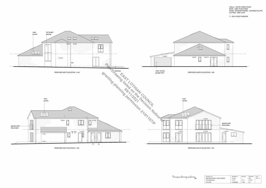
- **Building Plans**: Pre-approved for a four-bedroom detached house with an annexe and double garage
- **Quiet Location**: Situated on a peaceful lane in Gullane, a desirable coastal village
- **Excellent Amenities**: Convenient access to schools, cafes, shops, and stunning Gullane Bents beach nearby
- **Planning Reference**: Stage 1 building warrant applied (East Lothian Council reference 21/01107/P)
- **Infrastructure**: Drainage already on site
- **Future Potential**: Opportunity to customize and expand on plans
**Summary:**
Discover a rare opportunity to build your dream home in the heart of Gullane. This spacious 0.23-acre plot promises a peaceful life in a charming coastal village just steps away from the beautiful Gullane Bents beach. Plans are in place for a stunning four-bedroom detached home, designed to maximize views of the Lammermuir Hills, along with a convenient one-bedroom annexe—perfect for guests or generating rental income. Stack these modern comforts with a double garage and surrounding garden spaces to create your idyllic family haven.
Gullane is renowned for its rich golfing heritage and vibrant local community, offering an array of restaurants, shops, and outdoor activities. Proximity to the esteemed Muirfield Golf Course and top-notch schools enhances this location's appeal, making it ideal for families or investors seeking long-term rental potential. With drainage on-site and a building warrant application already submitted, seize this unique opportunity to tailor-build your future while enjoying the coastal lifestyle. Don’t miss out—this exceptional plot won’t be available for long!
Plot for sale in Residential Plot, Nisbet Road, Gullane, East Lothian, EH31 — £325,000 • 1 bed • 1 bath
Plot for sale in Plot - Mill Wynd, Tynebank Road, Haddington, East Lothian, EH41 4DW, EH41 — £175,000 • 4 bed • 4 bath
Land for sale in Gosford Road, Longniddry, East Lothian, EH32 — £375,000 • 4 bed • 4 bath • 2982 ft²
Land for sale in Gosford Road, Longniddry, East Lothian, EH32 — £425,000 • 4 bed • 4 bath • 3703 ft²
4 bedroom detached house for sale in Hamilton Sands, Gullane, EH31 — £1,195,000 • 4 bed • 3 bath • 2075 ft²
Land for sale in Willow Rise, Whittingehame, Haddington, East Lothian, EH41 — £1,350,000 • 1 bed • 1 bath • 5080 ft²






























































































