Substantial corner site with detailed planning for four homes in leafy Chaddesden.
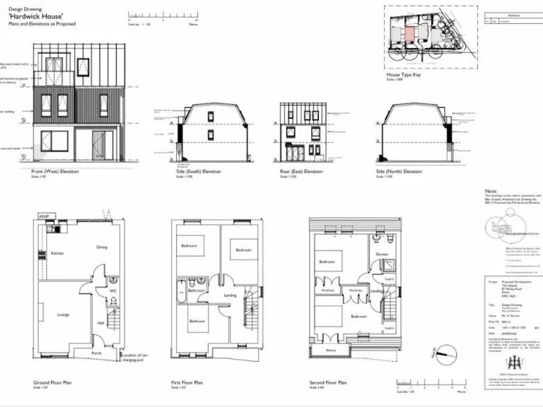
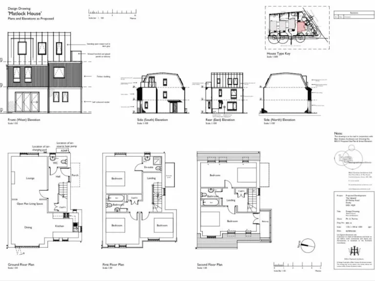
Planning permission granted for four detached executive homes (ref 21/00906/F)
Large corner plot with mature trees and high privacy
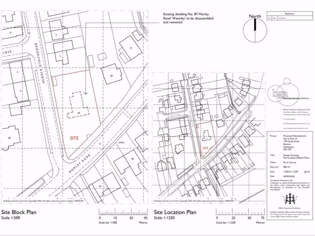
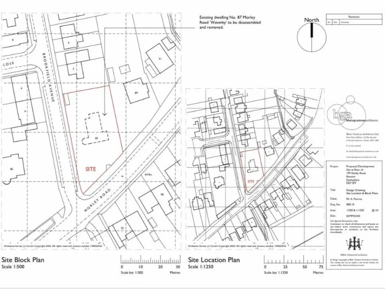
Frontage to Morley Road; access possible via Brooklyn Avenue
Existing mid-century bungalow requires significant renovation or demolition
Medium flood risk — mitigation and enquiries advised
Tenure unknown — buyer must confirm title and covenants
Fast broadband and excellent mobile signal suitable for modern homes
Nearby schools and amenities; area classed as comfortable neighbourhoods
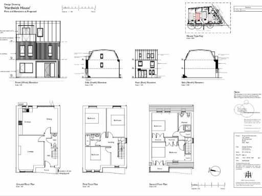
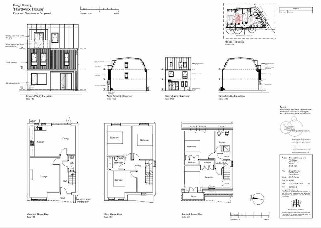
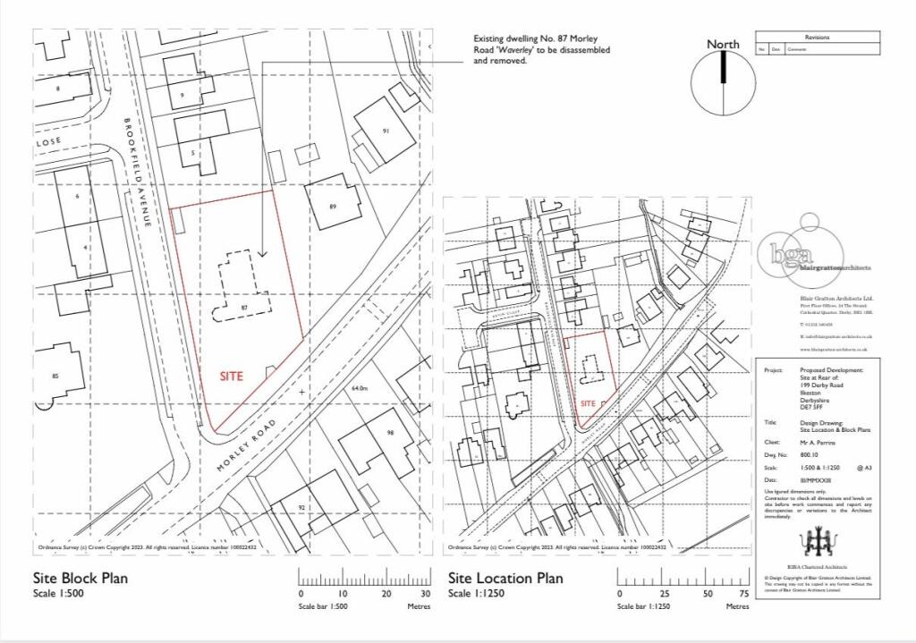
This large corner plot on Morley Road comes with detailed planning permission (21/00906/F) to replace the existing detached bungalow with four detached executive homes — a clear development opportunity in an established Chaddesden suburb. The site has generous frontage to Morley Road and potential access for three plots via Brooklyn Avenue, giving flexibility for construction and layout.
The current property is a mid-century detached bungalow set in mature gardens with substantial tree cover and strong privacy. The bungalow is average in size (approximately 1,744 sq ft) and shows signs of wear; renovation or demolition would be required if retaining the existing building.
Practical considerations are straightforward: the plot is large, broadband speeds are fast and mobile signal is excellent, supporting modern builds. Flooding risk is medium and tenure is unknown — both should be investigated during due diligence. Local amenities, schools (several rated Good nearby) and transport links make the location attractive to families and buyers.
This opportunity suits developers or buyers looking to secure a substantial, well-located plot with planning in place. The granted permission removes a significant early-stage planning risk, but purchasers should factor in build costs, medium flood risk mitigation and any Section 106 or local planning conditions listed on the Derby City Council portal.
Land for sale in Derby Road, Risley, Derby, DE72 — £250,000 • 4 bed • 2 bath • 658 ft²
Plot for sale in Hallmoor Road, Darley Dale, DE4 — £325,000 • 1 bed • 1 bath
Plot for sale in Windy Lane, Little Eaton, Derby, DE21 — £550,000 • 1 bed • 1 bath • 3047 ft²
Plot for sale in Sorchestun Lane , Chellaston , Derbyshire, DE73 5BD, DE73 — £300,000 • 5 bed • 4 bath
Detached house for sale in Mansfield Road, Hasland, S41 — £95,000 • 1 bed • 1 bath • 2600 ft²
Plot for sale in Burton Road, Midway, Swadlincote, DE11 — £205,000 • 1 bed • 1 bath • 667 ft²






























































