Ready-permitted site for two modern homes with parking and gardens.
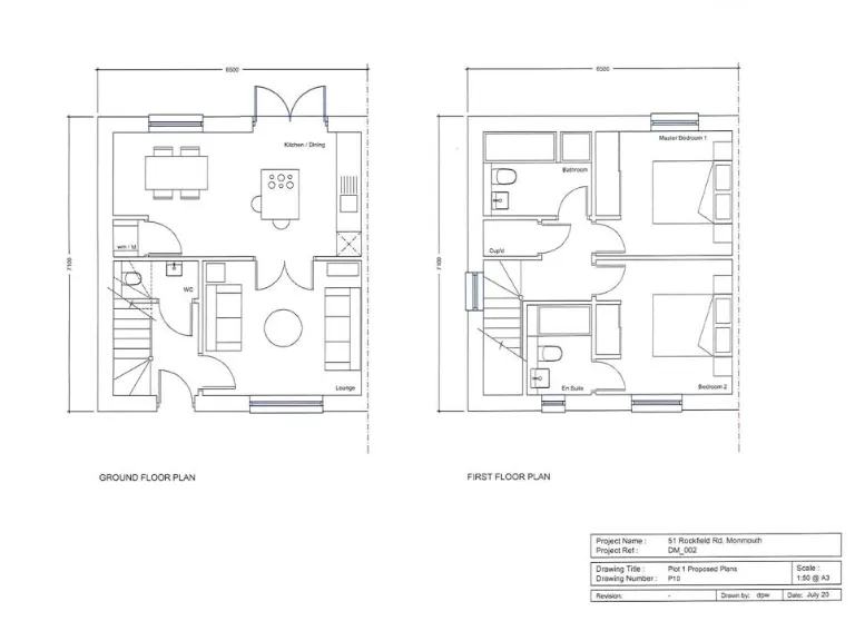
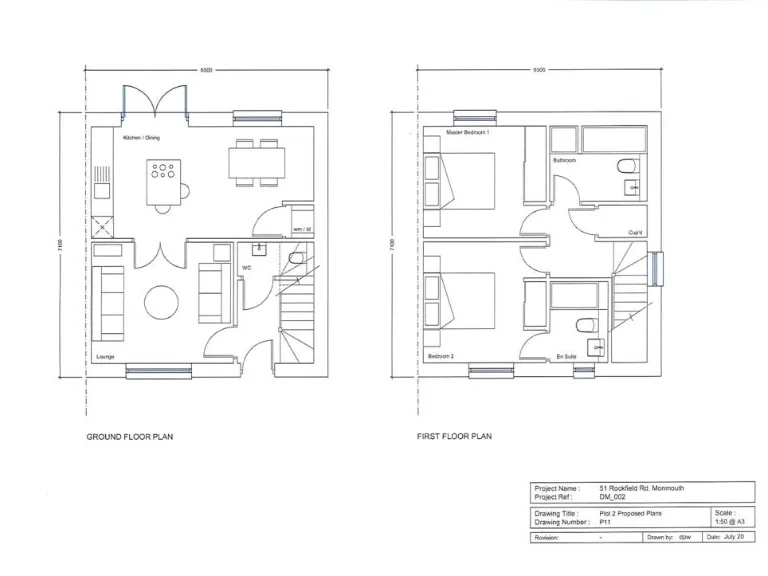
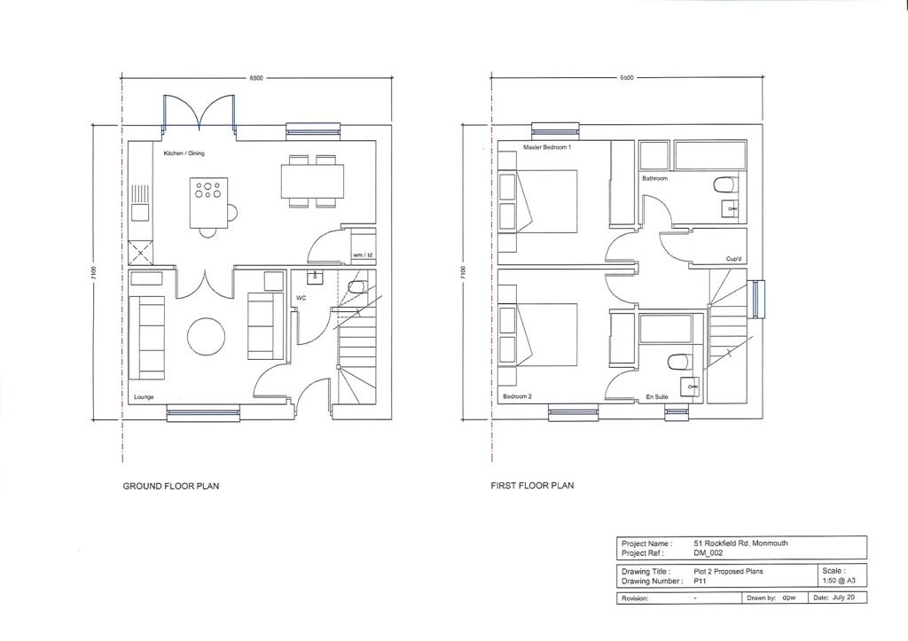
Full planning permission for two semi-detached two-bedroom homes (DM/2023/01084)
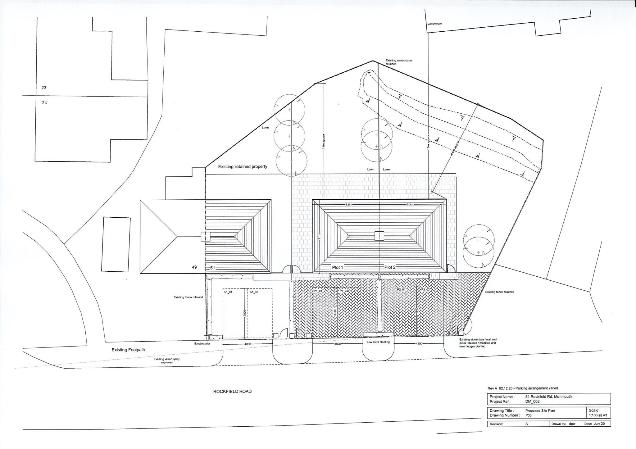
A ready-permitted site offering full planning permission (DM/2023/01084) for two semi‑detached, two‑bedroom modern homes. Each unit includes a rear garden and the scheme allows off‑street parking for two cars, making the site straightforward to deliver for rental or resale.
The plot fronts open farmland, providing pleasant front-aspect views, and sits in a sought-after location within easy reach of local amenities and Good/Outstanding primary schools. The site requires demolition of an existing garage as part of the approved works; plans and permissions are in place to proceed.
Practical positives include freehold tenure, excellent mobile signal and fast broadband — useful for modern occupants and short-term lettings. The parcel is small and the surrounding area scores as very deprived, which may affect pricing or rental levels; these factors are reflected in the guide price of £160,000.
For a developer or investor the site offers a quick route to two new-build homes with parking and gardens in a semi-rural setting. Buyers should review planning drawings and local authority conditions before exchange and factor the garage demolition and any site preparation costs into budgets.
Semi-detached house for sale in Rockfield Road, Monmouth, NP25 — £160,000 • 1 bed • 1 bath
Residential development for sale in Coomb Drive, Cinderford, GL14 — £150,000 • 1 bed • 1 bath
Plot for sale in Building Plot, Ruardean Hill, Drybrook, GL17 — £495,000 • 1 bed • 1 bath
Plot for sale in Welsh Newton Common, Monmouth, Monmouthshire, NP25 — £330,000 • 1 bed • 1 bath
Plot for sale in Harewood End, Hereford, HR2 — £300,000 • 1 bed • 1 bath
Land for sale in Minepitts Lane, Symonds Yat West , HR9 — £325,000 • 3 bed • 1 bath


















