Ready‑permitted site for modern two‑bed homes in a semi‑rural Monmouth location.
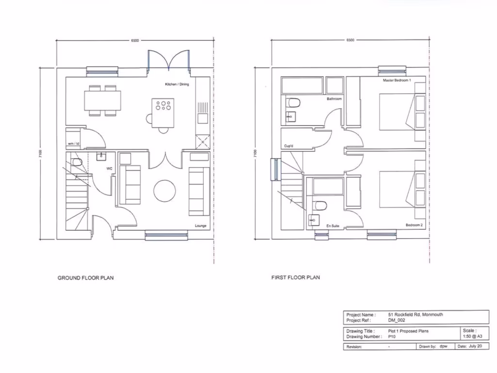
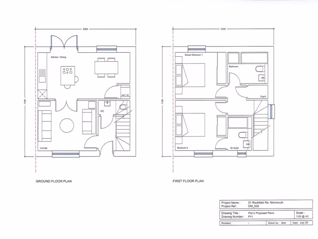
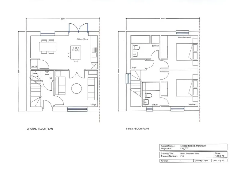
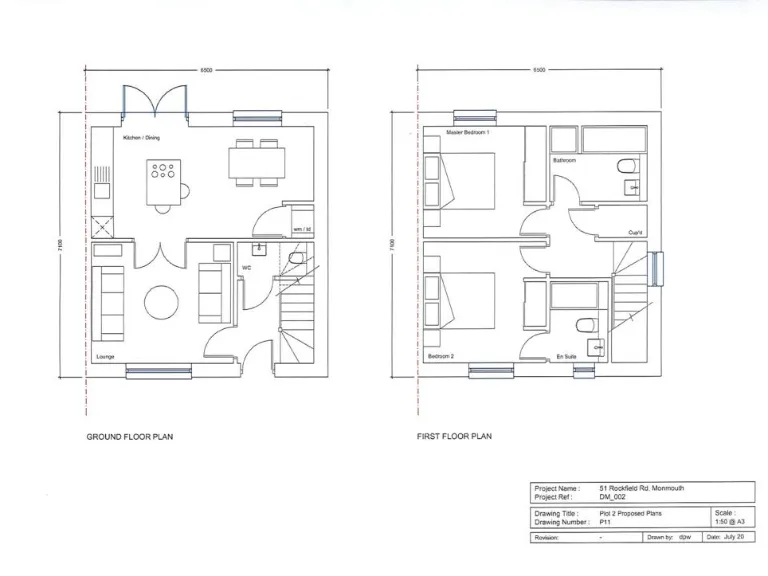
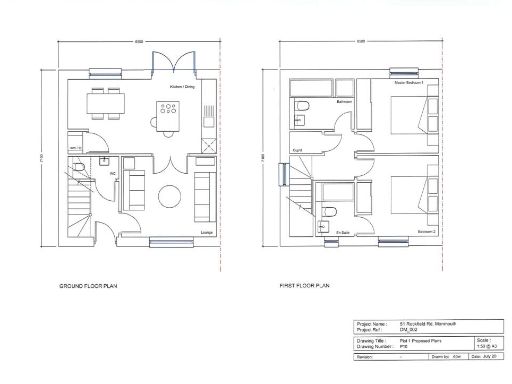
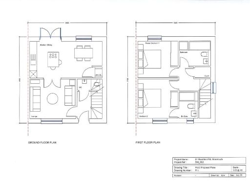
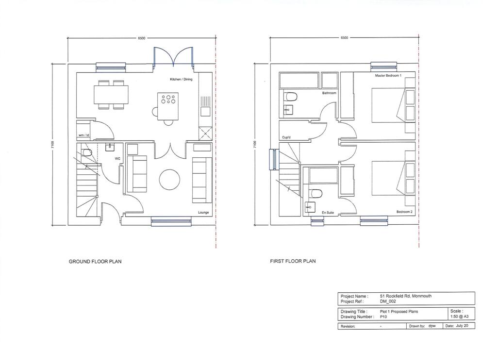
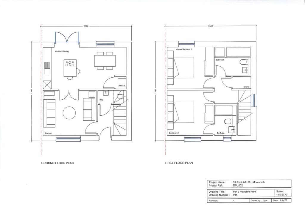
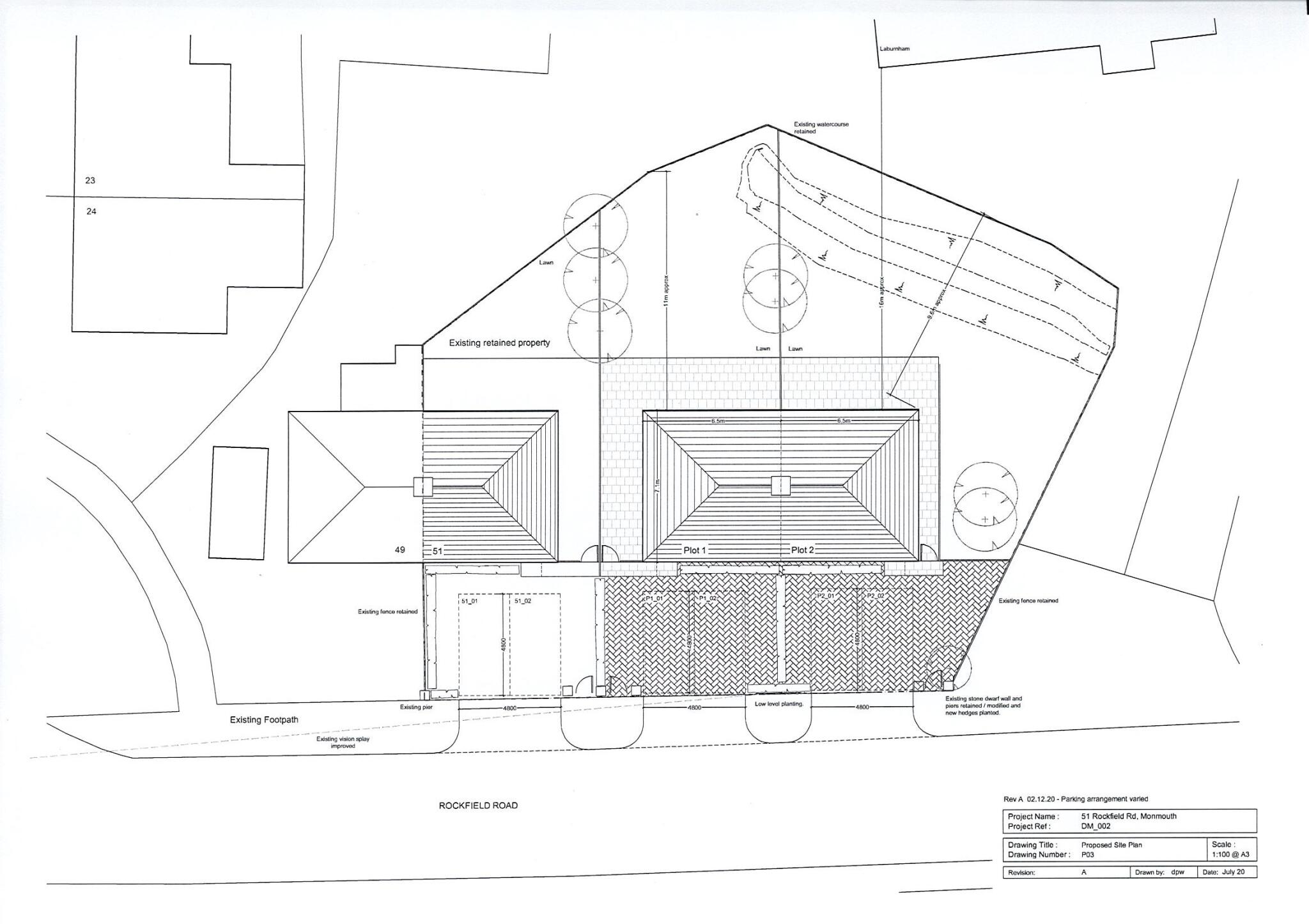
Full planning permission DM/2023/01084 for two semi‑detached two‑bed homes
Existing property recorded as one bedroom; redevelopment planned
Off‑street parking: space for two cars per plot
Frontage farmland views; private rear gardens of modest size
Freehold tenure; fast broadband and excellent mobile signal
Requires demolition of existing garage as part of approved scheme
Small plot size; compact homes and limited outdoor space
Local area classed as very deprived — may affect yields/resale timing
This property presents a straightforward development opportunity in a sought-after Monmouth setting with open farmland views to the front. Full planning permission (DM/2023/01084) has been granted for two semi‑detached, two‑bedroom homes, giving a clear route to create modern, low‑maintenance homes with private gardens and parking for two cars each. The site sits freehold and benefits from fast broadband and excellent mobile signal — practical advantages for buyers and renters alike.
The current building is a compact, mostly modern semi‑detached house (one bedroom recorded) with an existing garage that will require demolition under the approved scheme. The plots offer sizeable frontages and rear garden space but the overall footprint is small, so outdoor space is private rather than expansive. Buyers should plan for the usual build‑out costs and site work associated with replacing the garage and completing new homes to the approved specification.
Location strengths include countryside aspects, very low local crime, nearby primary schools (one rated Outstanding), and local amenities such as a playground and meadow. Important local context: the wider area is classified as very deprived, which may affect anticipated rental yields or resale timing in the short term. Flood risk is assessed as none.
This is best suited to a first‑time buyer looking to commission a new home to exacting standards, or a small investor/developer comfortable managing a modest build project. The permission removes much of the planning uncertainty, but practical considerations — demolition, build costs, and the small plot size — should be factored into any offer.
Plot for sale in Rockfield Road, Monmouth, NP25 — £160,000 • 2 bed • 1 bath
Barn conversion for sale in Llandenny, Usk, Monmouthshire, NP15 — £450,000 • 1 bed • 1 bath
Plot for sale in Welsh Newton Common, Monmouth, Monmouthshire, NP25 — £330,000 • 1 bed • 1 bath
Residential development for sale in Coomb Drive, Cinderford, GL14 — £150,000 • 1 bed • 1 bath
Land for sale in Minepitts Lane, Symonds Yat West , HR9 — £325,000 • 3 bed • 1 bath
Plot for sale in Harewood End, Hereford, HR2 — £300,000 • 1 bed • 1 bath


















