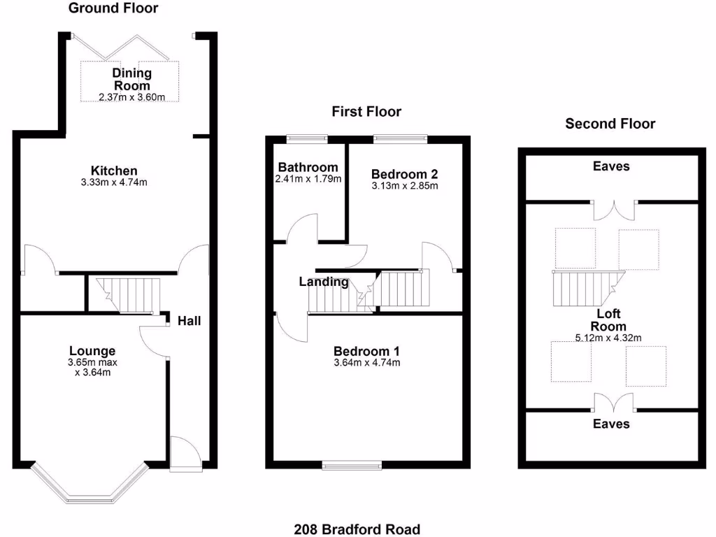
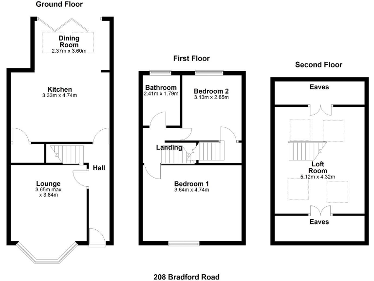
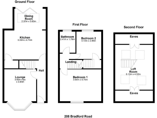
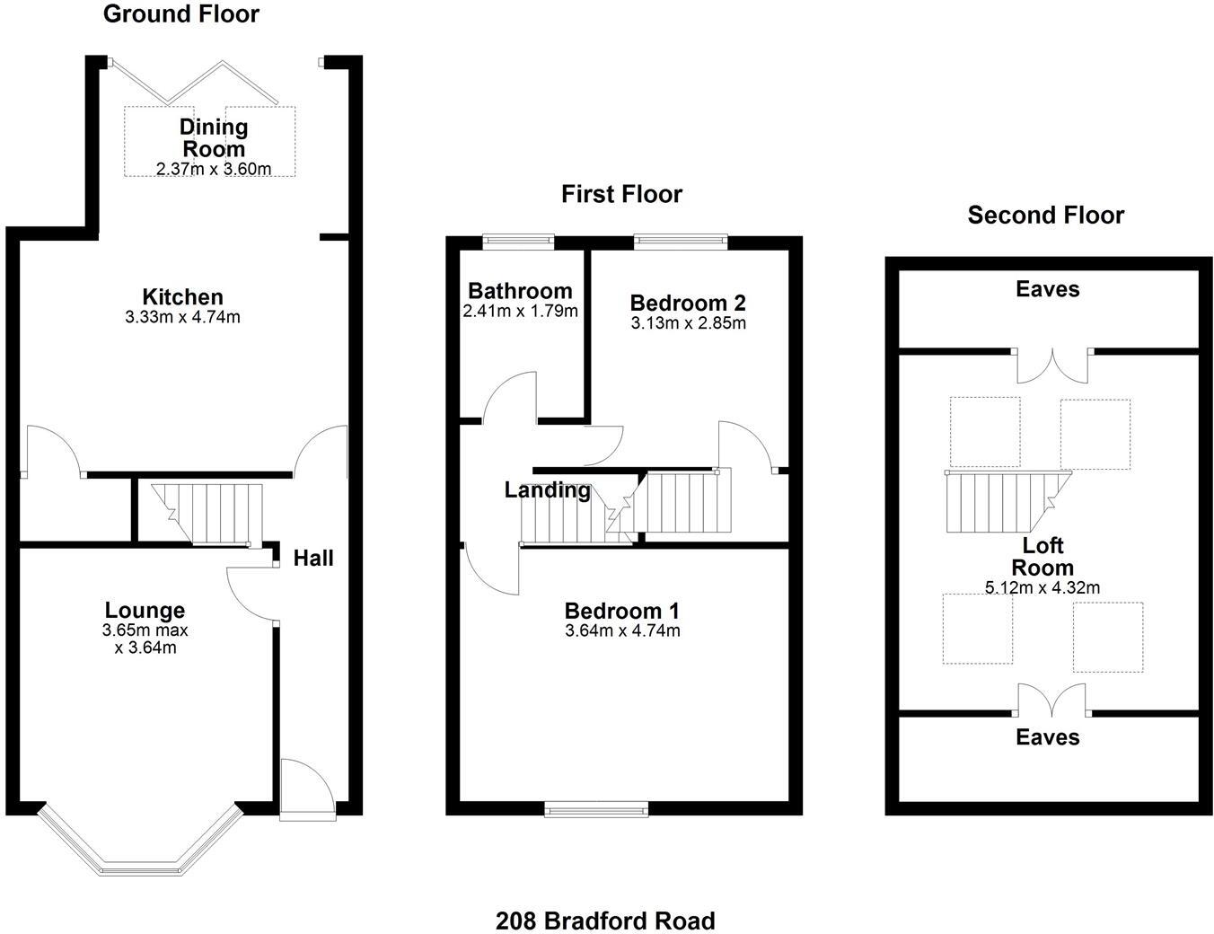
Two-bedroom family home with driveway, modern kitchen and enclosed garden close to the city centre..
- Two bedrooms plus spacious converted loft room
- Extended open-plan kitchen/diner with island and bi-fold doors
- Separate bay-fronted lounge retaining period features
- Driveway parking for up to three cars
- Enclosed rear garden with patio, deck and small lawn
- EPC D (60); solid brick walls assumed without insulation
- Small plot and shared side access for bins
- Local area records higher crime levels
This well-presented two-bedroom Victorian semi offers flexible living across three floors, with a generous converted loft creating valuable extra space. The extended open-plan kitchen/diner and bi-fold doors give strong indoor–outdoor flow to a low-maintenance rear garden, while a separate bay-fronted lounge retains period character. Driveway parking for up to three cars is a practical bonus in this inner-suburban location close to Wakefield city centre.
The accommodation is ready to move into and will suit a family or buyer seeking convenient, low-effort living with good natural light. Built features include high ceilings to the front, double glazing and modern bathroom fittings. The loft room is well lit by four Velux windows and provides flexible use as a bedroom, study or hobby space.
Notable factors: the property has an EPC rating of D (60) and the original solid brick walls are assumed uninsulated, which may affect energy bills until upgraded. The plot is modest with shared bin access alongside the neighbouring property, and the area records higher local crime statistics. Buyers should weigh potential energy-improvement costs against the strong location, size and off-street parking provision.
3 bedroom semi-detached house for sale in Belle Isle Avenue, Wakefield, WF1 — £260,000 • 3 bed • 1 bath • 760 ft²
3 bedroom semi-detached house for sale in Eden Avenue, Wakefield, WF2 — £295,000 • 3 bed • 1 bath • 1088 ft²
3 bedroom semi-detached house for sale in Wrenthorpe Lane, Wrenthorpe, WF2 — £255,000 • 3 bed • 1 bath • 1024 ft²
2 bedroom semi-detached house for sale in Ivy Lane, Wakefield, WF1 — £165,000 • 2 bed • 1 bath • 765 ft²
2 bedroom semi-detached house for sale in Field Gate View, Wakefield, WF2 — £199,950 • 2 bed • 1 bath • 711 ft²
2 bedroom terraced house for sale in Potovens Lane, Wrenthorpe, WF2 — £200,000 • 2 bed • 1 bath • 851 ft²


































































