Ready-to-move-in two-bedroom home with enclosed garden and cellar storage.
Two double bedrooms with built-in storage
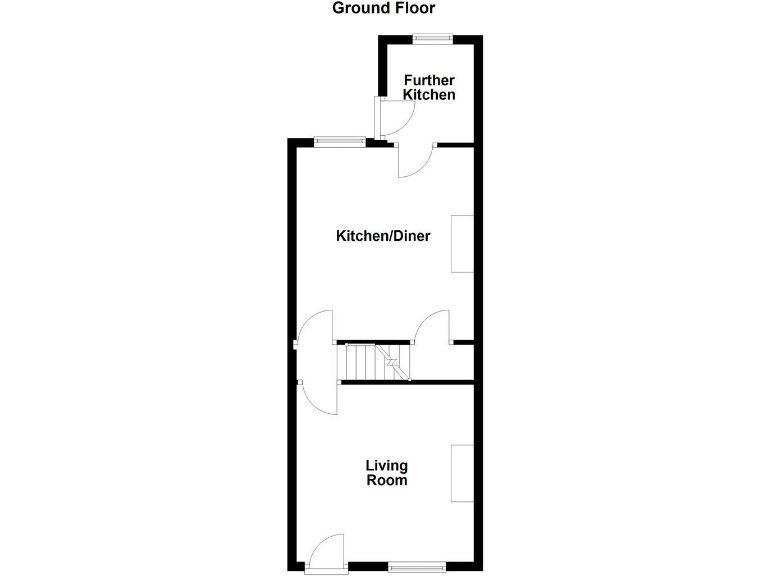
This well-presented mid-terrace Victorian house offers comfortable, ready-to-move-in accommodation across two floors with useful cellar storage. The home has two generous double bedrooms, a modern kitchen-diner plus a secondary kitchen/utility area, and an enclosed lawned rear garden ideal for children and pets. The property feels bright and practical, with UPVC double glazing and central heating throughout.
Practical features include a sizeable cellar (divided into main cellar and additional store) that adds flexible storage or potential utility space, a paved front buffer garden with bin store, and a garden shed included in the sale. The rear garden is enclosed and low maintenance, with patio space for outdoor dining and gated foot access for the terrace residents.
Location is a key strength: Wrenthorpe provides local shops, schools (including several rated Good and Outstanding), and easy commuter links to Wakefield city centre and the M1. The house sits in an affluent, white suburban community with fast broadband and excellent mobile signal — useful for homeowners and tenants alike.
Notable practical points: the property is average-sized and sits on a small plot, so outdoor space is modest. The Energy Performance Certificate is awaited; buyers should review the EPC once available. Council Tax is Band A, reflecting low ongoing tax costs. Viewing is recommended to assess the cellar condition and room proportions in person.
 2 bedroom terraced house for sale in Longfield Terrace, Wakefield, WF2 — £135,000 • 2 bed • 1 bath • 819 ft²
 2 bedroom terraced house for sale in Longfield Terrace, Wakefield, WF2 — £135,000 • 2 bed • 1 bath • 819 ft² 2 bedroom terraced house for sale in Alverthorpe Road, Wakefield, WF2 — £145,000 • 2 bed • 1 bath • 526 ft²
 2 bedroom terraced house for sale in Alverthorpe Road, Wakefield, WF2 — £145,000 • 2 bed • 1 bath • 526 ft² 2 bedroom terraced house for sale in Wrenthorpe, Wakefield, WF2 — £169,950 • 2 bed • 1 bath • 743 ft²
 2 bedroom terraced house for sale in Wrenthorpe, Wakefield, WF2 — £169,950 • 2 bed • 1 bath • 743 ft² 2 bedroom terraced house for sale in Henry Street, Wakefield, WF2 — £130,000 • 2 bed • 1 bath • 627 ft²
 2 bedroom terraced house for sale in Henry Street, Wakefield, WF2 — £130,000 • 2 bed • 1 bath • 627 ft² 2 bedroom terraced house for sale in Alverthorpe Road, Wakefield, West Yorkshire, UK, WF2 — £142,500 • 2 bed • 1 bath • 710 ft²
 2 bedroom terraced house for sale in Alverthorpe Road, Wakefield, West Yorkshire, UK, WF2 — £142,500 • 2 bed • 1 bath • 710 ft² 2 bedroom terraced house for sale in Bradford Road, Wrenthorpe, Wakefield, West Yorkshire, WF2 — £150,000 • 2 bed • 1 bath • 609 ft²
 2 bedroom terraced house for sale in Bradford Road, Wrenthorpe, Wakefield, West Yorkshire, WF2 — £150,000 • 2 bed • 1 bath • 609 ft²


















































