Walkable to Westfield, excellent transport and strong rental yield potential.
- Flexible internal layout: reconfigured from two bedrooms to three
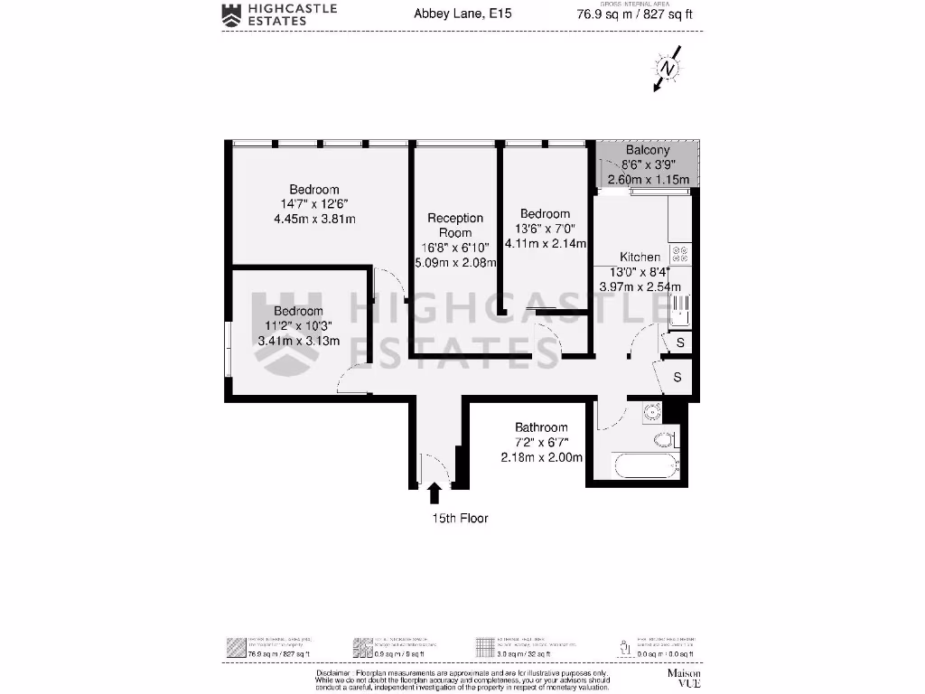
Set on the upper floors of a high-rise in Stratford, this well-laid-out flat has been reconfigured from two bedrooms into a flexible three-room layout — ideal for investors, sharers or growing families seeking strong rental demand. The apartment delivers generous internal space for its size, lift access, secure entry and off-street parking by permit, plus direct walking access to Westfield, the Olympic Park and excellent transport links including the Elizabeth Line.
The kitchen is functional with natural light but shows wear and dated appliances; the property would benefit from light modernisation to maximise long-term rental income and occupant comfort. Communal upkeep is apparent in the building and the service charge is notable at around £3,500 per year. Crime levels locally are above average — worth factoring into lettings and insurance decisions.
This lot is sold at online auction. Bidders should allow for the non-refundable 5% exchange deposit, a reservation fee (up to 6% inc. VAT, minimum £6,000) and be ready to consult the legal pack before bidding. The lease has approximately 120 years remaining and ground rent is minor (£10 per year), supporting mortgageability and investor appeal.
Overall this is a value-driven opportunity in a rapidly developing part of East London: ready for a buyer who can accept short-term updating and auction purchase mechanics to unlock strong rental yield and capital-growth potential.
3 bedroom apartment for sale in Abbey Lane, Stratford, London, E15 2SA, E15 — £250,000 • 3 bed • 1 bath • 827 ft²
1 bedroom flat for sale in Flat 65 Aubrey Moore Point, Abbey Lane, Stratford, London, E15 2SA, E15 — £95,000 • 1 bed • 1 bath • 603 ft²
1 bedroom apartment for sale in Aubrey Moore Point, Abbey Lane, London, E15 2SA, E15 — £150,000 • 1 bed • 1 bath • 603 ft²
3 bedroom flat for sale in Leyton Road, London, E15 — £670,000 • 3 bed • 2 bath • 957 ft²
2 bedroom flat for sale in Rick Roberts Way, London, E15 — £350,000 • 2 bed • 2 bath • 678 ft²
1 bedroom flat for sale in Albert Bigg Point, Stratford, E15 — £250,000 • 1 bed • 1 bath • 581 ft²


















































































