Light-filled one-bedroom with long balcony, parking and excellent commuter links.
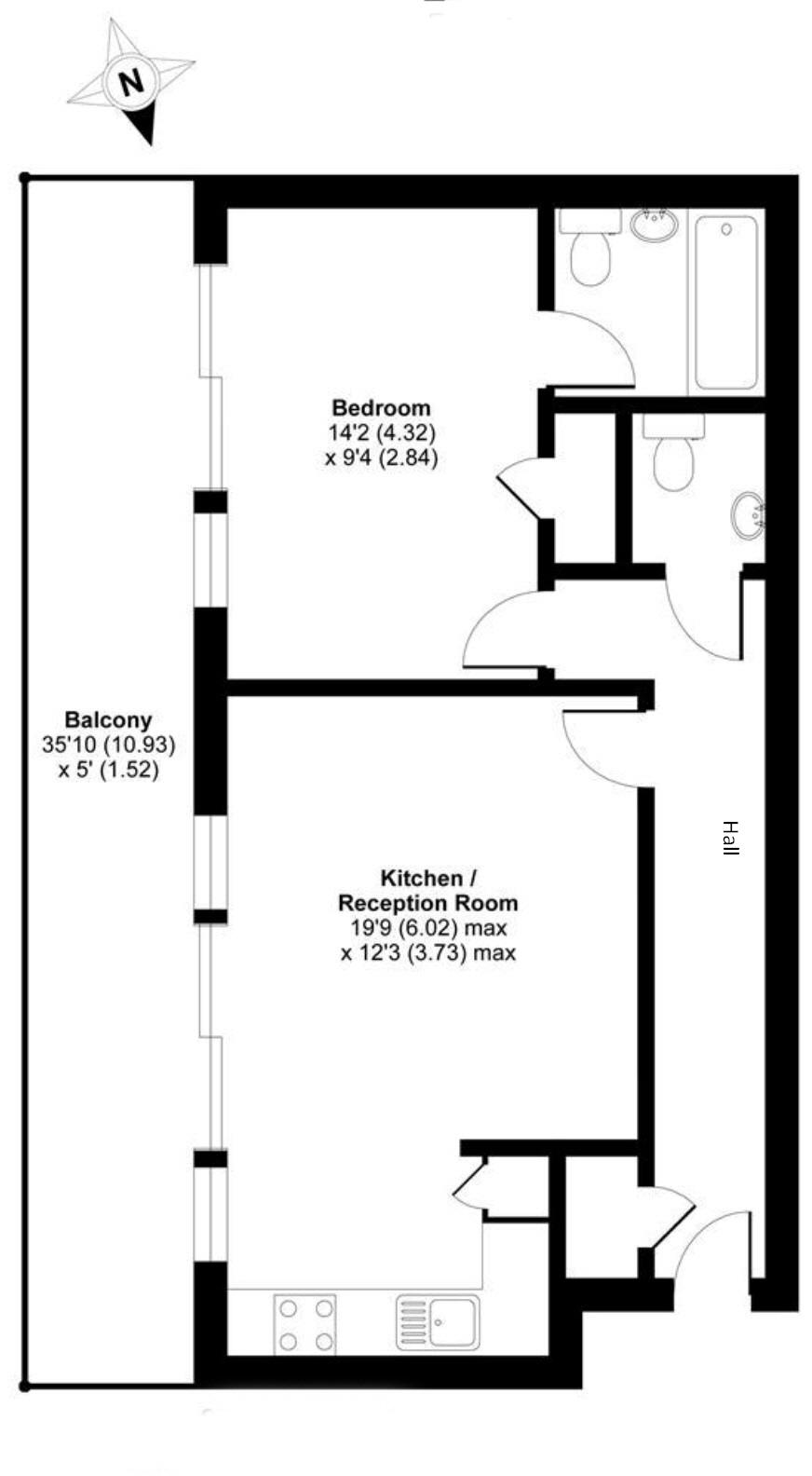
South-facing full-length balcony with treetop views and lots of light
Open-plan living/kitchen with contemporary fitted units
Double bedroom with en suite and balcony access
Allocated off-street parking space included
Lift to all floors — step-free access throughout building
Leasehold: 134 years remaining (long lease)
Service charge approx. £2,220 per year; ground rent approx. £200 per year
Council Tax Band G — relatively high ongoing cost
This light-filled one-bedroom penthouse sits on the outskirts of Guildford in Merrow, offering an open-plan living room with a well-fitted modern kitchen and a full-length south-facing balcony that runs the width of the flat. Large windows and high ceilings boost natural light and make the most of the treetop views, while a glazed sliding door from both the living room and bedroom provides direct balcony access.
Practical features include an allocated off-street parking space, lift access to all floors, excellent mobile signal and fast broadband — useful for professionals working from home. The property is presented to a contemporary standard and will suit a single occupant, professional couple or buy-to-let investor seeking straightforward accommodation close to Guildford town and its mainline station.
Buyers should note this is leasehold with 134 years remaining. Annual costs include a service charge around £2,220 and ground rent about £200; council tax is in a higher band (Band G) and should be factored into budgets. The apartment’s size (approximately 542 sq ft) is average for a one-bedroom and the balcony is long but not deep, offering good outdoor amenity rather than extensive garden space.
Overall this is a well-proportioned, low-maintenance flat with strong local amenities, good transport links and ready-to-rent potential, balanced by typical leasehold running costs.
2 bedroom penthouse for sale in Sydenham Road, Guildford, Surrey, GU1 — £450,000 • 2 bed • 2 bath • 839 ft²
1 bedroom flat for sale in Walnut Tree Close, Guildford, GU1 — £345,000 • 1 bed • 1 bath • 523 ft²
2 bedroom penthouse for sale in Chertsey Street, Guildford, Surrey, GU1 — £550,000 • 2 bed • 2 bath • 1263 ft²
2 bedroom flat for sale in Sydenham Road, Guildford, GU1 — £550,000 • 2 bed • 2 bath • 1002 ft²
1 bedroom flat for sale in Ladymead, Guildford, Surrey, GU1 — £350,000 • 1 bed • 1 bath • 650 ft²
1 bedroom flat for sale in Mount Court, The Mount, Guildford, Surrey, GU2 — £250,000 • 1 bed • 1 bath • 529 ft²














































