Compact, modern one-bedroom near station — ideal for commuters and investors.
South-west facing balcony with views towards The Mount
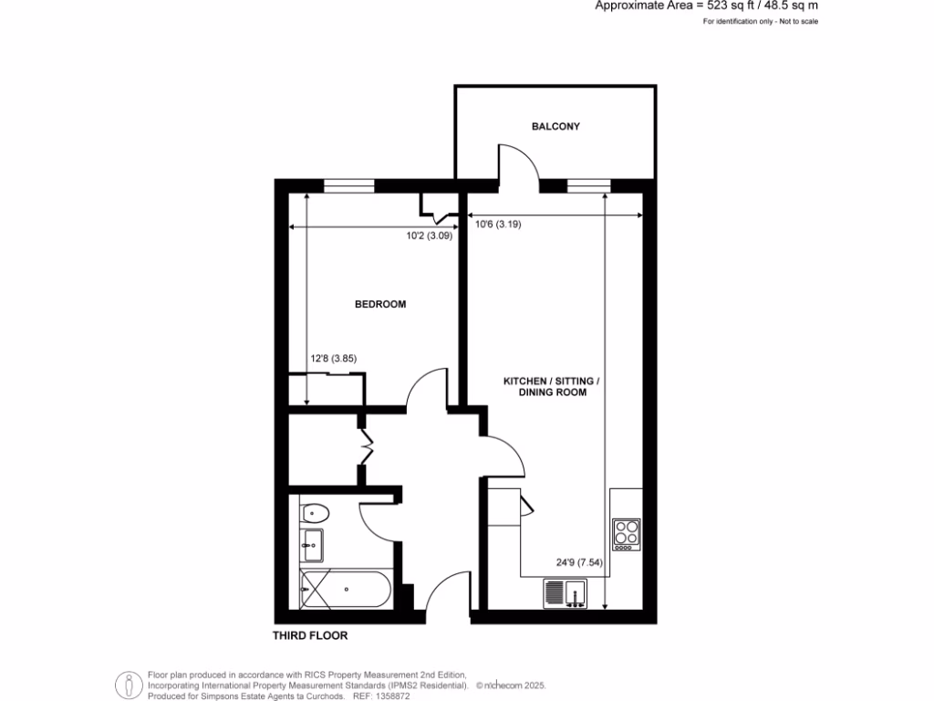
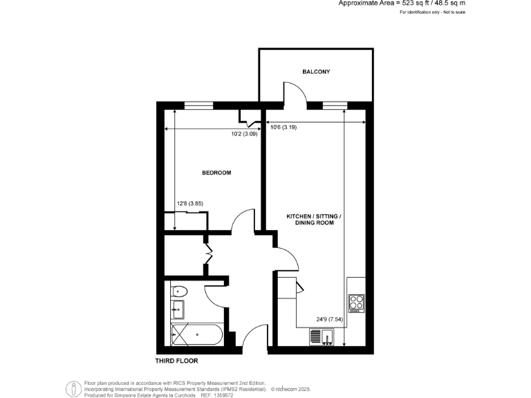
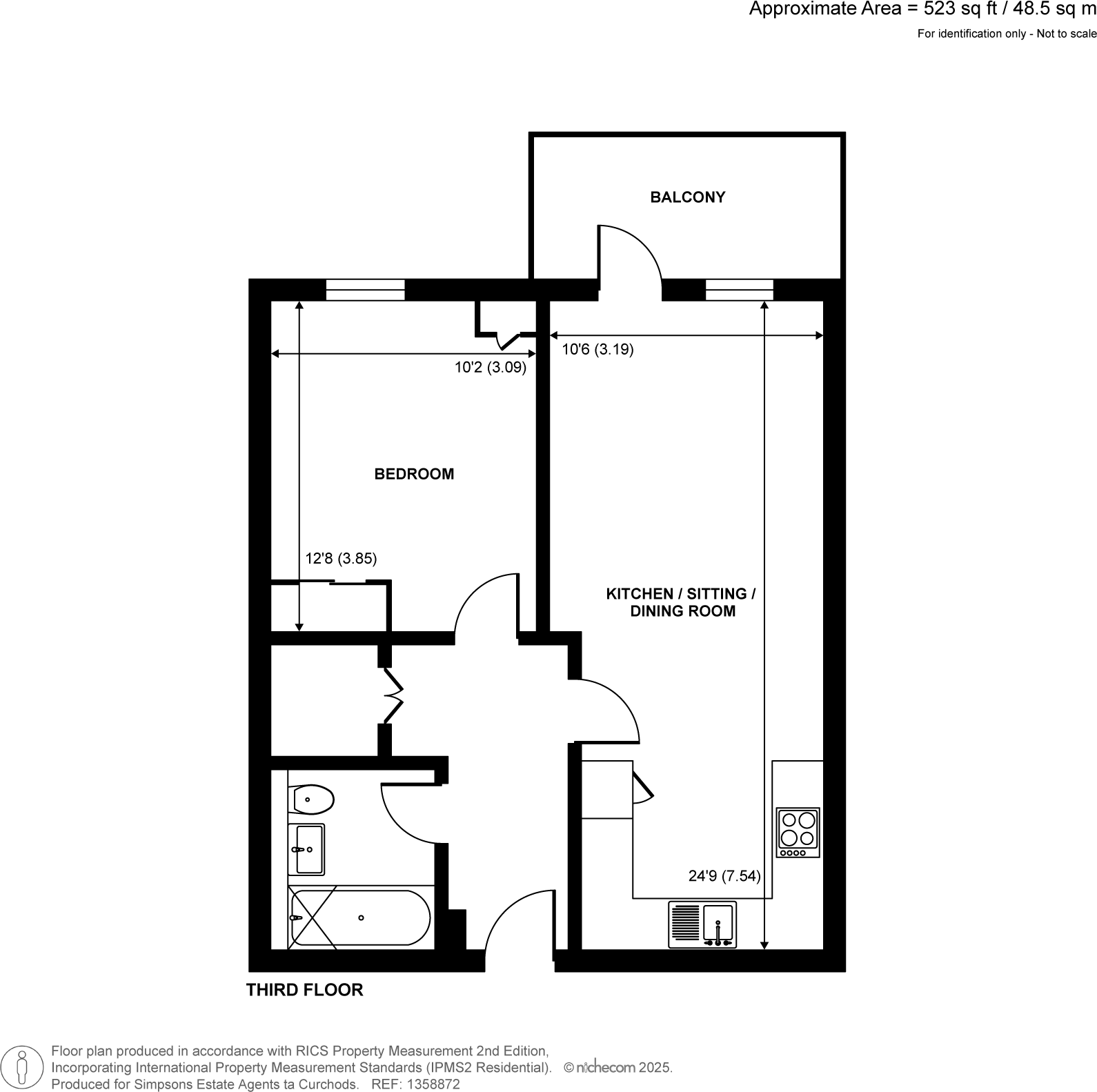
This third-floor one-bedroom apartment offers efficient, low-maintenance city living in the heart of Guildford. The open-plan sitting room and L-shaped kitchen open onto a south-westerly balcony with views towards The Mount, providing natural light and outdoor space for a single occupant or couple.
Practical features include built-in bedroom storage, a separate utility cupboard, communal off-street parking and attractive riverside landscaped gardens. The flat is part of a modern 2018 development and benefits from an exceptionally long lease (993 years) and fast broadband — ideal for professionals or first-time buyers seeking convenience and connectivity.
Buyers should note some important considerations: there is no private garden, the property sits in an area with a very high recorded crime level, and the location has a medium flood risk. Annual service charges average £1,430; council tax is described as affordable. The apartment’s compact 523 sq ft footprint limits space compared with larger homes, though it is typical for a modern town-centre one-bedroom.
Overall, this apartment suits a buyer prioritising location, transport links and low-maintenance living — equally attractive as a straightforward buy-to-let or a first home for commuters. The combination of contemporary finishes, balcony amenity and long lease gives clear value, balanced by local crime and flood considerations that buyers should investigate further.
1 bedroom apartment for sale in Walnut Tree Close, Guildford, Surrey, GU1 — £255,000 • 1 bed • 1 bath • 410 ft²
1 bedroom apartment for sale in Walnut Tree Close, Guildford, Surrey, GU1 — £255,000 • 1 bed • 1 bath • 446 ft²
1 bedroom apartment for sale in Walnut Tree Close, Guildford, Surrey, GU1 — £255,000 • 1 bed • 1 bath • 488 ft²
1 bedroom apartment for sale in Walnut Tree Close, Guildford, Surrey, GU1 — £280,000 • 1 bed • 1 bath • 569 ft²
1 bedroom flat for sale in Mount Court, The Mount, Guildford, Surrey, GU2 — £250,000 • 1 bed • 1 bath • 529 ft²
1 bedroom flat for sale in Wey Corner, Walnut Tree Close, Guildford, GU1 — £425,000 • 1 bed • 1 bath • 568 ft²






























































