Light-filled riverside duplex with parking and private slipway access.
Southerly and westerly river views from living room and principal bedroom
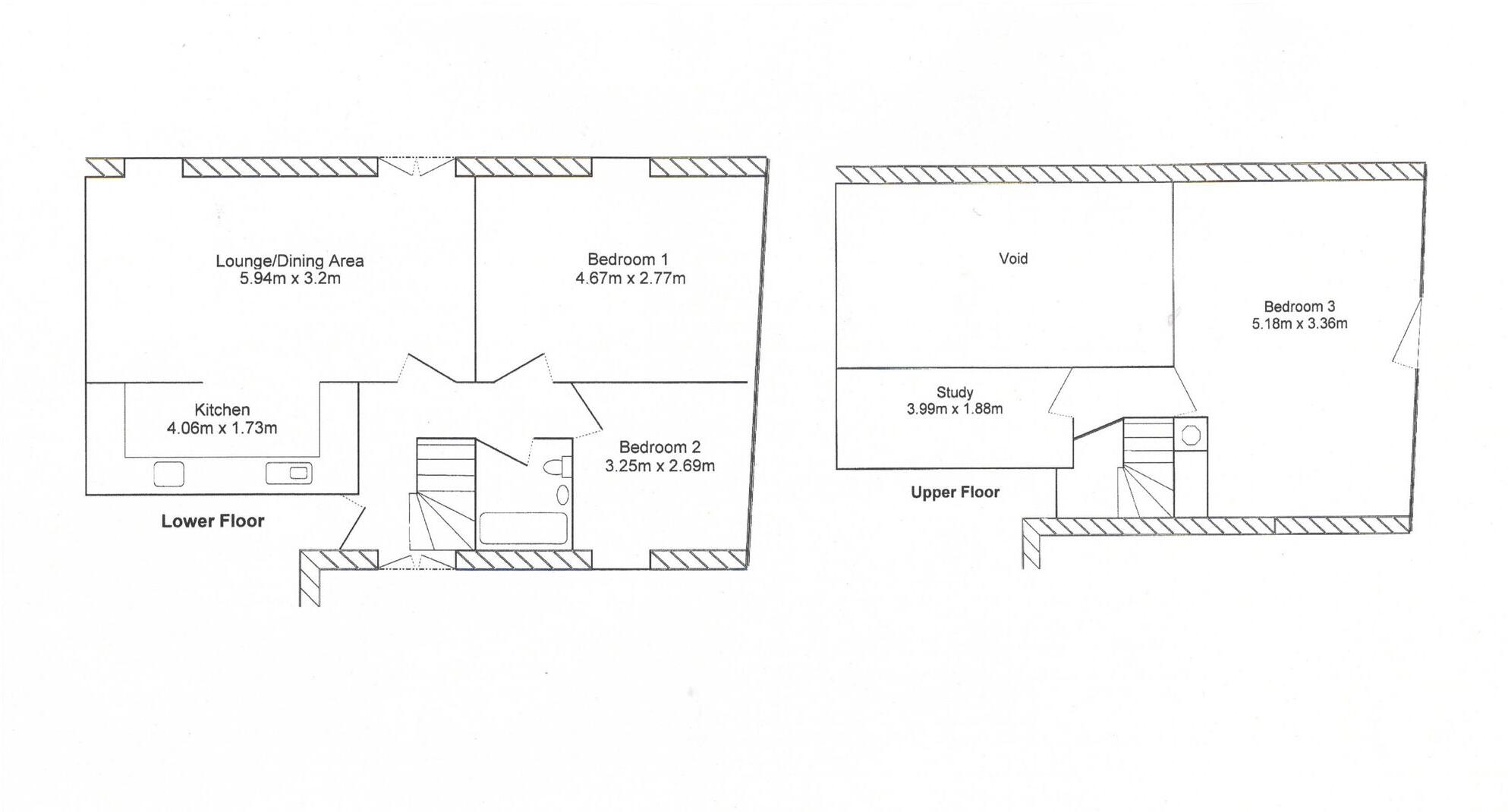
Three double bedrooms plus galleried study space
Designated off-street parking space included
Use of communal dinghy park and slipway for river access
Grade II listed building — alterations and repairs may be restricted
High flood risk due to immediate waterside location
Service charge £2,900 pa; includes communal upkeep and dinghy park insurance
Very slow broadband speeds; no private garden space
Set over the top two floors of a restored granite wharf, this three-bedroom duplex captures expansive southerly and westerly river views. Vaulted ceilings, exposed beams and lime-washed stone walls give the apartment strong character and a loft-like feel. The open sitting/dining room with French doors and Juliette balcony is a natural focal point for waterside living.
Practical features include a designated off-street parking space, use of the development’s dinghy park and slipway, gas central heating, and a long lease (977 years remaining). The current service charge is £2,900 per year and the property is offered chain free with vacant possession — suitable as a permanent home, second home or holiday let.
Buyers should note material constraints: the building is Grade II listed which can complicate alterations and maintenance, and the apartment sits on the water’s edge with a high flooding risk. Broadband speeds are reported as very slow and there is no private garden, so outdoor space is limited to balconies and communal waterfront areas.
Overall this is a character-rich, well-located riverside apartment offering unique waterside living and boating access, balanced by listed-building responsibilities, flood considerations and ongoing service charges.
2 bedroom apartment for sale in Anchor Quay, Penryn, TR10 — £350,000 • 2 bed • 2 bath • 1259 ft²
2 bedroom apartment for sale in Penryn, TR10 — £365,000 • 2 bed • 1 bath • 1184 ft²
2 bedroom apartment for sale in Quay Hill, Penryn, TR10 — £264,500 • 2 bed • 2 bath • 712 ft²
3 bedroom flat for sale in Harbour Village, Penryn, Cornwall, TR10 — £295,000 • 3 bed • 1 bath • 870 ft²
3 bedroom duplex for sale in Eastwood Road, The Waters Edge Apartments Eastwood Road, TR10 — £335,000 • 3 bed • 2 bath • 1195 ft²
2 bedroom flat for sale in Admirals Quay, The Packet Quays, TR11 — £270,000 • 2 bed • 2 bath • 829 ft²






































































































