Spacious historic conversion with stunning elevated water views and parking.
Large 31' river-facing open-plan living/kitchen area
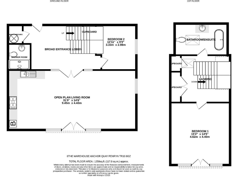
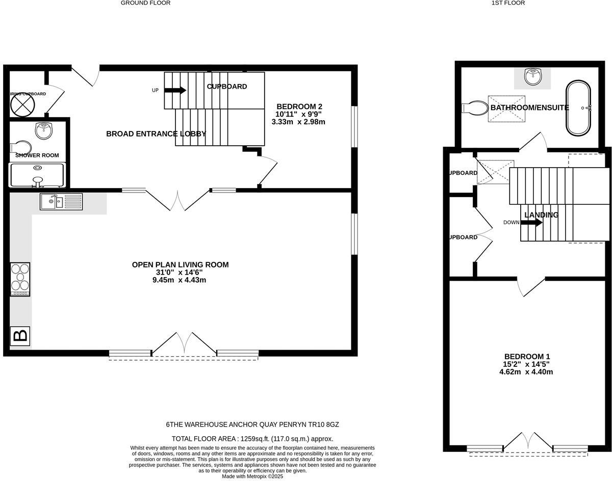
Positioned on the top two floors of a converted Grade II listed warehouse, this duplex apartment combines generous open-plan living with truly elevated river and harbour views. The 31' riverside reception and integrated kitchen create a striking social hub, finished with solid timber floors, granite worktops and quality integrated appliances. Two Juliet balconies and large windows maximise light and outlook.
At 1,259 sq ft the accommodation is unusually spacious for a waterside conversion, with two double bedrooms and two high-quality bath/shower rooms. Practical benefits include timber casement double glazing (fitted post-2002), mains gas central heating, and undercover tandem parking (identified as 'AK') — useful for owners or holiday guests.
Buyers should note the property’s listed status: repairs, alterations and some modernisations will require consent and can complicate major works. The granite walls were built without insulation (assumed) which may affect heating costs and comfort despite double glazing and gas radiators. There is no private garden or external amenity beyond quay/harbour access.
This apartment suits buyers seeking low-external-maintenance, view-led living or a lettable coastal investment. The long lease (980 years), absence of holiday-letting restrictions and pet-friendly policy add versatility, balanced by a service charge of about £2,200pa and an annual parking maintenance charge of £353 for the allocated space.
3 bedroom duplex for sale in Harbour Village, Daniels Sail Loft Harbour Village, TR10 — £340,000 • 3 bed • 1 bath • 1453 ft²
2 bedroom apartment for sale in Penryn, TR10 — £365,000 • 2 bed • 1 bath • 1184 ft²
2 bedroom apartment for sale in Quay Hill, Penryn, TR10 — £264,500 • 2 bed • 2 bath • 712 ft²
3 bedroom duplex for sale in Eastwood Road, The Waters Edge Apartments Eastwood Road, TR10 — £335,000 • 3 bed • 2 bath • 1195 ft²
3 bedroom flat for sale in Harbour Village, Penryn, Cornwall, TR10 — £295,000 • 3 bed • 1 bath • 870 ft²
2 bedroom flat for sale in Admirals Quay, The Packet Quays, TR11 — £270,000 • 2 bed • 2 bath • 829 ft²






















































































