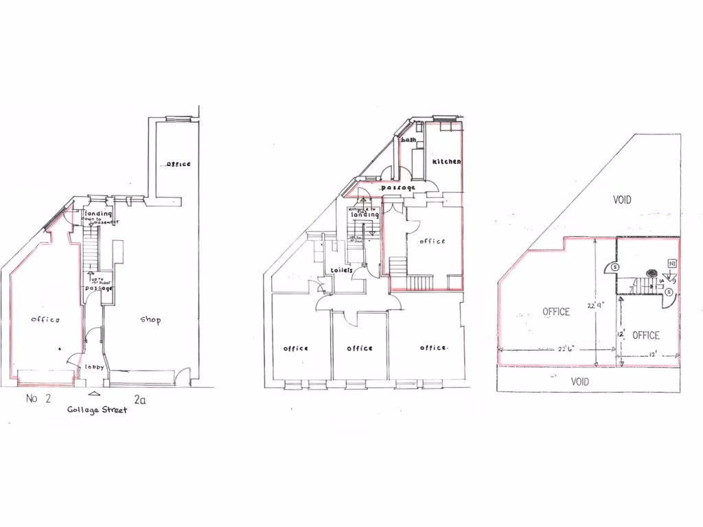
**Standout Features:**
- Large, mid-terrace investment property in a prominent location on College Street, Ammanford town center
- Currently vacant, offering immediate potential for ownership or rental
- Flexible, unconventional layout comprising retail space and multiple offices
- Freehold tenure with small business rates exemptions
- Good space for various business operations with substantial square footage (656 sq ft)
- Mixed-use potential that could cater to both commercial and residential needs
**Notable Concerns:**
- Overall condition requires renovation, presenting a fixer-upper opportunity
- High crime area and demographic challenges; located in an economically deprived zone
- Limited insulation in walls, relying solely on electric heating
**Summary:**
This substantial mid-terrace investment property offers a unique opportunity for savvy investors or businesses looking to establish themselves in the heart of Ammanford. Spanning four floors, the building features ample retail and office space, perfect for various enterprises or even as residential accommodations. Currently vacant, it allows for immediate occupancy or renovation tailored to individual aspirations. While the property does present some challenges—including the need for maintenance and its location in a high-crime area—its competitive price of £165,000 and small business rates exemption offer considerable long-term potential. With its flexible layout and prominent position, this investment is ripe for transformation and could act as a cornerstone to future developments in the vibrant yet evolving landscape of Ammanford. Don't miss this chance—opportunities in this area may be limited!
High street retail property for sale in Former Co-Op, College Street, Ammanford, Carmarthenshire, SA18 — £995,000 • 1 bed • 1 bath • 22013 ft²
High street retail property for sale in Former Co-Op, College Street, Ammanford, Carmarthenshire, SA18 — £995,000 • 1 bed • 1 bath • 22013 ft²
Terraced house for sale in Rhosmaen Street, Llandeilo., SA19 — £250,000 • 1 bed • 1 bath
5 bedroom house for sale in Station Road, Ammanford, SA18 — £325,000 • 5 bed • 2 bath • 1454 ft²
3 bedroom terraced house for sale in Rhosmaen Street, Llandeilo, SA19 — £150,000 • 3 bed • 2 bath
3 bedroom detached house for sale in High Street, Llandybie, Ammanford, SA18 — £220,000 • 3 bed • 1 bath • 2139 ft²


































































































