NN12 8XN - Barn conversion for sale in Whittlebury, Northamptonshire,…

View on Property Piper

Barn conversion for sale in Whittlebury, Northamptonshire, NN12

Summary - LINSHIRE FARM, TOWCESTER, WHITTLEBURY NN12 8XN

1 bed 1 bath Barn Conversion

Large rural plot with permitted conversion for a substantial single‑storey home.
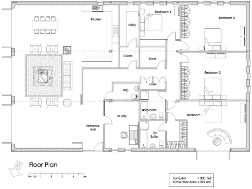
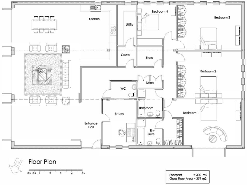
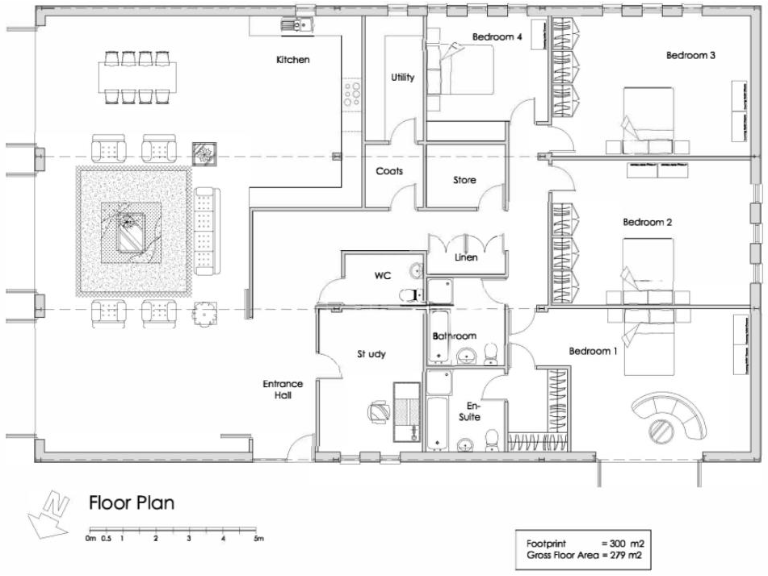
Planning permission (appeal) for single‑storey 4‑bed, ~3,000 sq ft
Set within an expansive parcel of countryside, Linshire Farm offers a rare barn conversion opportunity with planning permission upheld at appeal for a single‑storey, four‑bed dwelling of approximately 3,000 sq ft. The consent (APP/W2845/W/23/3328651) converts the existing agricultural barn into a generous open‑plan home with principal bedroom and ensuite, three further doubles, study, utility and ample parking. The holding includes approximately 7.8 acres of paddock, creating privacy and scope for equestrian or amenity use.

Practical advantages include mains electricity and water to the site, gated access from the A413 and a sizeable parking area. The location sits close to Whittlebury village amenities, Silverstone, and main road links (M1 J15A, M40, A5, A43), with rail services from Milton Keynes and Northampton. Mobile signal is excellent, supporting daily connectivity despite limited fixed broadband speeds.

Buyers should note material considerations: the planning consent contains conditions and requirements that purchasers must review in full; services listed have not been tested and private drainage will be required. The vendor will retain a vehicular and pedestrian right of way across part of the paddock, and the British Racing Drivers Club/Silverstone Circuit hold a limited right of access over the driveway for up to 30 days per calendar year (typically VIP/event access). Completion of the conversion will require significant build‑out works and associated costs.

This property will suit a purchaser seeking a large, secluded rural plot with a permitted conversion already in place—appealing to those wanting a bespoke single‑storey home or an investment in a countryside redevelopment. Additional adjoining land (up to 21 acres) may be available by separate negotiation for buyers needing more acreage.

Property Details

Brochure Descriptions

Image Descriptions

Textual Property Features

Target Audience

AI Tags

Detected Visual Features

Nearby Schools

Nearest Bars And Restaurants

,,,,}

Nearest General Shops

,,}

Nearest Grocery shops

,,}

Nearest Supermarkets

,,}

Nearest Religious buildings

,,}

Nearest Medical buildings

,,,}

Nearest Airports

}

Nearest Leisure Facilities

,,,,}

Nearest Tourist attractions

,,}

Nearest Train stations

,,,,}

Nearest Bus stations and stops

,,,,}

Nearest Hotels

,,}

Tags

Local Market Stats

Similar Properties

Meta

High Res Images

Compatible Images

Low res Images

Thumbnails

Raw Images

High Res Floorplan Images

Compatible Floorplan Images

Low res Floorplan Images

FloorplanImages Thumbnail

Raw Floorplan Images