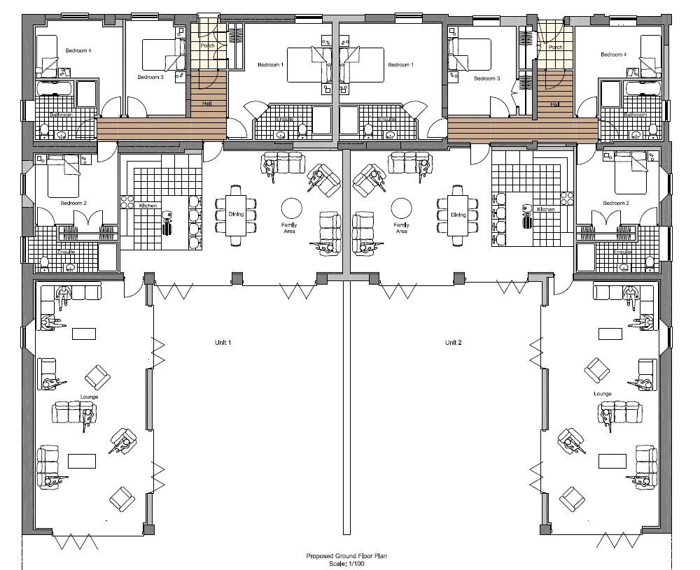
**Standout Features:**
- Prior approval for conversion of traditional stone and brick barns into two residential dwellings or a potential large single dwelling.
- Expansive size of approximately 405 square meters (4360 sq. feet).
- Beautifully situated in serene open countryside with views to south, east, and west.
- Located only 250 meters from the nearest highway with a shared private access road already in place.
- Connections to water and electricity available nearby.
**Potential Concerns:**
- Property requires renovation and may need structural updates.
- Current condition is described as derelict, with visible signs of wear.
**Summary Description:**
Discover a unique development opportunity with these traditional stone and brick barns nestled in the picturesque countryside. Boasting over 4360 sq. feet, this substantial property offers enchanting views and the promise of a bespoke living space, perfect for those looking to create their dream home or capitalize on its conversion potential. With prior approval secured, the barns can be transformed into two separate dwellings or reimagined into a spacious single family residence, providing flexibility to suit your vision.
Set on a large plot away from the nearest highway, you'll enjoy privacy and tranquility amid lush landscapes. The property’s serene surroundings make it ideal for a rural lifestyle or, if desired, equestrian or agricultural use, making it a canvas for various lifestyle aspirations. While the barns are currently in need of renovation, the expansive grounds offer ample potential, allowing you to embrace the charm of countryside living. Don't miss out on this rare opportunity to secure a future retreat in a thriving rural community.
4 bedroom barn conversion for sale in Stoke Bruerne, Towcester, Northamptonshire, NN12 — £1,850,000 • 4 bed • 4 bath • 3693 ft²
4 bedroom barn conversion for sale in Fulwell Road, Westbury, Buckinghamshire, NN13 — £575,000 • 4 bed • 2 bath • 2437 ft²
Equestrian facility for sale in Alderton, Towcester, Northamptonshire, NN12 — £1,350,000 • 5 bed • 4 bath • 5728 ft²
3 bedroom detached house for sale in Waits Yard, Litchborough, Towcester, Northamptonshire, NN12 — £500,000 • 3 bed • 3 bath • 1516 ft²
5 bedroom barn conversion for sale in High Street, Croughton, Northamptonshire, NN13 — £900,000 • 5 bed • 4 bath • 2835 ft²
4 bedroom barn conversion for sale in Steeple Claydon, Buckingham, Buckinghamshire, MK18 — £800,000 • 4 bed • 2 bath • 1296 ft²






















































