**Standout Features:**
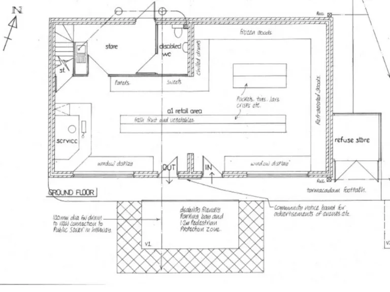
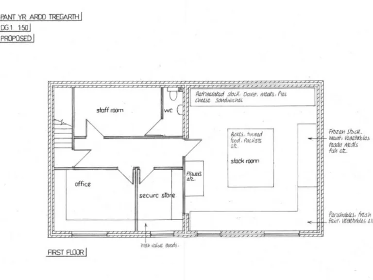
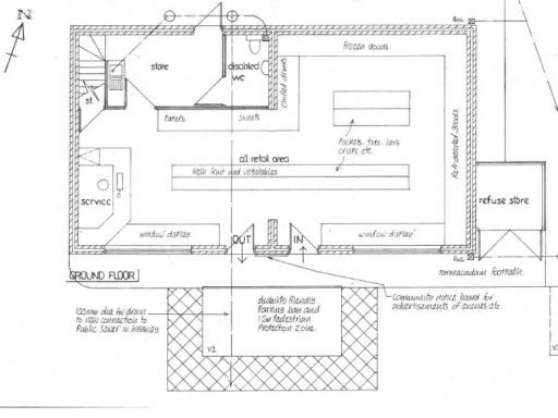
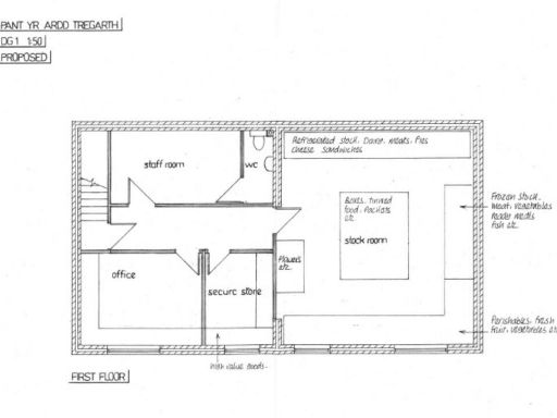
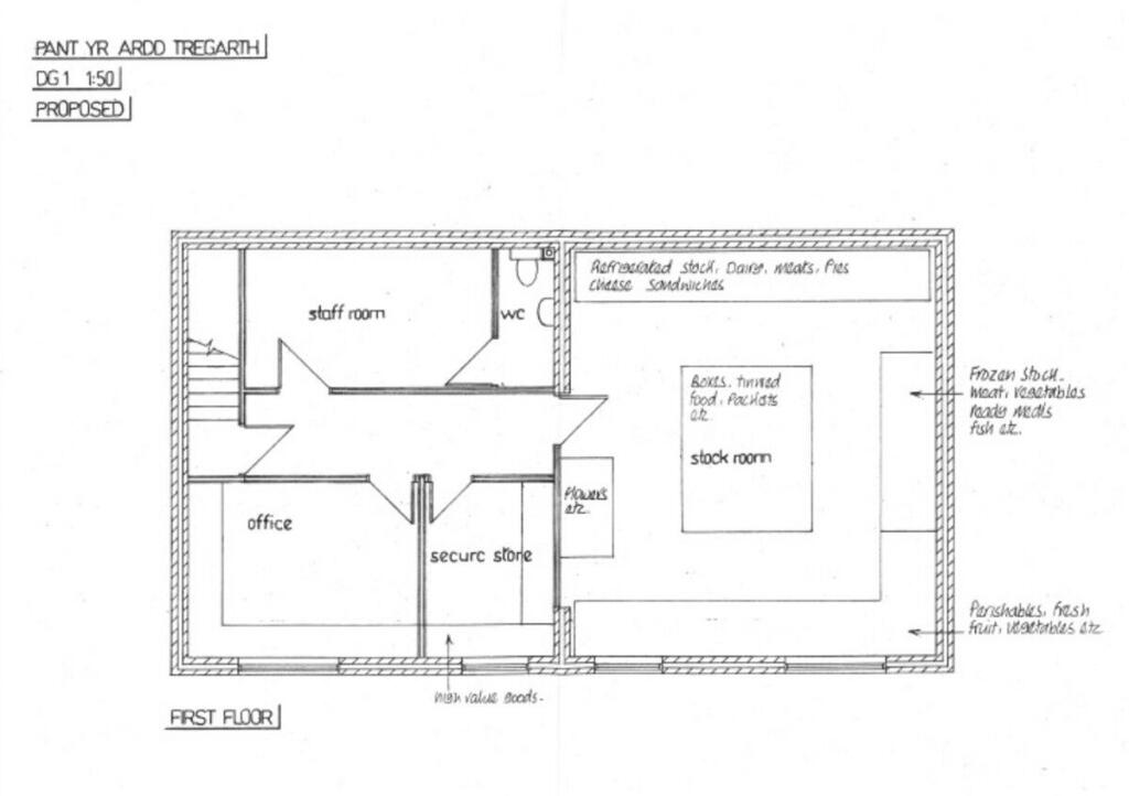
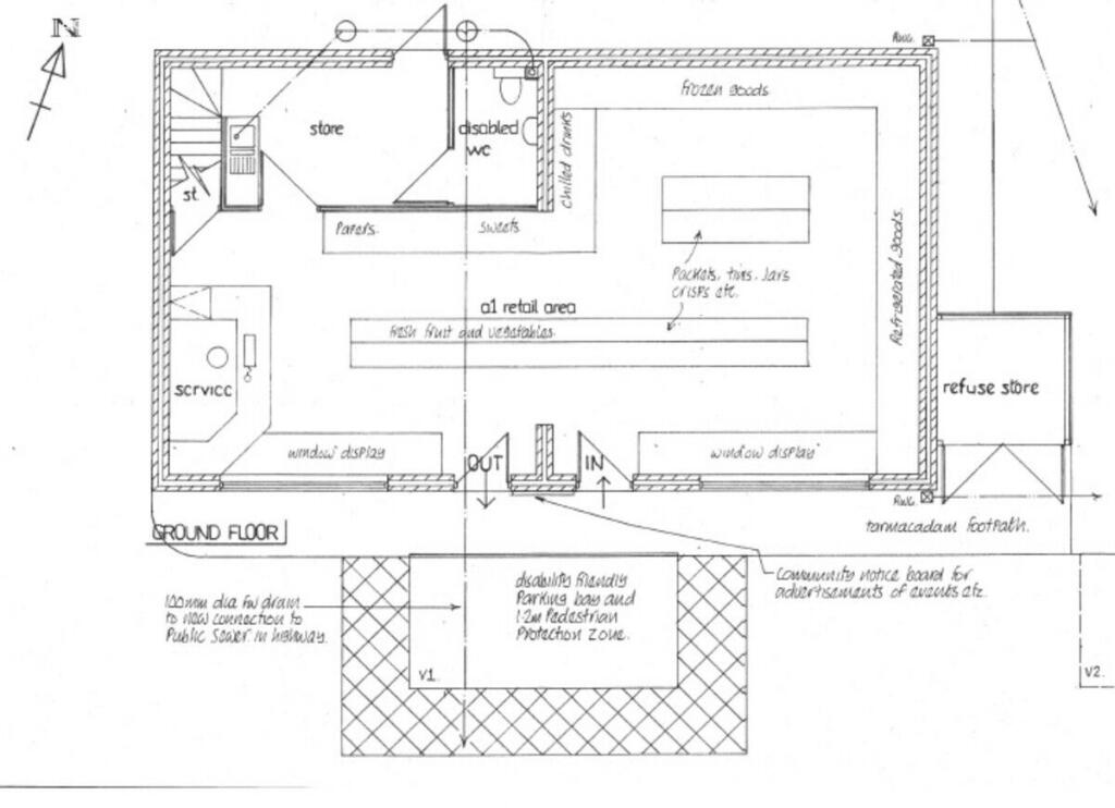
- Large building plot with planning consent granted (C15/0348/16/LL) for a two-storey retail outlet.
- Potential for conversion to affordable housing, subject to application.
- Centrally located in Tregarth village, just 4 miles from Bangor.
- Freehold tenure ensuring long-term ownership flexibility.
- Spacious site dimensions (approximately 30m x 20m) suitable for multiple development options.
**Summary:**
Unlock an exceptional investment opportunity in the heart of Tregarth village! This large building plot offers 6,458 square feet of potential, with planning consent already in place for a two-storey retail unit. Alternatively, it may be adapted for affordable housing—perfect for developers looking to meet local needs. The site, previously a public house car park, boasts a level surface, making construction straightforward.
While the area features a charming village atmosphere with low crime and various local amenities including leisure facilities and a community centre, it's important to note that broadband speeds are slow, which may impact lifestyle or business operations. However, with its prime location just a short distance from Bangor and numerous facilities at your doorstep, this plot is ready to become a staple in the community. With rising demand for housing and commercial spaces, act now to make the most of this unique offering—the potential for growth and success is immense!
Land for sale in Development Plots, Parc Bryn Cegin, North Wales, Bangor, LL57 4BG, LL57 — £75,000 • 1 bed • 1 bath
Property for sale in The Crescent, Bangor, LL57 — £55,000 • 1 bed • 1 bath • 2153 ft²
Land for sale in Land At Beach Road, Bangor, Gwynedd, LL57 1AB, LL57 — POA • 1 bed • 1 bath
Land for sale in Rhythallt Terrace, Llanrug, Caernarfon, Gwynedd, LL55 — £85,000 • 1 bed • 1 bath • 2500 ft²
Land for sale in High Street, Bangor, Gwynedd, LL57 — £135,000 • 1 bed • 1 bath
Land for sale in Bull Inn, Pentraeth, Anglesey, LL75 — £135,000 • 1 bed • 1 bath














