Freehold plot with approved three-house scheme close to beaches and village amenities.
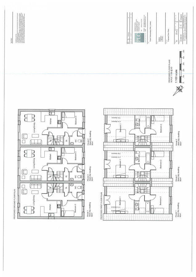
- Full planning consent March 2024 for terrace of three houses
- One unit designated as affordable under the consent
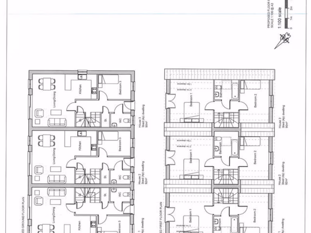
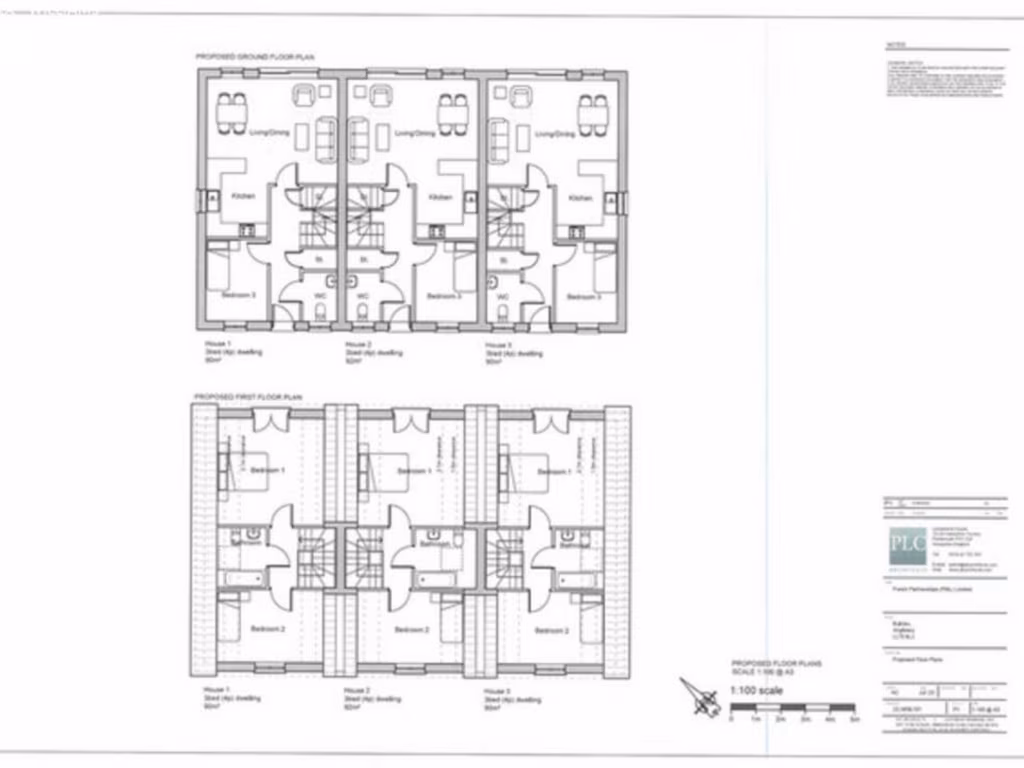
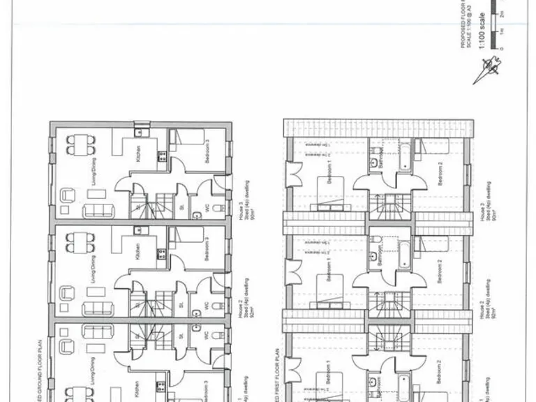
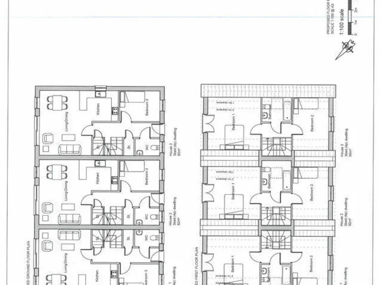
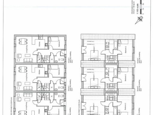
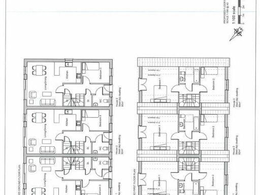
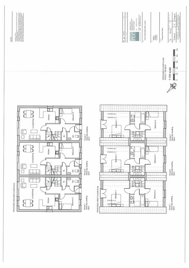
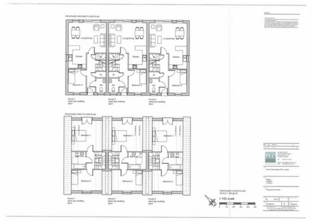
- Each house: open-plan living/kitchen; ground-floor bedroom
- Very large plot, set back from road, straightforward buildability
- Vehicular access via adjoining pub car park; shared maintenance responsibility
- Broadband speeds are slow; mobile signal is excellent
- No flood risk; freehold tenure; EPC and council tax TBC
- Local area classed as very deprived — consider demand and yields
A rare freehold development parcel with full planning consent (ref FPL/2023/246) for a terrace of three new-build houses, one of which is an affordable dwelling. The consented scheme provides practical family-friendly layouts: open-plan living/kitchen, a ground-floor bedroom and two first-floor bedrooms in each property — simple, low-maintenance modern homes aimed at local demand.
The site sits on the edge of a small village, about 0.5 mile from local shops, a primary school and bus links, and within roughly 2 miles of several sandy beaches. Vehicular access is over part of the adjoining public house car park; responsibility for maintenance of that shared access will be required. The plot is very large and offers straightforward buildability for a terrace, with no identified flood risk.
Buyers should note material considerations: one of the three units must be delivered as affordable housing under the consent, and broadband provision in the village is slow which may affect some occupier types. EPC and council-tax bands are not yet available. Mobile signal is excellent, and the location could appeal to local buyers or holiday-area workers seeking modern, low-upkeep homes.
This is primarily an investment/development opportunity for a purchaser able to complete the build-out to the approved plans, manage the shared access arrangements, and position the homes for local market demand.
4 bedroom detached house for sale in Building Plot At Pen Y Meusydd, Tynygongl, Anglesey, LL74 — £299,950 • 4 bed • 5 bath • 1030 ft²
Land for sale in Penybonc Road, Penybonc, Amlwch, LL68 — £475,000 • 1 bed • 1 bath
Plot for sale in Red Wharf Bay, Pentraeth, LL75 — £325,000 • 1 bed • 1 bath
Land for sale in Minffordd, Llanddona, Beaumaris, Sir Ynys Mon, LL58 8UL, LL58 — £280,000 • 1 bed • 1 bath • 12894 ft²
Land for sale in Tregarth, Tregarth, LL57 — £75,000 • 1 bed • 1 bath • 6458 ft²
4 bedroom town house for sale in Traeth Bychan, Benllech, Anglesey, Sir Ynys Mon, LL73 — £500,000 • 4 bed • 2 bath • 1214 ft²






























































